ARCH161030
décembre 1962
Élévation et plans des étages pour Résidence Jean Simard, Laval-sur-le-Lac, Québec
Actions:
ARCH161030
ARCH280642
1963
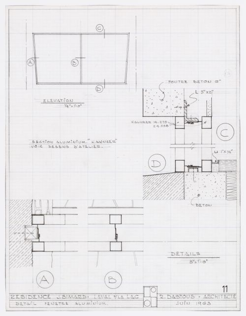
Détail d'une fenêtre pour Résidence Jean Simard, Laval-sur-le-Lac, Québec
Actions:
ARCH280642
Détail d'une fenêtre de l'escalier principal pour Résidence Jean Simard, Laval-sur-le-Lac, Québec
ARCH280643
1963
ARCH280644
1963
ARCH280645
1963
Détail d'une balustrade pour Résidence Jean Simard, Laval-sur-le-Lac, Québec
Actions:
ARCH280645
ARCH280646
1963
Élévation et coupes de détails pour Résidence Jean Simard, Laval-sur-le-Lac, Québec
Actions:
ARCH280646
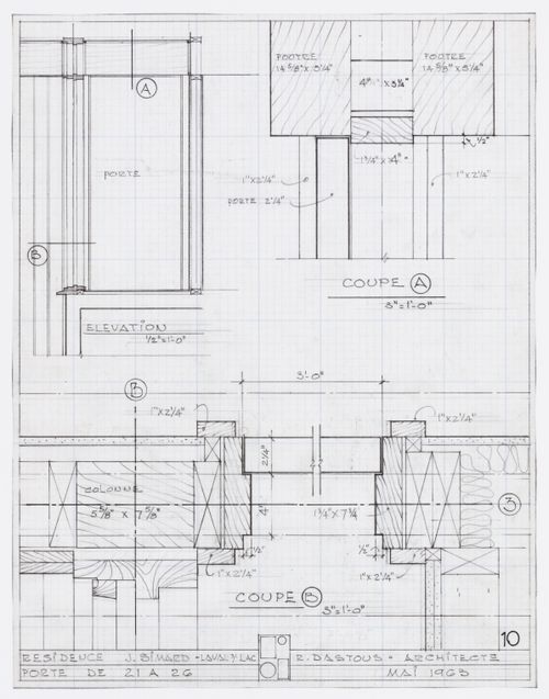
ARCH280647
1963
Élévation et coupes de détails pour Résidence Jean Simard, Laval-sur-le-Lac, Québec
Actions:
ARCH280647
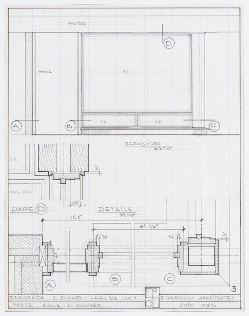
Élévation et détails des portes du petit salon pour Résidence Jean Simard, Laval-sur-le-Lac, Québec
ARCH280648
1963
ARCH280649
1963
Plan et détails de la porte d'entrée de service pour Résidence Jean Simard, Laval-sur-le-Lac, Québec
ARCH280650
1963
ARCH280651
1963
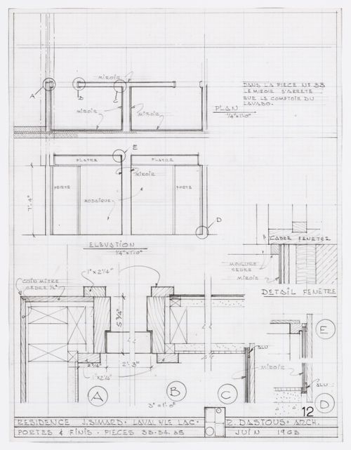
ARCH280652
1963
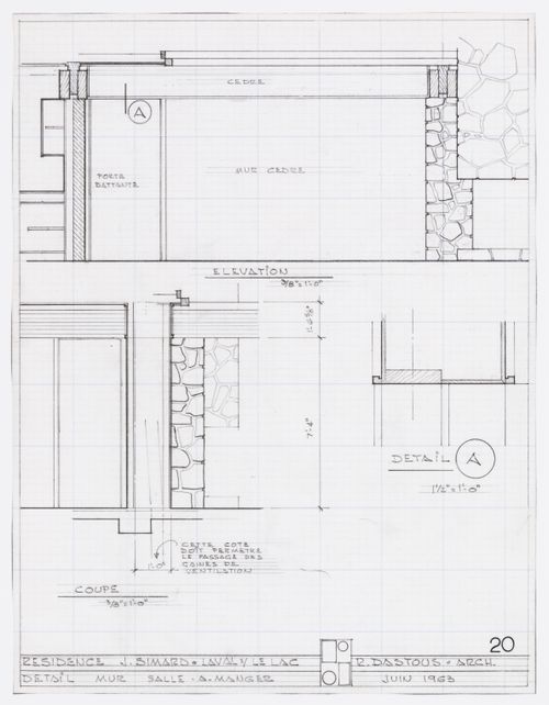
Plan, élévation et détails de portes et finis pour Résidence Jean Simard, Laval-sur-le-Lac, Québec
ARCH280653
1963
Coupe, élévation et détail d'une porte coulisse pour Résidence Jean Simard, Laval-sur-le-Lac, Québec
ARCH280654
1963
ARCH280655
1963
ARCH280656
1963
Plan et détails de portes pour Résidence Jean Simard, Laval-sur-le-Lac, Québec
Actions:
ARCH280656
ARCH280657
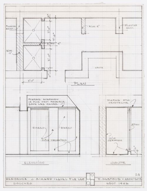
1963
Plan de la salle d'eau pour Résidence Jean Simard, Laval-sur-le-Lac, Québec
Actions:
ARCH280657
ARCH280658
1963
ARCH280659
1963
Détail de la structure pour Résidence Jean Simard, Laval-sur-le-Lac, Québec
Actions:
ARCH280659
ARCH280660
1963
ARCH280661
1963
Plan et élévations du foyer pour Résidence Jean Simard, Laval-sur-le-Lac, Québec
Actions:
ARCH280661
ARCH280662
1963
ARCH280663
1963
Détails des gargouilles pour Résidence Jean Simard, Laval-sur-le-Lac, Québec
Actions:
ARCH280663
ARCH280664
1963
ARCH280665
1963
ARCH280666
1963
Détail de la corniche pour Résidence Jean Simard, Laval-sur-le-Lac, Québec
Actions:
ARCH280666
ARCH280667
1963
ARCH280668
1963
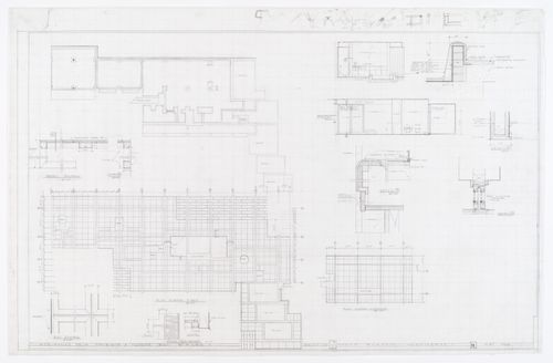
Plans, coupes et élévations pour Résidence Jean Simard, Laval-sur-le-Lac, Québec
Actions:
ARCH280668
ARCH280669
1963
ARCH280670
1963
ARCH280671
1963
ARCH280672
1963
ARCH280673
1963
Plan et coupes des fondations pour Résidence Jean Simard, Laval-sur-le-Lac, Québec
Actions:
ARCH280673
ARCH280674
1963
ARCH280675
1963
ARCH280676
1963
Coupes, élévations et détails pour Résidence Jean Simard, Laval-sur-le-Lac, Québec
Actions:
ARCH280676
ARCH280677
1963
ARCH280678
1963
ARCH280679
1963
Plan et élévations de détails pour Résidence Jean Simard, Laval-sur-le-Lac, Québec
Actions:
ARCH280679
Modifications à apporter aux plans de béton pour Résidence Jean Simard, Laval-sur-le-Lac, Québec
ARCH280680
1963