1
1
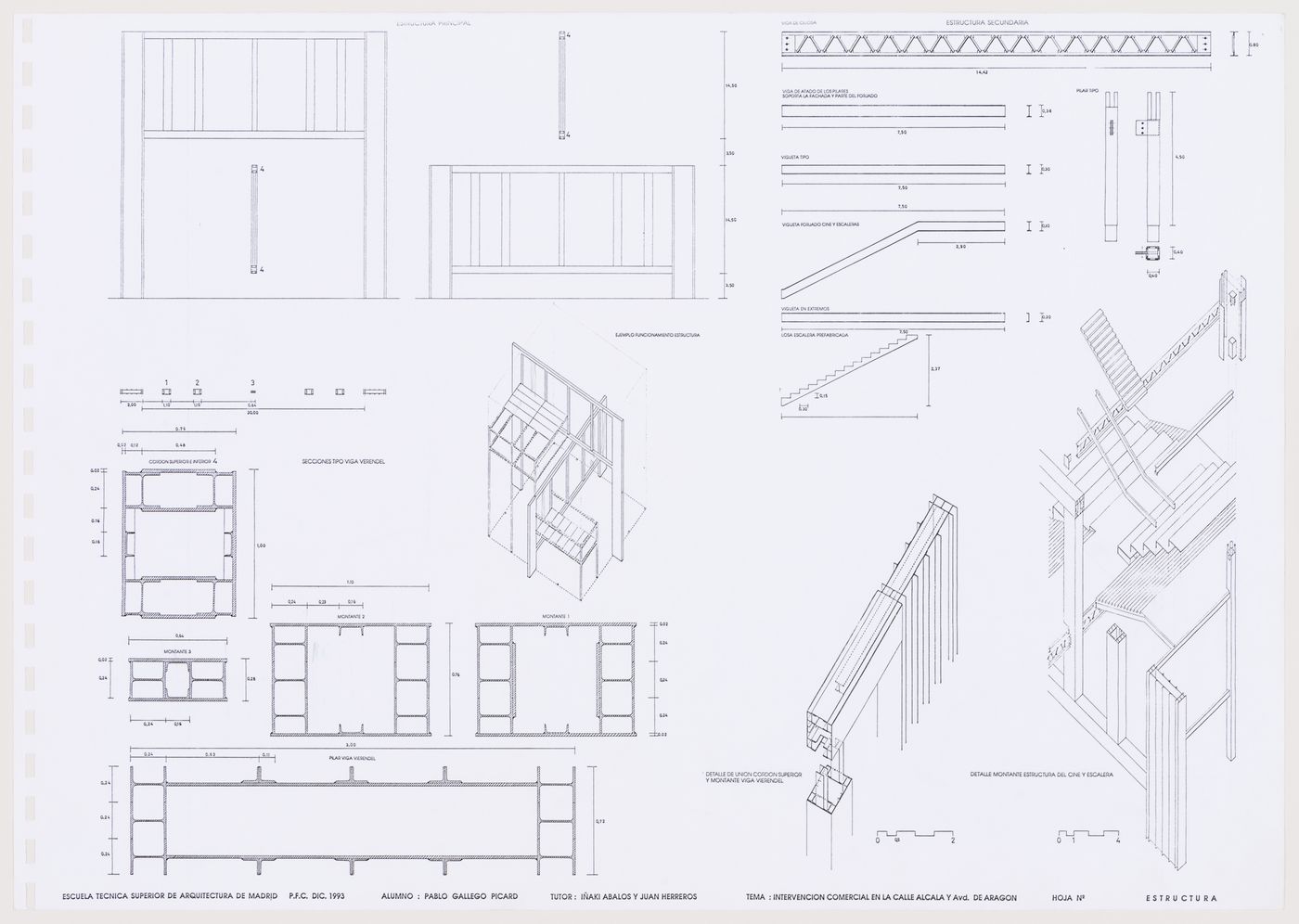
Presentation document for school project for a commercial intervention in Alcala Street and Aragon Avenue, Madrid, Spain
Presentation document for school project for a commercial intervention in Alcala Street and Aragon Avenue, Madrid, Spain
Part of:
People:
  • Pablo Gallego Picard (draughtsman)
  • Pablo Gallego Picard (student)
  • Iñaki Abalos (professor)
  • Juan Herreros (professor)
  • Escuela T.S. de Arquitectura de Madrid (role unspecified)
  • Abalos & Herreros (archive creator)
Title:

Presentation document for school project for a commercial intervention in Alcala Street and Aragon Avenue, Madrid, Spain

Date:

December 1993

Form:
textual records
Quantity / Object type:
1 textual record(s)
Technique and media:

Electrostatic print

Dimensions:

sheet: 29,69 × 41,91 cm (11 11/16 × 16 1/2 in.)

Reference number:

ARCH287262

Physical characteristics and technical requirements:

- The book is curved in three places. Spiral binding removed. 16 pages (3 pages missing since 2015 Abalos & Herreros 2 - Juan Jose Castellon exhibition)

Inscription:

dated

Credit line:
Abalos & Herreros fonds
Collection Centre Canadien d'Architecture/
Canadian Centre for Architecture, Montréal;
Don de Iñaki Ábalos et Juan Herreros/
Gift of Iñaki Ábalos and Juan Herreros
Copyright:

© Pablo Gallego Picard

1
1

Sign up to get news from us

Email address
First name
Last name
By signing up you agree to receive our newsletter and communications about CCA activities. You can unsubscribe at any time. For more information, consult our privacy policy or contact us.

Thank you for signing up. You'll begin to receive emails from us shortly.

We’re not able to update your preferences at the moment. Please try again later.

You’ve already subscribed with this email address. If you’d like to subscribe with another, please try again.

This email was permanently deleted from our database. If you’d like to resubscribe with this email, please contact us

Please complete the form below to buy:
[Title of the book, authors]
ISBN: [ISBN of the book]
Price [Price of book]

First name
Last name
Address (line 1)
Address (line 2) (optional)
Postal code
City
Country
Province/state
Email address
Phone (day) (optional)
Notes

Thank you for placing an order. We will contact you shortly.

We’re not able to process your request at the moment. Please try again later.

Folder ()

Your folder is empty.

Email:
Subject:
Notes:
Please complete this form to make a request for consultation. A copy of this list will also be forwarded to you.

Your contact information
First name:
Last name:
Email:
Phone number:
Notes (optional):
We will contact you to set up an appointment. Please keep in mind that your consultation date will be based on the type of material you wish to study. To prepare your visit, we'll need:
  • — At least 2 weeks for primary sources (prints and drawings, photographs, archival documents, etc.)
  • — At least 48 hours for secondary sources (books, periodicals, vertical files, etc.)
...