1
1
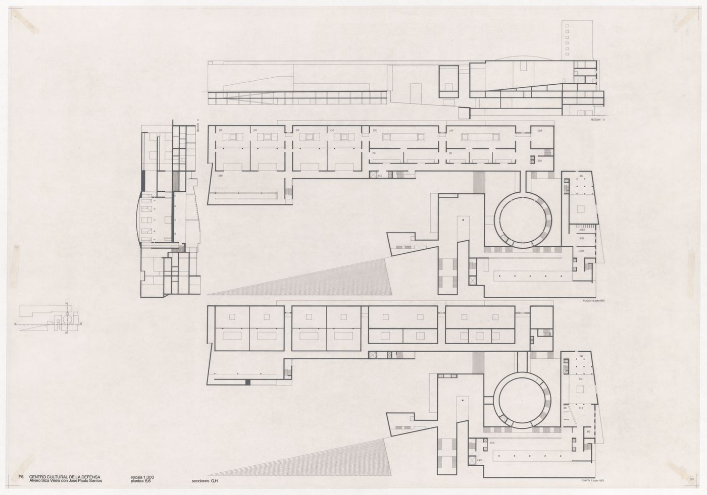
Plans and sections for Centro Cultural de la Defensa - 1º Fase - 2º Fase, Madrid, Spain
Plans and sections for Centro Cultural de la Defensa - 1º Fase - 2º Fase, Madrid, Spain
Part of:
People:
  • Álvaro Siza (archive creator)
Title:

Plans and sections for Centro Cultural de la Defensa - 1º Fase - 2º Fase, Madrid, Spain

Date:

circa 1988-1990

Form:
drawings
Quantity / Object type:
1 drawing(s)
Technique and media:

Ink on translucent paper

Dimensions:

sheet: 84,7 × 119,4 cm (33 3/8 × 47 in.)

Reference number:

ARCH290941

Credit line:
Álvaro Siza fonds
Collection Centre Canadien d'Architecture/
Canadian Centre for Architecture, Montréal
Don d’Álvaro Siza/
Gift of Álvaro Siza
Copyright:

© Álvaro Siza

Folder Number:

178-2018-493 XL

1
1

Sign up to get news from us

Email address
First name
Last name
By signing up you agree to receive our newsletter and communications about CCA activities. You can unsubscribe at any time. For more information, consult our privacy policy or contact us.

Thank you for signing up. You'll begin to receive emails from us shortly.

We’re not able to update your preferences at the moment. Please try again later.

You’ve already subscribed with this email address. If you’d like to subscribe with another, please try again.

This email was permanently deleted from our database. If you’d like to resubscribe with this email, please contact us

Please complete the form below to buy:
[Title of the book, authors]
ISBN: [ISBN of the book]
Price [Price of book]

First name
Last name
Address (line 1)
Address (line 2) (optional)
Postal code
City
Country
Province/state
Email address
Phone (day) (optional)
Notes

Thank you for placing an order. We will contact you shortly.

We’re not able to process your request at the moment. Please try again later.

Folder ()

Your folder is empty.

Email:
Subject:
Notes:
Please complete this form to make a request for consultation. A copy of this list will also be forwarded to you.

Your contact information
First name:
Last name:
Email:
Phone number:
Notes (optional):
We will contact you to set up an appointment. Please keep in mind that your consultation date will be based on the type of material you wish to study. To prepare your visit, we'll need:
  • — At least 2 weeks for primary sources (prints and drawings, photographs, archival documents, etc.)
  • — At least 48 hours for secondary sources (books, periodicals, vertical files, etc.)
...