Perspectives de vie

Ce dossier s’intéresse à la manière dont l’espace domestique organise notre environnement, nos habitudes, nos valeurs et les fonctions de notre corps. Cela revient à étudier les conventions : comment les normes deviennent des normes et comment l’architecture peut subtilement ou brutalement les faire éclater pour proposer de nouveaux modes relationnels avec soi-même et l’autre dans nos environnements les plus intimes. Ce dossier offre quelques éléments de discussion sur ce qui se produit quand la conception architecturale s’invite chez soi.

Article 15 de 17

Le paradis (perdu) des locataires

Matthias Sauerbruch en entrevue avec Albert Ferré, avec une série photographique de John Gossage

AF
Comment décririez vous la situation actuelle du logement à Berlin?
MS
Par où commencer? Il faut d’abord préciser un peu le contexte historique. Les tout premiers projets à Berlin qui ressemblent à des logements – par opposition aux maisons – sont construits pour les invalides à partir du XVIIIe siècle. Peu après, on érige des casernes pour les soldats et leurs familles. L’histoire de Berlin est étroitement liée au militarisme. Berlin devient une véritable ville avec l’expansion de la Prusse, qui agrandit ses territoires par la force militaire. Berlin abrite alors une importante population militaire.

Au XVIIIe siècle, d’ordinaire, les maisons sont la propriété des familles élargies qui les occupent avec leurs serviteurs. S’il s’agit d’artisans, leur atelier et leur personnel se trouvent aussi dans le même bâtiment, tout comme les commerçants dont la maison inclut une boutique. En outre, les citoyens de Berlin doivent héberger un ou deux soldats accompagnés de leur famille, à moins de payer un certain montant pour être dispensés de cette obligation. La construction de caserne devient donc pour loger le nombre croissant de soldats, ce qui aide bien sûr à contrôler et à organiser l’armée.

Le logement de masse arrive avec l’industrialisation et l’émergence d’un prolétariat industriel imposant. Entre la fin de la guerre franco-prussienne de 1871, au moment de la fondation de l’Empire germanique, et le début de la Seconde Guerre mondiale, la taille de Berlin se multiplie presque par six. La demande de logements déferle, et pendant les vingt ou trente premières années de cette période, on répond à ce besoin au moyen de ce qui est devenu la typologie prédominante de Berlin : les Mietskasernen, ou « casernes à louer », qui s’élèvent sur 21 mètres et bordent les rues ou entourent des cours. Parfois, une construction comporte plusieurs couches de profondeur encerclant le périmètre des emplacements respectifs, agglutinés entre des murs mitoyens.
AF
Et la plupart des nouveaux bâtiments sont construits sur des terrains vierges?
MS
Oui, la ville connaît un formidable essor. Ce développement s’appuie sur un plan directeur –ensemble de règles régissant la division des terrains – et sur une stratégie visant l’infrastructure, ainsi que sur la gestion de la circulation, les égouts et autres réalités similaires. Mais ce sont des promoteurs particuliers qui construisent la ville même; aussi l’essor s’accompagne-t-il de spéculation immobilière.

Lire la suite

AF
Alors, à compter du XIXe siècle, la majorité des résidents sont locataires?
MS
L’appartement remplace la maison de famille comme unité de base de la ville. Les familles louent leur habitation à un propriétaire ou la reçoivent de l’État ou de l’armée. Aujourd’hui encore, les logements loués comptent pour 85 pour cent des foyers berlinois. À Londres, en revanche, le nombre de logements loués se chiffre à peu près à 20 pour cent.

En 1940, Berlin compte près d’un demi million d’habitants, sur une surface qui couvre près de la moitié de la ville actuelle. Berlin est aussi, depuis le XIXe siècle, fortement industrialisée. La ville abrite plusieurs usines et elle est un haut lieu de la révolution électrique. Cette dynamique s’effondre après la guerre à cause du grand nombre de propriétés détruites et de la division de la ville en quatre secteurs puis, de facto, en deux secteurs. La population de Berlin-Ouest diminue et se chiffre à un demi-million d’habitants. La ville se retrouve au milieu du territoire soviétique, le pire endroit pour lancer un commerce ou continuer de le gérer. Aussi les entreprises installées à Berlin déménagent elles leurs avoirs, leur personnel et leur production en Allemagne de l’Ouest, et les bâtiments sont abandonnés. Berlin-Ouest est alors privée de ses industries, et à l’Est, les Russes démontent de nombreuses installations industrielles pour les envoyer plus à l’est, hors d’Allemagne. En ce sens, la situation des deux côtés du mur est très semblable.

Par conséquent, un nombre impressionnant de bâtiments restent vides après la Seconde Guerre mondiale. Dans les années 1980, à l’époque où j’étais étudiant, je vivais avec un de mes amis dans un trois pièces de 100 mètres carrés dont le loyer mensuel s’élevait à environ 300 marks, soit près de 150 euros. Le bassin de logements était important, donc les loyers étaient très bon marché. De toute évidence, les logements étaient délabrés, et les normes techniques et sanitaires, très insuffisantes – dans mon premier appartement à Berlin, la toilette se trouvait dans l’escalier, et pour chauffer, il fallait aller chercher du charbon au sous sol et l’allumer dans le four tous les matins. Mais quand on est étudiant, ces détails ne nous dérangent pas.

Une fois l’armée allemande rétablie en 1955, les hommes sont tenus soit de faire le service militaire, de travailler dans un hôpital ou d’accomplir une autre fonction civile. Cependant, les résidents de Berlin, en raison du statut accordé à la ville en vertu des accords quadripartites, sont dispensés du service militaire. De nombreux jeunes gens se rendent à Berlin. Une foule de non conformistes s’installent dans les ruines de la métropole qui, à tout prendre, offrent des conditions de vie très acceptables. La situation est à l’inverse de celle qui prévalait au XVIIIe siècle : la population a grossi non pas à cause des soldats, mais des jeunes fuyant le service militaire.
AF
Mais vous avez sauté la période de Weimar.
MS
Oui. Après le choc de la Première Guerre mondiale et la fin de la monarchie, Berlin est dirigée par le parti social-démocrate, qui accorde une grande importance au logement social. Des années 1910 aux années 1930, différents types d’associations d’habitation et de coopératives voient le jour. On déploie de grands efforts pour réformer la situation du logement et offrir de meilleures conditions de vie. Les célèbres ensembles résidentiels appelés Siedlungen sont construits à cette époque en banlieue de la ville, où le terrain est moins cher. L’emplacement correspond aussi à l’idée d’air pur et de vie saine dans la nature, où les enfants peuvent jouer dehors. Cette tendance provient de la réaction aux mauvaises conditions sanitaires et à la surpopulation prévalant dans les cours exigües typiques des ensembles urbains, qui connaissent de sérieux problèmes d’hygiène. Ainsi, les cas de tuberculose et même de fièvre typhoïde ne sont pas rares. Les coopératives qui ont lancé les Siedlungen deviennent d’importantes associations d’habitation à Berlin, telle GSW par exemple, dont nous avons conçu le siège social à Berlin dans les années 1990. À l’époque de la République de Weimar, GSW avait été client de Scharoun, de Mies van der Rohe, de Häring, de Taut, de Forbát et d’autres encore. Quand nous avons rencontré ses représentants au début des années 1990, l’entreprise possédait 7 000 appartements à Berlin-Ouest. Après la chute du mur de Berlin, elle a hérité de 18 000 logements supplémentaires de l’ancienne ville de l’Est.

À Berlin-Ouest, les architectes de Berlin n’ont pour presque seuls clients que ces associations d’habitation. Le marché immobilier est inexistant jusqu’à l’unification, car la demande, et avec elle les loyers, sont si bas qu’il est impossible d’en tirer des revenus à moins d’être subventionné. Les familles qui possèdent encore des maisons n’ont plus les moyens de les entretenir. L’investissement n’existe plus, même pas pour des réparations de base. Ainsi, plusieurs moulures de façades abîmées par les bombardements sont arrachées, faute d’être remises en état. On voit de nos jours nombre d’édifices dont les façades étaient ornées, au XIXe siècle, de décorations historicistes, et dont les façades sont aujourd’hui nues. Il n’y a pas eu de spéculation immobilière comme à Londres ou à Paris. Berlin était le paradis des locataires. Sa population a augmenté très lentement, mais elle n’a jamais atteint les quatre millions et demi d’habitants qu’elle comptait avant la guerre.

Du point de vue quantitatif, il n’a pas été nécessaire de construire de nouveaux logements, mais on a créé de vastes programmes de Sanierung visant à rehausser les normes et la qualité du parc immobilier. À l’Est comme à l’Ouest, en raison des lourds dommages dus à la guerre, des problèmes d’hygiène présents dans les anciennes Mietskasernen, de l’idéologie moderniste, du besoin de créer des emplois et du désir politique de donner un nouveau départ, on démolit des quartiers entiers en vue d’y établir des Sanierung et de remplacer les anciens bâtiments par des nouveaux. À l’Est, ce projet est mis en œuvre à grande échelle, car il n’est pas nécessaire de prendre des décisions démocratiques entravant la progression des travaux. Mais ce processus est moins extensif dans les secteurs centraux de l’Est et passablement dans les banlieues où émergent de nouvelles villes, aujourd’hui plus denses que les Siedlungen originaux. Partout où des bâtiments historiques sont abandonnés, ils se délabrent. Vers 1990, à l’Est comme à l’Ouest, des quartiers entiers ne sont pas entretenus ni réparés depuis la guerre. Les trous de balles apparaissent encore sur les façades. À Berlin-Ouest, les protestations éclatent dans les années 1970. Les gens s’opposent aux démolitions car les vieux appartements sont de meilleure qualité que les nouveaux. Des squatteurs occupent les bâtiments désaffectés et les réparent, mais n’importe comment. Étrangement, il a fallu la présence des squatteurs pour faire comprendre la qualité des édifices existants. La politique de remplacement évolue lentement pour devenir une politique de réparation. En 1984, la moitié de l’Internationale Bauausstellung (IBA) montre comment réparer la ville, au sens littéral de réparer les bâtiments et les quartiers, et l’autre moitié montre comment reconstruire la typologie d’une ville européenne traditionnelle, suggérer la continuité là où il y a eu rupture violente.

Sauerbruch Hutton, architectes. Siège social de GSW, Berlin, 1991-1999. Photographie d’Annette Kisling

AF
Ainsi, lorsque l’IBA est mise sur pied, elle ne constitue pas une réponse au besoin de nouveaux logements?
MS
Pas du tout. On a engagé les associations d’habitation de la ville pour construire les bâtiments de l’IBA. Tous les projets de l’IBA nouvellement construits – ou presque tous – sont réalisés d’une façon ou d’une autre grâce aux fonds publics. Et comme certaines normes doivent être appliquées aux appartements, les édifices sont très semblables, ne différant que par leurs façades. Voilà qui est cohérent avec cette idée de la reconstruction de la ville. C’est bien sûr très différent de l’IBA de 1957, à Hansaviertel. La première exposition est axée sur un nouveau départ. Elle a lieu dans un secteur très endommagé, mais qui aurait pu être réparé. Au lieu de cela, ce qui reste de bâtiments historique est détruit, on change le tracé des routes et on crée un modèle urbain entièrement nouveau, fondé sur les CIAM. Les architectes expérimentent de nouveaux formats de vie – pas juste sur le plan urbain, mais aussi pour les appartements individuels. Cela correspond à la situation économique d’après-guerre, mais à une échelle très modeste.

Enfin, toutes ces activités d’après-guerre concernant l’habitation ont lieu dans un environnement économique relativement détendu. Presque tous les projets sont directement ou indirectement financés par le gouvernement central. Dans les années 1990, la ville compte 500 000 logements sociaux, ce qui est beaucoup pour une population de moins de trois millions d’habitants. Après l’unification, lorsque Berlin doit prendre des mesures pour devenir économiquement indépendante, le gouvernement – coalition du parti social-démocrate et du parti de gauche (Die Linke) – décide entre autres de vendre des appartements. Le maire de l’époque, Klaus Wowereit, a pour devise « Sparen, bis es quietscht » (économisez jusqu’à ce que ça fasse mal).
AF
Les socialistes ont pris de pareilles mesures dans toute l’Europe à cette époque.
MS
Les actifs de GSW sont vendus. De fait, toute l’entreprise est vendue. Ses appartements se vendent en moyenne 40 000 euros l’unité, ce qui n’est rien. C’était incroyable.
AF
Ainsi, tous les logements sociaux, tous les appartements gérés par des associations vouées au logement social, sont tombés aux mains du secteur privé.
MS
Un peu moins de la moitié d’entre eux. Les appartements sont surtout vendus à des entreprises privées ou à d’autres types d’investisseurs, qui les rénovent et les revendent. Les investisseurs modernisent les appartements pour les retirer du secteur du loyer modique. Ils ont pu le faire car les règlements concernant les subventions exigeaient de garder un loyer bon marché pendant seulement dix ans. Par la suite, ils ont fait ce qu’ils voulaient. Ils ont gagné gros, bien sûr. Des entreprises commerciales comme Deutsche Annington ont remplacé les associations d’État comme propriétaires. Tout cela s’est produit parce qu’on a présumé que la ville deviendrait de moindre importance, mais vers 2007, elle a recommencé à grossir.
AF
Soudain, il n’y a plus eu assez de logements.
MS
Au cours des dernières années, la population de la ville a augmenté, comptant plus de 30 000 habitants de plus par an. En 2015, Berlin a accueilli en outre 80 000 réfugiés. Et l’espace habitable occupé en moyenne par un individu est passé d’environ 25 mètres carrés juste après la guerre à près de 50 mètres carrés aujourd’hui.
AF
Il y a donc un problème.
MS
Exactement. Il y a un problème évident de disponibilité, mais aussi un problème d’échec de responsabilité. Une grande partie de la population loue des appartements et s’attend à conserver un loyer modique, mais les prix du marché ont beaucoup augmenté. Le prix du logement social à Berlin est fixé à 6,50 euros le mètre carré, par mois. Un calcul équitable montre qu’il faut louer à environ 10 euros le mètre carré, par mois, pour obtenir un taux de rendement raisonnable, semblable à celui d’autres investissements, même dans le cas d’une maison modeste construite, selon les normes allemandes, sur un terrain de prix moyen. Il y a donc un écart d’environ 3,50 euros qui doit être financé par le gouvernement. De toute évidence, toute cette politique a eu un effet inverse. Les problèmes financiers ont été résolus à court terme seulement. La dette affectera les futures générations. Et cette politique perpétue l’attente qu’en tant que citoyen, vous ayez le droit d’habiter un appartement assez grand qui corresponde aux normes d’habitation, pour un loyer ne dépassant pas 6,50 euros le mètre carré.
AF
Mais vos revenus sont sûrement vérifiés, pour voir si vous êtes admissibles.
MS
Oui, bien sûr, mais à Berlin, plus de 50 pour cent de la population ne paie pas d’impôts, car la ville compte plusieurs étudiants, retraités et assistés sociaux. C’est un énorme problème. En outre, le gouvernement tente de prendre des décisions populaires pour s’assurer des votes. Die Linke défend maintenant une sorte de système d’habitation géré par l’État, comme celui qui existait dans la RDA ou en Grande-Bretagne juste après la guerre, sous le gouvernement travailliste de Clement Attlee. Ces mesures conduiraient à de nouvelles dettes qui deviendraient ingérables. En tout cas, le système semble vaguement défendable pour le moment, car la Banque centrale européenne maintient artificiellement des taux d’intérêt très bas. Cette situation va s’effondrer tôt ou tard.
AF
Le gouvernement subventionne le logement, c’est à dire qu’il finance les entreprises propriétaires d’appartements.
MS
Exactement. Cet argent vient des poches des autres contribuables. Les promoteurs choisissent toujours le marché de l’habitation de luxe, car c’est la façon la plus facile de réaliser de bons profits. Mais Berlin a maintenant un règlement en vertu duquel 30 pour cent des logements construits doivent être offerts à un prix abordable. Bien sûr, les promoteurs ne prennent pas ces montants dans leurs poches, mais ils transfèrent la différence aux 70 pour cent des autres habitations. Ainsi, les résidents locaux qui achètent un appartement à Berlin doivent non seulement payer les taxes couvrant les subventions offertes par l’État, mais ils financent aussi les appartements à loyer abordable de leurs voisins immédiats. Cela rend difficile l’accès à la propriété et crée de nombreux conflits.
AF
Si les taux d’intérêt augmentent, le système va s’effondrer.
MS
Oui. Dans tous les cas, tous les États européens sont très endettés; la situation est volatile. En Allemagne, les gens ont de grandes attentes envers les normes techniques et le confort de leur habitation, par exemple en ce qui concerne le rendement thermique et l’insonorisation. Dans certaines villes – mais plus à Berlin cependant –, il faut fournir un stationnement pour chaque appartement. Il existe aussi des ratios de terrains de jeux et d’espaces verts, et de nombreux ensembles résidentiels doivent financer les écoles et les garderies. Tout cela fait augmenter les prix. De même, les mesures durables qu’on croit devoir mettre en œuvre, comme le chauffage géothermique, font augmenter le prix du loyer. Donc les grandes attentes techniques s’accompagnent de normes concernant l’architecture et les matériaux qui ne cessent de décroître.
AF
Comment réagissent les architectes à cette situation?
MS
Notre bureau effectue un travail sérieux à plus grande échelle avec des promoteurs commerciaux construisant des résidences. Nous venons de nous familiariser avec la situation. Nous avons par exemple conçu le plan directeur de 21 édifices situés juste en face de notre bureau. Il est intéressant de voir tous les jours le chantier et de mesurer l’efficacité de la gestion. Tout l’ensemble a été confié à une seule entreprise, qui organise le travail comme une chaîne de production. Ça semble positif, mais bien sûr les promoteurs cherchent aussi à diminuer tous les autres coûts, ce que nous n’apprécions pas. Par exemple, les systèmes en façade ne sont plus que des finis en plâtre recouvrant des planches en mousse de polyuréthane qui isolent les structures de béton. On utilise partout des plastiques plutôt laids et peu écologiques, même pour les fenêtres. Le seul avantage des fenêtres en plastique, c’est qu’elles réduisent les coûts d’investissement.
AF
Cette réduction des normes provient elle de l’idée que les bâtiments ne doivent pas durer – qu’ils ne sont pas construits pour durer comme autrefois?
MS
C’est une question intéressante. Bien sûr, les promoteurs prétendent que ces maisons sont construites pour durer, parce que ça fait partie de la mise en marché. Mais ce n’est pas le cas. Les façades et les finitions intérieures ne sont certainement pas construites pour durer. Il faudra sans doute les remplacer dans dix ou quinze ans. Mais par ailleurs, les maisons, autrefois, ont toujours eu besoin de réparations.
AF
Exactement.
MS
Il fallait les entretenir. Ce désir de construire des bâtiments qui n’auraient plus besoin d’entretien est un phénomène nouveau. Si vous vivez dans une maison en bande à Londres, par exemple, vous prenez rapidement l’habitude de réparer le toit aux cinq ans parce qu’il coule. Certains collègues, comme Arno Brandlhuber, élaborent des approches créatives pour abaisser les normes. Il interprète librement les règlements en matière de construction et n’a pas peur de solutions moins durables. Il a doté sa propre maison dans Brunnenstraße d’une façade faite de panneaux de polycarbonate extrudé. La façade est très bon marché, mais elle n’a pas un bon rendement. Ce type d’approche fonctionne avec les clients et les utilisateurs vendus à cette idée, mais sur le marché courant de l’habitation, un bâtiment comme celui-là passerait pour inférieur aux normes. D’autre part, le projet d’Arno aborde en toute honnêteté la situation. Il montre ouvertement ce que tout le monde obtient. Mais sur le marché, on aurait enveloppé le bâtiment d’une façade conçue pour faire croire qu’elle est durable, qu’il s’agit d’une bonne architecture. Son projet est brutal du point de vue matériel, mais généreux sur le plan spatial. Arno a eu la chance de trouver dans un emplacement très central un bâtiment à moitié fini, abandonné par suite d’une faillite. Le sous-sol et certains murs étaient déjà montés. Arno a juste achevé ce qu’il a trouvé. Ainsi le terrain, dont le prix est aussi un facteur critique, a été acquis à peu de frais.

Notre bureau explore différentes approches. Ainsi, à Hambourg, nous achevons tout juste un projet d’habitation modulaire préfabriquée. Les modules sont fabriqués en Autriche. Ils forment des appartements complets.

Sauerbruch Hutton, architectes. Vue du projet en chantier, Universal Design Quarter, Hambourg, 2017. Photographie de PRIMUS developments GmbH/Senectus GmbH

AF
La construction est elle en bois?
MS
Oui, tout est en bois. La base et les noyaux sont en béton pour la circulation et les services, et il y a ces éléments préfabriqués.
AF
S’agit il d’un projet d’habitation subventionné?
MS
Non, il est privé et répond à la demande du marché. La location au mètre carré est plus élevée que celle des logements sociaux, mais dans l’ensemble, le prix est abordable car les appartements sont très petits, mais fonctionnels et confortables. Le projet apporte une véritable réponse à la question écologique. L’empreinte de dioxyde de carbone des petites unités est minimale. De toute évidence, le bois est un matériau neutre en carbone, et la préfabrication modulaire réduit la consommation d’énergie de la production. Il y a très peu de déchets. Le transport se limite à un déplacement entre l’usine et l’emplacement des appartements. Comme on évite la complexité habituelle des chantiers, la phase de production est rapide et dérange moins le voisinage. Pour ce qui est de la qualité, elle équivaut à celle du travail réalisé par un menuisier dans son atelier. La portion en béton est de base, mais le travail du bois est excellent. Ce projet rappelle la vieille idée d’un bâtiment industrialisé, et le tout rentre dans un camion. Chaque unité a environ la taille d’un conteneur – bien sûr, on peut joindre les unités – mais tout est fondé sur cette contrainte. La structure s’apparente à celle d’un tatami, et le tout doit passer en dessous des ponts autoroutiers. La construction coûte peut-être un peu plus cher pour l’instant, mais comme il s’agit d’un prototype, le prix descendra probablement par la suite.

Sauerbruch Hutton, architectes. Vue du projet en chantier, Universal Design Quarter, Hambourg, 2017. Photographie de PRIMUS developments GmbH/Senectus GmbH

Sauerbruch Hutton. Plan typique du « Woodie », une structure modulaire de 370 micro-appartements préfabriqués, entièrement faite en bois, Universal Design Quarter, Hambourg, 2017

AF
Si vous produisez plus d’unités?
MS
S’il y a plus d’expérience et de concurrence, car pour l’instant, seules quelques entreprises peuvent se permettre un tel projet. En Autriche, quelques familles se spécialisent dans ce type de production, et elles ont véritablement conquis le marché. En Allemagne, jusqu’à présent, les règlements en matière d’incendie ont constitué le principal défi. Ils varient d’un état à l’autre, mais la plupart n’autorisent pas l’utilisation de bois d’œuvre. Notre projet de bâtiment compte sept étages, et au sens strict, on ne peut utiliser du bois que jusqu’au deuxième étage et demi. À Hambourg, notre projet a suscité des changements aux règlements en matière d’incendie. Maintenant, on peut utiliser du bois jusqu’à une hauteur de 24 mètres pourvu d’appliquer des mesures compensatoires. Dans notre cas, ces mesures ont été les noyaux de béton qui permettent en tout temps de sortir, en cas d’incendie, par un escalier sécuritaire. Des corniches horizontales divisent les façades, empêchant que le feu ne s’étende facilement d’un étage à l’autre. Une fois ces stratégies devenues courantes, le prix devrait baisser. Je pense que le projet ouvre un avenir intéressant à l’habitation. Nous avons en ce moment besoin de nombreux logements pour les réfugiés, et les autorités fabriquent juste des villes de conteneurs. Les réfugiés y sont installés par le gouvernement, ce qui leur procure peu de dignité et ne confère pas de perspective à long terme à la ville.

Ici à Berlin, le gouvernement construit ce qu’on appelle des Tempohomes faites de conteneurs d’acier, comme les installations réservées parfois aux ouvriers des chantiers de construction. Le tout, recouvert de plastique, offre une structure de base. L’installation convient pour quelques mois, mais pas pour une plus longue durée. On a vraiment manqué l’occasion de créer un meilleur concept, c’est triste. Il faut espérer que nous tirerons des leçons de la simplicité nécessaire pour les logements destinés aux réfugiés, et que ces leçons nous aideront à nous défaire des clichés sur les appartements typiques pour les familles, pour que le marché de l’habitation ne soit plus conçu exclusivement pour les familles nucléaires : la mère, le père et deux enfants. Mais ce modèle n’est plus la norme. La moitié des gens vivent seuls, et dans les foyers comptant plus d’une personne, seuls 30 pour cent ont ce format nucléaire.
AF
Effectivement, tout cet ancien parc d’habitation a été conçu pour un autre type d’organisation sociale. Mais les appartements du XIXe siècle ont une grande souplesse car toutes les pièces sont plus ou moins de la même grandeur.
MS
La souplesse résulte en fait de la grande taille de ces appartements : les pièces sont plus vastes, les hauteurs d’étage sont plus élevées et les appartements sont plus grands que ceux de nos bâtiments contemporains. Les résidences bourgeoises disposaient aussi souvent d’espaces pour loger les domestiques. Au XIXe siècle, ces habitations étaient sans doute surpeuplées car elles abritaient des familles nombreuses, mais au taux d’occupation actuel, elles offrent une relative liberté d’ajustement, contredisant ainsi le paradigme d’efficacité. Dans les vieux Mietskasernen par exemple, on trouve presque toujours une pièce appelée Berliner Zimmer, issue tout droit de l’urbanisation de Berlin au XIXe siècle. Il s’agit de la pièce de coin de la cour intérieure. Essentiellement, en faisant le tour de la cour, on voit toujours quatre coins dépourvus de fenêtre.
AF
En effet.
MS
Ou encore, il y a une petite fenêtre pour une pièce très vaste. Comme on ne peut pas utiliser ces pièces adéquatement, chacun est invité à lui trouver son propre usage. C’est un luxe à bon marché, car on ne peut pas demander un plein loyer pour cet espace.
AF
Quelle est la solution pour l’avenir?
MS
On pourrait régler le dilemme de l’habitation à Berlin entre autres si les gens décidaient d’acheter leur appartement. Le gouvernement de Singapore, par exemple, vend des appartements à des tarifs préférentiels aux gens dans le besoin – ce qui revient à les subventionner. Les personnes admissibles, dont les revenus atteignent un certain pallier, doivent contracter une hypothèque gouvernementale. Les appartements peuvent être vendus après un certain délai et se retrouvent ainsi sur le marché, ce qui permet aux propriétaires de se faire un peu d’argent, malgré les restrictions imposées en vertu des règlements sur les logements sociaux. Les propriétaires, parce qu’ils ont la possibilité de revendre leur appartement, en prennent soin. Généralement, ces logements sont très bien entretenus. Le gouvernement s’est ainsi donné le moyen d’aider les individus et les familles directement. C’est une façon très intelligente d’intervenir, selon moi. À Berlin, la location perpétuelle enferme les citoyens et le gouvernement dans un mécanisme qui crée une grande lourdeur administrative et une mentalité de gestion hiérarchique.

Lorsque Margaret Thatcher a lancé les logements sociaux en Grande-Bretagne et accordé des taux d’intérêt très bas aux personnes désirant devenir propriétaires, la chose était devenue presque indispensable. Il aurait fallu gérer cette situation de manière plus responsable que cela ne l’a été à l’époque, mais je pense qu’une mesure de ce genre pourrait réellement introduire des changements à long terme.
AF
Je suis curieux au sujet de ces coopératives d’habitation. C’est un nouveau phénomène. Autrefois, quelqu’un possédait un terrain et l’aménageait. Maintenant, vous décidez avec qui vous voulez habiter, à quel endroit et de quelle manière.
MS
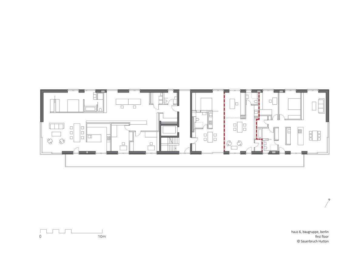
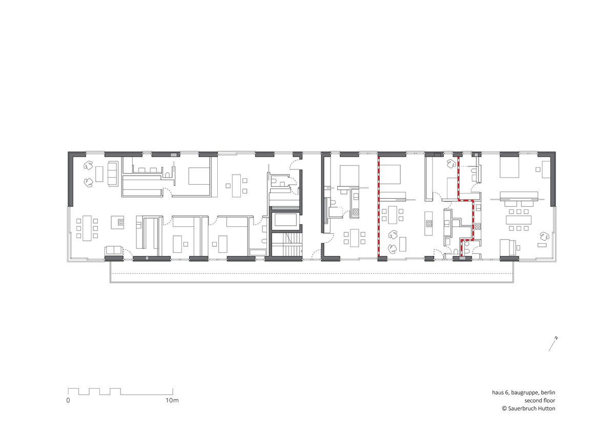
Oui, ça s’appelle des Baugruppen. Dans un projet comme notre Haus 6, nous avons conçu une structure simple et préusinée qui permet de personnaliser les plans, tant pour les subdivisions d’un étage en plusieurs unités que pour la disposition de chaque appartement. On peut ainsi répondre aux besoins des familles traditionnelles, des partenaires, des gens qui travaillent à domicile ou à l’extérieur, des grands-parents, des enfants indépendants, et cetera, ce qui n’existe pas dans un appartement habituel où l’usager doit s’adapter au produit, et non l’inverse. En outre, les Baugruppen réduisent les profits du promoteur si les clients engagent l’architecte directement, et s’ils peuvent collectivement acheter tout le bâtiment. C’est bon pour les clients, mais évidemment cette solution implique plus de travail pour les architectes – travail qui est néanmoins intéressant – puisqu’ils doivent concevoir plusieurs appartements sur mesure plutôt que de créer un modèle uniforme répété à chaque étage. Mais parfois, l’architecte doit aussi donner un cours d’architecture et de construction pour adultes, et parfois tenir une clinique de psychothérapie.

Sauerbruch Hutton. Vue de l’intérieur en chantier, Haus 6, Berlin, 2017

Dans les projets commerciaux, cette possibilité n’existe évidemment pas. Nous en avons fait l’essai dans un de nos projets. Nous nous sommes battus pour créer une structure qui nous donne au moins la possibilité de retirer deux murs et de créer ainsi une aire plus ouverte. Mais cela nous a demandé beaucoup d’énergie. En général, on débat sans fin sur de petits détails comme la profondeur des balcons, l’intégration ou non de la cuisine au salon, et ainsi de suite. Mais c’est une bataille perdue, parce que le point de départ de ces projets est déjà fautif.

AF
Ces discussions sur les différentes configurations et la possibilité de transformer les espaces étaient elles présentes à l’IBA, dans les années 1980? Pas du tout, non? Ils proposaient alors des modèles très standards.
MS
Les discussions devaient être similaires à l’époque. Les architectes avaient des ambitions très poussées, mais ils ne pouvaient pas expérimenter au delà des configurations habituelles. L’IBA de 1957 a été différente. Si vous examinez les plans de Van den Broek et de Bakema, ou ceux d’autres tours résidentielles, vous en verrez des exemples avancés. Luciano Baldessari a réalisé une tour dotée de ventilation naturelle transversale. Il s’agit essentiellement d’un rhomboïde oblong, avec deux conduits de convection qui traversent le plan de façon à ventiler transversalement les quatre appartements dans les quatre directions. C’est très inhabituel.

Van den Broek et Bakema ont prévu des balcons partagés. Il y a aussi la tour de Gustav Hassenpflug, entièrement construite à partir d’un système. Elle est faite au complet d’éléments préfabriqués et possède des balcons à deux étages. Plusieurs des idées d’habitation actuelles existaient déjà à l’époque. Les architectes ont fait des essais en suivant les normes minimales de l’époque – parfois, dans des appartements hauts d’à peine 2,1 mètres. Ce qu’on a appelé la maison suédoise, conçue par deux architectes suédois, Fritz Jaenecke et Sten Samuelson, dispose d’une cuisine minimale. À l’époque, on faisait beaucoup d’essais concernant la taille des appartements, mais l’IBA des années 1980 était axée sur la continuité de la ville – Aldo Rossi, essentiellement.
AF
Pouvez-vous déterminer une cause ou un point d’origine au désir de vivre ensemble et l’appliquer à la phase de conception, comme nous l’avons vu dans les Baugruppen?
MS
Je pense que ce désir résulte indirectement de la libération des vies individuelles. Les droits des femmes, des homosexuels, l’égalité sociale –  tout ce qui peut être considéré comme un accomplissement – a certainement donné à plusieurs personnes une plus grande liberté. Mais cela a aussi fragmenté les formats traditionnels de la structure sociale et conduit à une plus grande individualisation. Au XVIIIe siècle, la maison constituait l’unité de la ville. Elle logeait la famille qui en était propriétaire, les domestiques et les employés si la famille fabriquait ou vendait des biens. Au XIXe siècle, l’appartement est devenu l’unité. Aujourd’hui, c’est l’individu qui est devenu l’élément de base. Berlin est une ville de célibataires.

Certaines coopératives d’habitation pionnières répondent assez bien à cette situation, comme Spreefeld, projet réalisé à Kreuzberg, près de la rivière. Cela ressemble à un village qui offre différents types de logements, y compris des appartements partagés. On y trouve trois grandes pièces et diverses terrasses communes, ainsi qu’un hangar contenant un bateau que tout le monde peut utiliser. On est en train de construire un autre projet, Holzmarkt, sur l’autre rive de la Spree. On y trouvera un club, un hôtel, un restaurant et divers ateliers. Je trouve ce projet très intéressant, même si du point de vue architectural, il est discutable. Il donne l’impression d’adopter une approche qui part de la base, mais en réalité, il est très contrôlé.

Dans cette ville de célibataires, il importe selon moi de créer des espaces invitants autour de la maison, pour s’y asseoir, bavarder, rencontrer des gens. Voilà plusieurs années, nous avons réalisé un projet à Helsinki. Il est maintenant achevé, malheureusement pas de la façon dont nous l’avions prévu. C’est le plan directeur d’un pâté de maisons à Jätkäsaari, ancien secteur portuaire en train d’être réaménagé. Le concours s’intitulait Low2No, car on voulait en faire un quartier sans émissions de carbone. Nous avons conçu des espaces pour les activités de quartier et pour des petits commerces, des lieux pour partager la garde des enfants et un sauna communautaire, ce qui compte beaucoup en Finlande. Mais tout cela a été balayé pendant la mise en œuvre. C’est un casse-tête. Si l’État soutient tous les projets et que tous dépendent de l’État, cela conduit à des problèmes évidents. Mais lorsqu’on laisse le problème au secteur privé, c’est le marché qui détermine tout. Et si les investisseurs s’attendent à du rendement à court terme, vous ne pourrez pas avoir la prévoyance et l’attention requises, sans parler des idées qui n’ont pas encore été mises à l’essai. À Helsinki, à l’origine, le projet était dirigé par Sitra, un organisme gouvernemental d’innovation, mais après un changement de politique, Sitra a retiré son appui. Au résultat, toutes les magnifiques installations communautaires ont été enlevées sans merci par un processus commercial qui, ironiquement, est préoccupé par le coût exorbitant du terrain exigé par la ville et par le coût du concours même.
AF
Il semble que vous ayez besoin de clients qui possèdent les ressources et la vision pour réaliser ce genre de coopérative d’habitation, ou qu’il vous faudrait un état puissant rendant possible un tel projet. On ne peut pas le confier à des promoteurs.
MS
Je pense que les gens devraient prendre leur propre destin en main et s’engager, au lieu de se plaindre continuellement que l’État ne leur en donne pas assez. Et cela passe uniquement par la propriété. Les Baugruppen sont une belle initiative, mais les gens aux moyens réduits y ont difficilement accès, car il arrive un moment où il faut faire affaire avec la banque. Peu de banques appuient les Baugruppen, et il faut pouvoir offrir des garanties. Il est sans doute plus facile de devenir membre d’une coopérative. Il faut verser un montant d’adhésion, puis payer un montant mensuel, comme un loyer. Vous êtes propriétaire, l’appartement est votre garantie, et le poids financier est étalé de façon raisonnable. Bien sûr, le paysage de l’habitation ne se transformera pas instantanément. Nous avons besoin d’une petite révolution à Berlin.

Matthias Sauerbruch est un architecte et un partenaire fondateur dans l’agence Sauerbruch Hutton, basée à Berlin.

1
1

Inscrivez-vous pour recevoir de nos nouvelles

Courriel
Prénom
Nom
En vous abonnant, vous acceptez de recevoir notre infolettre et communications au sujet des activités du CCA. Vous pouvez vous désabonner en tout temps. Pour plus d’information, consultez notre politique de confidentialité ou contactez-nous.

Merci. Vous êtes maintenant abonné. Vous recevrez bientôt nos courriels.

Pour le moment, notre système n’est pas capable de mettre à jour vos préférences. Veuillez réessayer plus tard.

Vous êtes déjà inscrit avec cette adresse électronique. Si vous souhaitez vous inscrire avec une autre adresse, merci de réessayer.

Cete adresse courriel a été définitivement supprimée de notre base de données. Si vous souhaitez vous réabonner avec cette adresse courriel, veuillez contactez-nous

Veuillez, s'il vous plaît, remplir le formulaire ci-dessous pour acheter:
[Title of the book, authors]
ISBN: [ISBN of the book]
Prix [Price of book]

Prénom
Nom de famille
Adresse (ligne 1)
Adresse (ligne 2) (optionnel)
Code postal
Ville
Pays
Province / État
Courriel
Téléphone (jour) (optionnel)
Notes

Merci d'avoir passé une commande. Nous vous contacterons sous peu.

Nous ne sommes pas en mesure de traiter votre demande pour le moment. Veuillez réessayer plus tard.

Classeur ()

Votre classeur est vide.

Adresse électronique:
Sujet:
Notes:
Veuillez remplir ce formulaire pour faire une demande de consultation. Une copie de cette liste vous sera également transmise.

Vos informations
Prénom:
Nom de famille:
Adresse électronique:
Numéro de téléphone:
Notes (optionnel):
Nous vous contacterons pour convenir d’un rendez-vous. Veuillez noter que des délais pour les rendez-vous sont à prévoir selon le type de matériel que vous souhaitez consulter, soit :"
  • — au moins 2 semaines pour les sources primaires (dessins et estampes, photographies, documents d’archives, etc.)
  • — au moins 48 heures pour les sources secondaires (livres, périodiques, dossiers documentaires, etc.)
...