Lisez en:

Une façon d'être architecte

Sebastián Adamo et Marcelo Faiden retracent l’histoire architecturale récente de Buenos Aires

Immeuble Los Eucaliptus. Ferrari Hardoy et Kurchan. Buenos Aires, 1941

Il existe une façon d’être architecte qui se nourrit de désirs et de demandes, d’intérêts superposés et d’une grande diversité d’impulsions projetées sur l’architecture à partir d’environnements assez distants entre eux. Les méthodes et techniques de projet développées par ce modèle de professionnel atteignent leur potentiel maximal face à des situations ordinaires. Leur production trouve sa pertinence lorsque personne ne la réclame. Presque toujours et presque partout. Cette façon d’être architecte est ainsi associée à une grande sphère d’actions. Un environnement vaste et souple, idéal pour déployer ses intentions.

Pour le meilleur ou pour le pire, la ville de Buenos Aires a favorisé l’essor de cette façon d’être architecte. Un programme de concours historiquement squelettique a empêché un foisonnement d’architectes spécialisés dans l’œuvre publique. Les matérialisations exceptionnelles réalisées d’après ce système de passation de contrats se sont transformées en cela exactement : des exceptions. Ni la ville ni les études professionnelles n’ont été modelées par des occasions de projets protégés. C’est-à-dire par des immeubles auxquels on aspire et produits en marge des intérêts privés.

Cependant, devant cette description très peu stimulante, il convient de remarquer que cette même ville a maintenu un échange culturel fluide avec le monde. Les idées ont fait des allers-retours, à travers le ciel et les océans, gardées par des architectes à vocation universelle, avides de participer aux débats qui ont mobilisé chacune des parties prenantes de la discipline. Il est probable que la production architecturale de Buenos Aires réponde en grande partie à la pénurie d’institutions qui en font la promotion, ainsi qu’à une vocation extrême de la pratiquer à tout prix. Les protagonistes de cette approche ont présumé que les caractéristiques de leur environnement les empêcheraient de reproduire avec exactitude les modèles externes. Et au lieu d’offrir une résistance, ils ont eu recours à tout leur arsenal de possibilités pour déchaîner une nouvelle itération des mêmes protocoles de design, en permettant à un contexte traversé par les lois du marché d’offrir des versions surprenantes d’orientations disciplinaires mises à l’essai en d’autres contextes. Ce groupe d’architectes se chargera d’étendre les éléments qui interviennent dans le projet. Pour eux, le design entraînera le fait de trouver la position adéquate à l’intérieur de chaque cycle économique, impliquera la construction attentive d’un nouveau type de commanditaire à la hauteur de ses intérêts et par-dessus tout, impliquera le développement d’un sens aigu de l’opportunité.

Mais pour décrire de façon plus précise cette façon d’être architecte, il convient peut-être d’approfondir davantage. Si jusqu’ici nous avons fait allusion à sa capacité de combiner des intentions architecturales dans un contexte pour le moins exigeant, nous pénétrerons enfin la sphère de ses obsessions privées et de ses fantasmes, mis dorénavant au service de la construction de sa propre idée de la domesticité. Les conditions sociales et économiques de Buenos Aires seront accompagnées d’un tissu dense et compact, construit sur des lots relativement petits, faciles à régénérer. Cet environnement donnera forme à un territoire fertile pour mettre à l’essai de nouveaux modèles d’habitat collectif. Telle sera la typologie sélectionnée. Le groupe d’architectes sur lequel nous souhaitons porter notre attention choisira de construire son propre habitat entouré d’autres personnes et d’autres immeubles. Les habitats seront dissous dans le paysage d’une ville qui peut faire défiler un siècle d’histoire si on s’arrête à chacune de ses constructions. Chaque cas se transforme en un observatoire pour redécouvrir notre territoire. Un lieu où on peut se séparer du sol pour jouir de larges vues capables de traverser le temps et de rénover le sens de nos ambitions.

Ce groupe d’architectes n’aura pas besoin de construire une maison isolée du monde, enveloppée dans un paysage naturel et stimulant pour concevoir une œuvre dotée d’intentions spécifiques. On ne saurait être plus éloigné de la carte blanche qui donne lieu à un ensemble de maisons construites et habitées par les architectes connus de presque tous. Nous nous intéressons aux immeubles où le marché immobilier ait fixé ses conditions et le projet ait réussi à affaiblir ses conventions et ses critères de valorisation. Cette façon d’être architecte débordera du cadre traditionnel du projet. Elle administrera un volume accru de variables et assumera beaucoup plus de responsabilités pour jouir ensuite d’une liberté d’action enviable. L’usage, l’emplacement et la résolution architecturale – le quoi, le où et le comment – deviendront des instances de projet simultanées et d’importance hiérarchique équivalente. À l’opposé de l’incorporation croissante de nouvelles spécialisations au domaine de la construction, les architectes de Buenos Aires formeront une résistance active employée à défragmenter le chemin qui va du projet à ses futurs résidents. Ils offriront ainsi un modèle de référence pour la construction d’une pratique capable de diluer les obsessions privées dans les besoins publics. Non pas parce qu’une poignée d’illuminés a résolu ce nœud gordien, mais parce que cette attitude pragmatique se transmettra de génération en génération, influençant de manière directe les pratiques contemporaines. Le panorama qui en résulte décrira un parcours d’un siècle à travers le tissu social de Buenos Aires. Un parcours d’immeubles construits dans les mêmes conditions que leurs voisins, mais capables de nous rappeler que toute occasion peut permettre l’apparition d’une architecture critique et proactive. Cette constellation de cas révèlera une grande diversité d’approches autour de l’habitat collectif, mais tous auront besoin d’un modèle d’architecte capable d’offrir un nouveau point de vue. Une position à partir de laquelle on peut déstabiliser les règles du jeu pour mettre à l’essai un nouveau regard. L’ensemble des cas nous démontrera que chaque instant requerra un déploiement de créativité qui définira progressivement un modèle de pratique spécifique, au profil aussi reconnaissable que pertinent.

Alejandro Bustillo, Studio et maison particulière, Buenos Aires, 1927. Sociedad de Arquitectos. Photographie : F. Gómez

Alejandro Bustillo profite de la construction d’un immeuble à revenus pour inclure son atelier au rez-de-chaussée et sa maison particulière à l’étage. Les techniques d’organisation spatiale, propres au classicisme, se soumettent ici aux contraintes d’un lot de petite taille, irrégulier et situé entre des murs mitoyens. La salle principale de son studio (photo) reproduira les mêmes éléments compositionnels qu’on trouvera dans les unités d’habitation, mais en augmentant cette fois de façon proportionnelle l’échelle des environnements et des éléments architecturaux. Le grand volume d’air intérieur accorde au mobilier une liberté organisationnelle qui échappe aux canons classiques.

Bonet, López Chaz et Vera Barros, Atelier pour artistes, Buenos Aires, 1938. Grupo Austral Manifest, dans Revista Nuestra Arquitectura

Antonio Bonet arrive à Buenos Aires recommandé par Ferrari Hardoy et Kurchan, ses anciens compagnons de l’atelier Le Corbusier. Sa maison se trouvera à l’étage de son premier projet en continent américain, sous une toiture voûtée proche d’une terrasse jardin, ouverte vers le centre-ville et en contact direct avec le ciel. La section décrit les trois strates du projet. À l’extrême opposé des unités voûtées se trouvent les locaux commerciaux, reliés au sol urbain. Entre les deux strates, un ensemble de petites unités, organisées par des espaces de double hauteur, donnera forme à la demande émergente des groupes de cohabitation en remplacement de la famille nucléaire et aux nouvelles formes de travail, pas encore abordées par le marché immobilier.

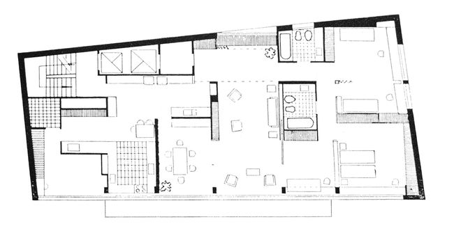
Ferrari Hardoy et Kurchan, Immeuble Los Eucaliptus, Buenos Aires, 1941

Le bloc moderne se joint au tissu de Buenos Aires sous forme de développement immobilier, stimulé dans ce cas-ci par la famille de Jorge Ferrari Hardoy. Il s’agit d’un immeuble résidentiel, comprenant restaurant, buanderie et salle de lecture au rez-de-chaussée, ainsi qu’un jardin frontal atypique. La photographie non seulement décrit l’unique façade de l’ensemble, mais elle révèle également la cristallisation d’un périple typologique : si la construction en hauteur naît en Amérique du Nord en consolidant les fronts des pâtés de maisons, pour se transférer par la suite en Europe et obtenir sa version objectifiée isolée dans la nature, l’immeuble Los Eucaliptus se présente comme la synthèse des deux traditions. Sa conception célèbrera l’arrivée du bloc moderne dans le tissu urbain, accompagné d’un fragment de nature pittoresque, implanté sans médiation à l’intérieur des limites d’une grande terrasse frontale.

Álvarez et Ruiz, Immeuble Posadas 1695,Buenos Aires, 1959. Revista Nuestra Arquitectura

Mario Roberto Álvarez et Macedonio Oscar Ruiz ont construit leurs propres habitations dans une petite tour à l’époque où ils finalisaient les œuvres du Teatro General San Martín. Une analyse de l’étage type de cet immeuble révèle que les deux projets partagent la même technique d’organisation spatiale : les aires de service se déplacent jusqu’au périmètre avec l’objectif de « corriger » la géométrie du terrain et de préparer la scène pour les espaces principaux, reliés à la façade en verre. Jusqu’à l’intérieur du nouveau périmètre, tous les éléments s’articulent de façon néoplastique.

Baudizzone, Erbin, Lestard et Varas, Immeuble Coronel Díaz 2521, Buenos Aires, 1970. Revista Summa

De façon analogue aux collectifs européens des années 60, l’Universidad de Buenos Aires sera l’agglutinant de ce groupe d’architectes axés symétriquement sur la recherche et la pratique professionnelle. Leur succès retentissant dans les concours publics leur permettra de diriger les ressources obtenues à chaque remise de prix vers le marché immobilier. C’est dans l’immeuble Coronel Díaz qu’ils dessineront leurs premières résidences. Une structure verticale concrétisera les demandes de chacun de ses auteurs, générant une grande diversité d’unités incrustées dans une structure d’ordre régulier. Une enveloppe du bâtiment, faite de mailles industrialisées peintes de couleur Yellow Submarine, contiendra les variations de chaque épisode, transformant la tension entre système et modification en stimulus plastique.

1
1

Inscrivez-vous pour recevoir de nos nouvelles

Courriel
Prénom
Nom
En vous abonnant, vous acceptez de recevoir notre infolettre et communications au sujet des activités du CCA. Vous pouvez vous désabonner en tout temps. Pour plus d’information, consultez notre politique de confidentialité ou contactez-nous.

Merci. Vous êtes maintenant abonné. Vous recevrez bientôt nos courriels.

Pour le moment, notre système n’est pas capable de mettre à jour vos préférences. Veuillez réessayer plus tard.

Vous êtes déjà inscrit avec cette adresse électronique. Si vous souhaitez vous inscrire avec une autre adresse, merci de réessayer.

Cete adresse courriel a été définitivement supprimée de notre base de données. Si vous souhaitez vous réabonner avec cette adresse courriel, veuillez contactez-nous

Veuillez, s'il vous plaît, remplir le formulaire ci-dessous pour acheter:
[Title of the book, authors]
ISBN: [ISBN of the book]
Prix [Price of book]

Prénom
Nom de famille
Adresse (ligne 1)
Adresse (ligne 2) (optionnel)
Code postal
Ville
Pays
Province / État
Courriel
Téléphone (jour) (optionnel)
Notes

Merci d'avoir passé une commande. Nous vous contacterons sous peu.

Nous ne sommes pas en mesure de traiter votre demande pour le moment. Veuillez réessayer plus tard.

Classeur ()

Votre classeur est vide.

Adresse électronique:
Sujet:
Notes:
Veuillez remplir ce formulaire pour faire une demande de consultation. Une copie de cette liste vous sera également transmise.

Vos informations
Prénom:
Nom de famille:
Adresse électronique:
Numéro de téléphone:
Notes (optionnel):
Nous vous contacterons pour convenir d’un rendez-vous. Veuillez noter que des délais pour les rendez-vous sont à prévoir selon le type de matériel que vous souhaitez consulter, soit :"
  • — au moins 2 semaines pour les sources primaires (dessins et estampes, photographies, documents d’archives, etc.)
  • — au moins 48 heures pour les sources secondaires (livres, périodiques, dossiers documentaires, etc.)
...