1
1
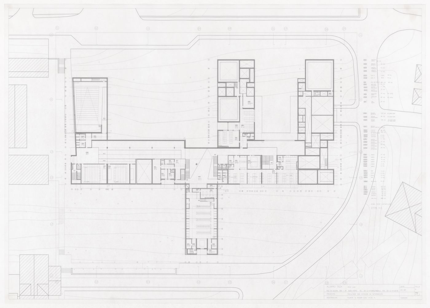
First floor plan for Faculdade de Ciências da Informação, Santiago de Compostela, Spain
First floor plan for Faculdade de Ciências da Informação, Santiago de Compostela, Spain
Inclus dans:
Personnes et institutions:
  • Álvaro Siza (archive creator)
Titre:

First floor plan for Faculdade de Ciências da Informação, Santiago de Compostela, Spain

Date:

25 January 1995

Classification:
dessins
Quantité / Type d’objet:
1 drawing(s)
Technique et médium:

Ink on translucent paper

Dimensions:

sheet: 71,1 × 102 cm (28 × 40 3/16 in.)

Numéro de référence:

ARCH292102

Mention de crédit:
Álvaro Siza fonds
Collection Centre Canadien d'Architecture/
Canadian Centre for Architecture, Montréal
Don d’Álvaro Siza/
Gift of Álvaro Siza
Droits d’auteur:

© Álvaro Siza

Numéro de chemise:

178-519-01

1
1

Inscrivez-vous pour recevoir de nos nouvelles

Courriel
Prénom
Nom
En vous abonnant, vous acceptez de recevoir notre infolettre et communications au sujet des activités du CCA. Vous pouvez vous désabonner en tout temps. Pour plus d’information, consultez notre politique de confidentialité ou contactez-nous.

Merci. Vous êtes maintenant abonné. Vous recevrez bientôt nos courriels.

Pour le moment, notre système n’est pas capable de mettre à jour vos préférences. Veuillez réessayer plus tard.

Vous êtes déjà inscrit avec cette adresse électronique. Si vous souhaitez vous inscrire avec une autre adresse, merci de réessayer.

Cete adresse courriel a été définitivement supprimée de notre base de données. Si vous souhaitez vous réabonner avec cette adresse courriel, veuillez contactez-nous

Veuillez, s'il vous plaît, remplir le formulaire ci-dessous pour acheter:
[Title of the book, authors]
ISBN: [ISBN of the book]
Prix [Price of book]

Prénom
Nom de famille
Adresse (ligne 1)
Adresse (ligne 2) (optionnel)
Code postal
Ville
Pays
Province / État
Courriel
Téléphone (jour) (optionnel)
Notes

Merci d'avoir passé une commande. Nous vous contacterons sous peu.

Nous ne sommes pas en mesure de traiter votre demande pour le moment. Veuillez réessayer plus tard.

Classeur ()

Votre classeur est vide.

Adresse électronique:
Sujet:
Notes:
Veuillez remplir ce formulaire pour faire une demande de consultation. Une copie de cette liste vous sera également transmise.

Vos informations
Prénom:
Nom de famille:
Adresse électronique:
Numéro de téléphone:
Notes (optionnel):
Nous vous contacterons pour convenir d’un rendez-vous. Veuillez noter que des délais pour les rendez-vous sont à prévoir selon le type de matériel que vous souhaitez consulter, soit :"
  • — au moins 2 semaines pour les sources primaires (dessins et estampes, photographies, documents d’archives, etc.)
  • — au moins 48 heures pour les sources secondaires (livres, périodiques, dossiers documentaires, etc.)
...