1
1

Orphelinat Catholique

Orphelinat Catholique

Inclus dans

Personnes et institutions

  • Fabrique de Notre Dame (creator)
  • Bourgeau et Leprohon (architectural firm)
  • Fabrique de Notre Dame (archive creator)

Titre

Orphelinat Catholique

Dates de création

circa 1869 and 1888

Niveau de description archivistique

Series 4

Collation

  • 4 drawings

Présentation du contenu

Series documents a project by Bourgeau et Leprohon for the Orphelinat Catholique [Catholic Orphanage] in Montréal, Québec. Material in this series was produced between 1869 and 1888.

Series contains drawings.

Numéro de réference

AP099.S4

Mode de classement

The material in this series is were likely kept in their original order by the archivist who first processed this fonds.

Localisation

Montréal Île de Montréal Québec Canada

Inventaire

  • Voir plus Fermer
    • Numéro de réference: AP099.S4.001
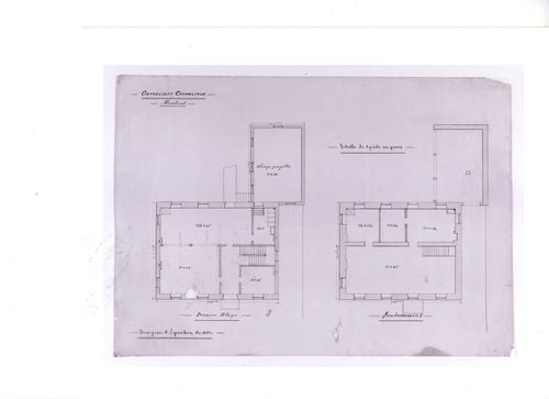
    • Titre: Plans and elevations for the Orphelinat Catholique, Montréal
    • Dates de création: 1869-1888
    • Classification: dessins
    • Objets catalogués : 4

    Personnes et institutions:

    • Bourgeau et Leprohon (draughtsman)
    • Bourgeau et Leprohon (architectural firm)
    • Fabrique de Notre Dame (archive creator)

    Quantité / Type d’objet:

    1 File

    Étape et objectif:

    • presentation drawings (proposals)

    Collation:

    • 4 drawings

    Type de dessins:

    • line drawings
    • mechanical drawings (tool-aided drawings)
    • finished drawing

    Méthode de projection:

    • plans (drawings)

    Point de vue:

    • general views
    • interior views
    • plan views

    Localisation:

    Montréal Île de Montréal Québec Canada

    Sujet:

    • architecture

    Mention de crédit:

    Fonds de la Fabrique Notre-Dame de Montréal, en dépôt au CCA/
    Fonds de la Fabrique Notre-Dame de Montréal, on deposit at the CCA

    Numéro de chemise:

    99-05-03

    Objets catalogués:

1
1

Inscrivez-vous pour recevoir de nos nouvelles

Courriel
Prénom
Nom
En vous abonnant, vous acceptez de recevoir notre infolettre et communications au sujet des activités du CCA. Vous pouvez vous désabonner en tout temps. Pour plus d’information, consultez notre politique de confidentialité ou contactez-nous.

Merci. Vous êtes maintenant abonné. Vous recevrez bientôt nos courriels.

Pour le moment, notre système n’est pas capable de mettre à jour vos préférences. Veuillez réessayer plus tard.

Vous êtes déjà inscrit avec cette adresse électronique. Si vous souhaitez vous inscrire avec une autre adresse, merci de réessayer.

Cete adresse courriel a été définitivement supprimée de notre base de données. Si vous souhaitez vous réabonner avec cette adresse courriel, veuillez contactez-nous

Veuillez, s'il vous plaît, remplir le formulaire ci-dessous pour acheter:
[Title of the book, authors]
ISBN: [ISBN of the book]
Prix [Price of book]

Prénom
Nom de famille
Adresse (ligne 1)
Adresse (ligne 2) (optionnel)
Code postal
Ville
Pays
Province / État
Courriel
Téléphone (jour) (optionnel)
Notes

Merci d'avoir passé une commande. Nous vous contacterons sous peu.

Nous ne sommes pas en mesure de traiter votre demande pour le moment. Veuillez réessayer plus tard.

Classeur ()

Votre classeur est vide.

Adresse électronique:
Sujet:
Notes:
Veuillez remplir ce formulaire pour faire une demande de consultation. Une copie de cette liste vous sera également transmise.

Vos informations
Prénom:
Nom de famille:
Adresse électronique:
Numéro de téléphone:
Notes (optionnel):
Nous vous contacterons pour convenir d’un rendez-vous. Veuillez noter que des délais pour les rendez-vous sont à prévoir selon le type de matériel que vous souhaitez consulter, soit :"
  • — au moins 2 semaines pour les sources primaires (dessins et estampes, photographies, documents d’archives, etc.)
  • — au moins 48 heures pour les sources secondaires (livres, périodiques, dossiers documentaires, etc.)
...