1
1

Casa Righi [Righi house], Milan, Italy (2002)

Casa Righi [Righi house], Milan, Italy (2002)

Part of

People

  • Umberto Riva (archive creator)

Title

Casa Righi [Righi house], Milan, Italy (2002)

Dates of creation

2002

Level of archival description

Project

Extent and Medium

  • 10 drawings

Scope and Content

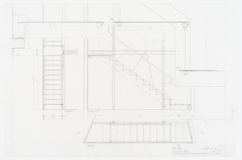
This project series documents the Casa Righi, a built three-storey private residence in Milan, Italy. Riva worked on this project from 2002-2003. The project series solely consists of three floor plans, three sections, and four details for furnishings and stairs.

Reference Number

AP180.S1.2002.PR03

Arrangement

Materials in this project series have been kept in their original order.

Archivist's note

  • A selection of drawings from this project series were shown in the exhibition "Rooms You May Have Missed: Bijoy Jain, Umberto Riva (2014)" at the Canadian Centre for Architecture.

Location

Milan Italy

Inventory

  • Actions:
    See more Close
    • Reference Number: AP180.S1.2002.PR03.001
    • Title: Floor plans, sections, and furninshings details, Casa Righi, Milan, Italy
    • Dates of creation: 2002
    • Form: drawings
    • Catalogued items within this file 10

    People:

    • Umberto Riva (archive creator)

    Quantity / Object type:

    1 File

    Extent and Medium:

    • 10 drawings

    Dimensions:

    sheet (smallest): 60 x 48 cm sheet (largest): 60 x 112 cm

    Credit line:

    When citing the collection as a whole, use the following citation:
    Umberto Riva fonds
    Collection Centre Canadien d'Architecture/
    Canadian Centre for Architecture, Montréal;
    Don de / Gift of Umberto Riva
    When citing specific collection material, please refer to the object’s specific credit line.

    Objects that have been catalogued:

1
1

Sign up to get news from us

Email address
First name
Last name
By signing up you agree to receive our newsletter and communications about CCA activities. You can unsubscribe at any time. For more information, consult our privacy policy or contact us.

Thank you for signing up. You'll begin to receive emails from us shortly.

We’re not able to update your preferences at the moment. Please try again later.

You’ve already subscribed with this email address. If you’d like to subscribe with another, please try again.

This email was permanently deleted from our database. If you’d like to resubscribe with this email, please contact us

Please complete the form below to buy:
[Title of the book, authors]
ISBN: [ISBN of the book]
Price [Price of book]

First name
Last name
Address (line 1)
Address (line 2) (optional)
Postal code
City
Country
Province/state
Email address
Phone (day) (optional)
Notes

Thank you for placing an order. We will contact you shortly.

We’re not able to process your request at the moment. Please try again later.

Folder ()

Your folder is empty.

Email:
Subject:
Notes:
Please complete this form to make a request for consultation. A copy of this list will also be forwarded to you.

Your contact information
First name:
Last name:
Email:
Phone number:
Notes (optional):
We will contact you to set up an appointment. Please keep in mind that your consultation date will be based on the type of material you wish to study. To prepare your visit, we'll need:
  • — At least 2 weeks for primary sources (prints and drawings, photographs, archival documents, etc.)
  • — At least 48 hours for secondary sources (books, periodicals, vertical files, etc.)
...