1
1

Vitra International [Vitra International factory], Weil am Rhein, Germany (1991-1994)

Vitra International [Vitra International factory], Weil am Rhein, Germany (1991-1994)

Part of

People

  • Álvaro Siza (archive creator)
  • Álvaro Siza (architect)

Title

Vitra International [Vitra International factory], Weil am Rhein, Germany (1991-1994)

Dates of creation

1991-2012

Level of archival description

Project

Extent and Medium

  • Approximately 807 drawings (including 554 reprographic copies)
  • 792 photographic materials
  • 1 model
  • 0.23 linear metres of textual records

Scope and Content

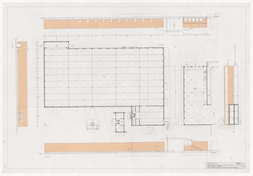
This project series documents the Vitra International project in Weil am Rhein, Germany. While the records were held in the office’s archives this project was assigned the number 18/90. The office assigned the dates 1991-1994 to this project.

The building included a factory, offices, and loading docks. The brick was chosen as a reference to the production hall that burned down in 1981 on the project site. The curved bridge roof that connected Siza's building to Nicholas Grimshaw's building was conceived to not obstruct the view of Zaha Hadid's Fire Station. Siza also designed a 500 metre promenade that passed by the Vitra building and connected the Fire Station to the VitraHaus designed by Herzog & de Meuron. The project was realized.

Documenting this project are sketches, studies, design development drawings, plans and details. Textual material includes project documentation and correspondence. Photographic materials document the project site, models, construction work and the built project. There is also a study model for this project.

Reference Number

AP178.S1.1991.PR01

Arrangement

Materials in this project series were compiled from multiple accessions. Materials within each accession were arranged by Álvaro Siza’s office and have been kept in this order.

Location

Weil am Rhein Germany

Credit line

When citing the collection as a whole, use the citation: Álvaro Siza fonds, Collection Centre Canadien d’Architecture/Canadian Centre for Architecture, Montréal. When citing specific collection material, please refer to the object’s specific credit line.

Language of material

German, Portuguese, English

Related units of description

  • Sketches for the Vitra International are also included in Siza's sketchbooks found in Series AP178.S2 of this fonds. Of note is sketchbook 320. The CCA also holds materials for the Fonte para Vitra International (see project series AP178.S1.1994.PR04 in this fonds).

Inventory

Sort by: 

  • Actions:
    See more Close
    • Reference Number: AP178.S1.1991.PR01.001.1
    • Title: Original plans and design development drawings, Vitra International, Weil am Rhein, Germany (folder 1 of 3)
    • Dates of creation: 1991-1994
    • Form: drawings
    • Catalogued items within this file 0

    People:

    • Álvaro Siza (archive creator)

    Description:

    Original file title: Vitra desenhos

    Quantity / Object type:

    1 File

    Extent and Medium:

    • 24 ink and pencil drawings on translucent paper, 1 reprographic copy on paper

    Dimensions:

    Sheet (largest): 45 x 55 cm Sheet (smallest): 30 x 42 cm

    Credit line:

    Álvaro Siza fonds
    Collection Centre Canadien d'Architecture/
    Canadian Centre for Architecture, Montréal
    Don d’Álvaro Siza/
    Gift of Álvaro Siza

    Folder Number:

    178-538-04

  • Actions:
    See more Close
    • Reference Number: AP178.S1.1991.PR01.001.2
    • Title: Original plans and design development drawings, Vitra International, Weil am Rhein, Germany (folder 2 of 3)
    • Dates of creation: 1991-1994
    • Form: drawings
    • Catalogued items within this file 2

    People:

    • Álvaro Siza (archive creator)
    • Álvaro Siza (architect)

    Description:

    Original file title: Vitra desenhos

    Quantity / Object type:

    1 File

    Extent and Medium:

    • 8 ink and pencil drawings on translucent paper

    Dimensions:

    Sheet (largest): 78 x 98 cm Sheet (smallest): 73 x 80 cm

    Credit line:

    Álvaro Siza fonds
    Collection Centre Canadien d'Architecture/
    Canadian Centre for Architecture, Montréal
    Don d’Álvaro Siza/
    Gift of Álvaro Siza

    Folder Number:

    178-566-05

    Objects that have been catalogued:

  • Actions:
    See more Close
    • Reference Number: AP178.S1.1991.PR01.001.3
    • Title: Original plans and design development drawings, Vitra International, Weil am Rhein, Germany (folder 3 of 3)
    • Dates of creation: 1991-1994
    • Form: drawings
    • Catalogued items within this file 0

    People:

    • Álvaro Siza (archive creator)
    • Álvaro Siza (architect)

    Description:

    Original file title: Vitra desenhos

    Quantity / Object type:

    1 File

    Extent and Medium:

    • 1 pencil drawing on translucent paper

    Dimensions:

    Sheet: 75 x 143 cm

    Credit line:

    Álvaro Siza fonds
    Collection Centre Canadien d'Architecture/
    Canadian Centre for Architecture, Montréal
    Don d’Álvaro Siza/
    Gift of Álvaro Siza

    Folder Number:

    178-566-06

  • Actions:
    See more Close
    • Reference Number: AP178.S1.1991.PR01.002.1
    • Title: Original plans and design development drawings, Vitra International, Weil am Rhein, Germany (folder 1 of 2)
    • Dates of creation: 1991-1994
    • Form: drawings
    • Catalogued items within this file 7

    People:

    • Álvaro Siza (archive creator)
    • Álvaro Siza (architect)

    Description:

    Original file title: Vitra International Desenhos 1

    Quantity / Object type:

    1 File

    Extent and Medium:

    • 17 ink drawings on translucent paper

    Dimensions:

    Sheet (largest): 90 x 110 cm Sheet (smallest): 43 x 60 cm

    Credit line:

    Álvaro Siza fonds
    Collection Centre Canadien d'Architecture/
    Canadian Centre for Architecture, Montréal
    Don d’Álvaro Siza/
    Gift of Álvaro Siza

    Folder Number:

    178-566-04

    Objects that have been catalogued:

  • Actions:
    See more Close
    • Reference Number: AP178.S1.1991.PR01.002.2
    • Title: Original plans and design development drawings, Vitra International, Weil am Rhein, Germany (folder 2 of 2)
    • Dates of creation: 1991-1994
    • Form: drawings
    • Catalogued items within this file 0

    People:

    • Álvaro Siza (archive creator)
    • Álvaro Siza (architect)

    Description:

    Original file title: Vitra International Desenhos 1

    Quantity / Object type:

    1 File

    Extent and Medium:

    • 6 ink drawings on translucent paper

    Dimensions:

    Sheet (largest): 87 x 132 cm Sheet (smallest): 87 x 126 cm

    Credit line:

    Álvaro Siza fonds
    Collection Centre Canadien d'Architecture/
    Canadian Centre for Architecture, Montréal
    Don d’Álvaro Siza/
    Gift of Álvaro Siza

    Folder Number:

    178-566-04

  • Actions:
    See more Close
    • Reference Number: AP178.S1.1991.PR01.003
    • Title: Plans and details, Vitra International, Weil am Rhein, Germany
    • Dates of creation: 1991-1994
    • Form: drawings
    • Catalogued items within this file 0

    People:

    • Álvaro Siza (archive creator)
    • Álvaro Siza (architect)

    Description:

    Original file title: Vitra Copias

    Quantity / Object type:

    1 File

    Extent and Medium:

    • 10 reprographic copies on paper

    Dimensions:

    Sheet (largest): 85 x 132 cm Sheet (smallest): 60 x 90 cm

    Credit line:

    Álvaro Siza fonds
    Collection Centre Canadien d'Architecture/
    Canadian Centre for Architecture, Montréal
    Don d’Álvaro Siza/
    Gift of Álvaro Siza

  • Actions:
    See more Close
    • Reference Number: AP178.S1.1991.PR01.004
    • Title: Sketches and studies, Vitra International, Weil am Rhein, Germany
    • Dates of creation: 1991-1994
    • Form: drawings
    • Catalogued items within this file 5

    People:

    • Álvaro Siza (archive creator)
    • Álvaro Siza (architect)

    Description:

    Original file title: Vitra international - A4 e A3 - Orig. e fotoc. Para Ver.

    Quantity / Object type:

    1 File

    Extent and Medium:

    • 43 ink and pencil drawings on paper

    Dimensions:

    Sheet (largest): 30 x 42 cm Sheet (smallest): 8 x 12 cm

    Credit line:

    Álvaro Siza fonds
    Collection Centre Canadien d'Architecture/
    Canadian Centre for Architecture, Montréal
    Don d’Álvaro Siza/
    Gift of Álvaro Siza

    Folder Number:

    178-571-07

    Objects that have been catalogued:

      • ARCH292429
      • Sketch perspectives for Vitra International, Weil am Rhein, Germany; verso description of unidentified project
      • Form: drawings
      • Add to folder
      • ARCH292430
      • Sketch interior and exterior perspectives for Vitra International, Weil am Rhein, Germany
      • Form: drawings
      • Add to folder
      • ARCH292431
      • Sketch details and perspectives of doors and windows for Vitra International, Weil am Rhein, Germany; verso: Sketch details for Vitra International, Weil am Rhein, Germany
      • Form: drawings
      • Add to folder
  • Actions:
    See more Close
    • Reference Number: AP178.S1.1991.PR01.005
    • Title: Study, Vitra International, Weil am Rhein, Germany
    • Dates of creation: 1991-1994
    • Form: drawings
    • Catalogued items within this file 0

    People:

    • Álvaro Siza (archive creator)
    • Álvaro Siza (architect)

    Description:

    Original file title: Vitra 1 estudo Arq. Siza

    Quantity / Object type:

    1 File

    Extent and Medium:

    • 1 pencil drawing on paper

    Dimensions:

    Sheet: 21 x 75 cm

    Credit line:

    Álvaro Siza fonds
    Collection Centre Canadien d'Architecture/
    Canadian Centre for Architecture, Montréal
    Don d’Álvaro Siza/
    Gift of Álvaro Siza

    Folder Number:

    178-559-03

  • Actions:
    See more Close
    • Reference Number: AP178.S1.1991.PR01.006.1
    • Title: Design development drawings and details, Vitra International, Weil am Rhein, Germany (folder 1 of 3)
    • Dates of creation: 1991-1994
    • Form: drawings
    • Catalogued items within this file 0

    People:

    • Álvaro Siza (archive creator)
    • Álvaro Siza (architect)

    Description:

    Original file title: Vitra fabrica

    Quantity / Object type:

    1 File

    Extent and Medium:

    • 50 pencil drawings on paper

    Dimensions:

    Sheet: 30 x 42 cm

    Credit line:

    Álvaro Siza fonds
    Collection Centre Canadien d'Architecture/
    Canadian Centre for Architecture, Montréal
    Don d’Álvaro Siza/
    Gift of Álvaro Siza

    Folder Number:

    178-571-01

  • Actions:
    See more Close
    • Reference Number: AP178.S1.1991.PR01.006.2
    • Title: Design development drawings and details, Vitra International, Weil am Rhein, Germany (folder 2 of 3)
    • Dates of creation: 1991-1994
    • Form: drawings
    • Catalogued items within this file 0

    People:

    • Álvaro Siza (archive creator)
    • Álvaro Siza (architect)

    Description:

    Original file title: Vitra fabrica

    Quantity / Object type:

    1 File

    Extent and Medium:

    • 55 pencil drawings on paper

    Dimensions:

    Sheet: 30 x 42 cm

    Credit line:

    Álvaro Siza fonds
    Collection Centre Canadien d'Architecture/
    Canadian Centre for Architecture, Montréal
    Don d’Álvaro Siza/
    Gift of Álvaro Siza

    Folder Number:

    178-571-02

  • Actions:
    See more Close
    • Reference Number: AP178.S1.1991.PR01.006.3
    • Title: Design development drawings and details, Vitra International, Weil am Rhein, Germany (folder 3 of 3)
    • Dates of creation: 1991-1994
    • Form: drawings
    • Catalogued items within this file 0

    People:

    • Álvaro Siza (archive creator)
    • Álvaro Siza (architect)

    Description:

    Original file title: Vitra fabrica

    Quantity / Object type:

    1 File

    Extent and Medium:

    • 38 reprographic copies on paper

    Dimensions:

    Sheet (largest): 30 x 42 cm Sheet (smallest): 21 x 30 cm

    Credit line:

    Álvaro Siza fonds
    Collection Centre Canadien d'Architecture/
    Canadian Centre for Architecture, Montréal
    Don d’Álvaro Siza/
    Gift of Álvaro Siza

    Folder Number:

    178-571-03

  • Actions:
    See more Close
    • Reference Number: AP178.S1.1991.PR01.007
    • Title: Design development drawings, details, and cadastral maps, Vitra International, Weil am Rhein, Germany
    • Dates of creation: 1991-1994
    • Form: drawings
    • Catalogued items within this file 0

    People:

    • Álvaro Siza (archive creator)
    • Álvaro Siza (architect)

    Description:

    Original file title: Vitra fotocopias, OVNI

    Quantity / Object type:

    1 File

    Extent and Medium:

    • 33 reprographic copies on paper, 2 pencil drawings on paper

    Dimensions:

    Sheet: 30 x 42 cm

    Credit line:

    Álvaro Siza fonds
    Collection Centre Canadien d'Architecture/
    Canadian Centre for Architecture, Montréal
    Don d’Álvaro Siza/
    Gift of Álvaro Siza

    Folder Number:

    178-571-04

  • Actions:
    See more Close
    • Reference Number: AP178.S1.1991.PR01.008
    • Title: Design development drawing and details, Vitra International, Weil am Rhein, Germany
    • Dates of creation: 1991-1994
    • Form: drawings
    • Catalogued items within this file 0

    People:

    • Álvaro Siza (archive creator)
    • Álvaro Siza (architect)

    Description:

    Original file title: Vitra copias - fotograficas aerias-esquissos do Siza

    This file also includes aerial photographs.

    Quantity / Object type:

    1 File

    Extent and Medium:

    • 36 reprographic copies on paper, 27 pencil drawings on paper

    Dimensions:

    Sheet: 30 x 42 cm

    Credit line:

    Álvaro Siza fonds
    Collection Centre Canadien d'Architecture/
    Canadian Centre for Architecture, Montréal
    Don d’Álvaro Siza/
    Gift of Álvaro Siza

    Folder Number:

    178-571-05

  • Actions:
    See more Close
    • Reference Number: AP178.S1.1991.PR01.009.1
    • Title: Plans, details, and catalogs from Vitra, Vitra International, Weil am Rhein, Germany (folder 1 of 2)
    • Dates of creation: 1992-1993
    • Form: drawings
    • Catalogued items within this file 0

    People:

    • Álvaro Siza (archive creator)

    Description:

    Original file title: Vitra drawings Siza I

    This file includes floor plans and windows details.

    Quantity / Object type:

    1 File

    Extent and Medium:

    • 21 reprographic copies on paper

    Dimensions:

    Sheet: 21 x 30 cm

    Credit line:

    Álvaro Siza fonds
    Collection Centre Canadien d'Architecture/
    Canadian Centre for Architecture, Montréal
    Don d’Álvaro Siza/
    Gift of Álvaro Siza

    Folder Number:

    178-118-07

  • Actions:
    See more Close
    • Reference Number: AP178.S1.1991.PR01.009.2
    • Title: Plans, details, and catalogs from Vitra, Vitra International, Weil am Rhein, Germany (folder 2 of 2)
    • Dates of creation: 1992-1993
    • Form: drawings, textual records
    • Catalogued items within this file 0

    People:

    • Álvaro Siza (archive creator)

    Description:

    Original file title: Vitra drawings Siza I

    Quantity / Object type:

    1 File

    Extent and Medium:

    • 2 reprographic copies on paper, other materials

    Dimensions:

    Sheet: 21 x 30 cm

    Credit line:

    Álvaro Siza fonds
    Collection Centre Canadien d'Architecture/
    Canadian Centre for Architecture, Montréal
    Don d’Álvaro Siza/
    Gift of Álvaro Siza

    Folder Number:

    178-118-08

  • Actions:
    See more Close
    • Reference Number: AP178.S1.1991.PR01.010.1
    • Title: Plans and details, Vitra International, Weil am Rhein, Germany (folder 1 of 3)
    • Dates of creation: 1994
    • Form: drawings
    • Catalogued items within this file 0

    People:

    • Álvaro Siza (archive creator)

    Description:

    Original file title: Vitra drawings GPF IV

    Quantity / Object type:

    1 File

    Extent and Medium:

    • Approximately 38 reprographic copies on paper

    Dimensions:

    Sheet: 21 x 30 cm

    Credit line:

    Álvaro Siza fonds
    Collection Centre Canadien d'Architecture/
    Canadian Centre for Architecture, Montréal
    Don d’Álvaro Siza/
    Gift of Álvaro Siza

    Folder Number:

    178-118-09

  • Actions:
    See more Close
    • Reference Number: AP178.S1.1991.PR01.010.2
    • Title: Plans and details, Vitra International, Weil am Rhein, Germany (folder 2 of 3)
    • Dates of creation: 1994
    • Form: drawings
    • Catalogued items within this file 0

    People:

    • Álvaro Siza (archive creator)

    Description:

    Original file title: Vitra drawings GPF IV

    Quantity / Object type:

    1 File

    Extent and Medium:

    • 22 reprographic copies on paper

    Dimensions:

    Sheet: 21 x 30 cm

    Credit line:

    Álvaro Siza fonds
    Collection Centre Canadien d'Architecture/
    Canadian Centre for Architecture, Montréal
    Don d’Álvaro Siza/
    Gift of Álvaro Siza

    Folder Number:

    178-118-10

  • Actions:
    See more Close
    • Reference Number: AP178.S1.1991.PR01.010.3
    • Title: Plans and details, Vitra International, Weil am Rhein, Germany (folder 3 of 3)
    • Dates of creation: 1994
    • Form: drawings
    • Catalogued items within this file 0

    People:

    • Álvaro Siza (archive creator)

    Description:

    Original file title: Vitra drawings GPF IV

    Quantity / Object type:

    1 File

    Extent and Medium:

    • 19 reprographic copies on paper

    Dimensions:

    Sheet: 21 x 30 cm

    Credit line:

    Álvaro Siza fonds
    Collection Centre Canadien d'Architecture/
    Canadian Centre for Architecture, Montréal
    Don d’Álvaro Siza/
    Gift of Álvaro Siza

    Folder Number:

    178-118-11

  • Actions:
    See more Close
    • Reference Number: AP178.S1.1991.PR01.011
    • Title: Design development drawings, project documentation, and correspondence , Vitra International, Weil am Rhein, Germany
    • Dates of creation: 1991-1994
    • Form: drawings, textual records
    • Catalogued items within this file 2

    People:

    • Álvaro Siza (archive creator)

    Description:

    Original file title: Vitra sketch designs

    This file also includes documentation about the budget.

    Quantity / Object type:

    1 File

    Extent and Medium:

    • 15 reprographic copies on paper, 4 pencil drawings on paper, other materials

    Dimensions:

    Sheet (largest): 30 x 42 cm Sheet (smallest): 21 x 30 cm

    Credit line:

    Álvaro Siza fonds
    Collection Centre Canadien d'Architecture/
    Canadian Centre for Architecture, Montréal
    Don d’Álvaro Siza/
    Gift of Álvaro Siza

    Folder Number:

    178-565-06

    Objects that have been catalogued:

  • Actions:
    See more Close
    • Reference Number: AP178.S1.1991.PR01.012
    • Title: Box of drawings, Vitra International, Weil am Rhein, Germany
    • Dates of creation: 1991-1993
    • Form: drawings
    • Catalogued items within this file 0

    People:

    • Álvaro Siza (archive creator)

    Description:

    Original file title:

    This file includes project site drawings, plans of the existing building, working drawings, and details.

    Quantity / Object type:

    1 File

    Extent and Medium:

    • Approximately 145 reprographic copies on paper

    Dimensions:

    Sheet: 21 x 30 cm

    Credit line:

    Álvaro Siza fonds
    Collection Centre Canadien d'Architecture/
    Canadian Centre for Architecture, Montréal
    Don d’Álvaro Siza/
    Gift of Álvaro Siza

  • Actions:
    See more Close
    • Reference Number: AP178.S1.1991.PR01.013.1
    • Title: Structural drawings and details, Vitra International, Weil am Rhein, Germany (folder 1 of 3)
    • Dates of creation: 1993
    • Form: drawings
    • Catalogued items within this file 0

    People:

    • Álvaro Siza (archive creator)

    Description:

    Original file title: Vitra drawings LANG II

    Quantity / Object type:

    1 File

    Extent and Medium:

    • 6 reprographic copies on paper

    Dimensions:

    Sheet: 21 x 30 cm

    Credit line:

    Álvaro Siza fonds
    Collection Centre Canadien d'Architecture/
    Canadian Centre for Architecture, Montréal
    Don d’Álvaro Siza/
    Gift of Álvaro Siza

    Folder Number:

    178-118-01

  • Actions:
    See more Close
    • Reference Number: AP178.S1.1991.PR01.013.2
    • Title: Structural drawings and details, Vitra International, Weil am Rhein, Germany (folder 2 of 3)
    • Dates of creation: 1993
    • Form: drawings
    • Catalogued items within this file 0

    People:

    • Álvaro Siza (archive creator)

    Description:

    Original file title: Vitra drawings LANG II

    Quantity / Object type:

    1 File

    Extent and Medium:

    • 5 reprographic copies on paper

    Dimensions:

    Sheet: 21 x 30 cm

    Credit line:

    Álvaro Siza fonds
    Collection Centre Canadien d'Architecture/
    Canadian Centre for Architecture, Montréal
    Don d’Álvaro Siza/
    Gift of Álvaro Siza

    Folder Number:

    178-118-02

  • Actions:
    See more Close
    • Reference Number: AP178.S1.1991.PR01.013.3
    • Title: Structural drawings and details, Vitra International, Weil am Rhein, Germany (folder 3 of 3)
    • Dates of creation: 1993
    • Form: drawings
    • Catalogued items within this file 0

    People:

    • Álvaro Siza (archive creator)

    Description:

    Original file title: Vitra drawings LANG II

    Quantity / Object type:

    1 File

    Extent and Medium:

    • 2 reprographic copies on paper

    Dimensions:

    Sheet: 21 x 30 cm

    Credit line:

    Álvaro Siza fonds
    Collection Centre Canadien d'Architecture/
    Canadian Centre for Architecture, Montréal
    Don d’Álvaro Siza/
    Gift of Álvaro Siza

    Folder Number:

    178-118-03

  • Actions:
    See more Close
    • Reference Number: AP178.S1.1991.PR01.014.1
    • Title: Plans and details, Vitra International, Weil am Rhein, Germany (folder 1 of 3)
    • Dates of creation: 1991
    • Form: drawings
    • Catalogued items within this file 0

    People:

    • Álvaro Siza (archive creator)

    Description:

    Original file title: Vitra project I

    Quantity / Object type:

    1 File

    Extent and Medium:

    • 6 reprographic copies on paper

    Dimensions:

    Sheet: 21 x 30 cm

    Credit line:

    Álvaro Siza fonds
    Collection Centre Canadien d'Architecture/
    Canadian Centre for Architecture, Montréal
    Don d’Álvaro Siza/
    Gift of Álvaro Siza

    Folder Number:

    178-116-10

  • Actions:
    See more Close
    • Reference Number: AP178.S1.1991.PR01.014.2
    • Title: Plans and details, Vitra International, Weil am Rhein, Germany (folder 2 of 3)
    • Dates of creation: 1991
    • Form: drawings
    • Catalogued items within this file 0

    People:

    • Álvaro Siza (archive creator)

    Description:

    Original file title: Vitra project I

    Quantity / Object type:

    1 File

    Extent and Medium:

    • 14 reprographic copies on paper

    Dimensions:

    Sheet: 21 x 30 cm

    Credit line:

    Álvaro Siza fonds
    Collection Centre Canadien d'Architecture/
    Canadian Centre for Architecture, Montréal
    Don d’Álvaro Siza/
    Gift of Álvaro Siza

    Folder Number:

    178-116-11

  • Actions:
    See more Close
    • Reference Number: AP178.S1.1991.PR01.014.3
    • Title: Plans and details, Vitra International, Weil am Rhein, Germany (folder 3 of 3)
    • Dates of creation: 1991
    • Form: drawings
    • Catalogued items within this file 0

    People:

    • Álvaro Siza (archive creator)

    Description:

    Original file title: Vitra project I

    Reprographic copies feature annotations.

    Quantity / Object type:

    1 File

    Extent and Medium:

    • 8 reprographic copies on paper

    Dimensions:

    Sheet: 21 x 30 cm

    Credit line:

    Álvaro Siza fonds
    Collection Centre Canadien d'Architecture/
    Canadian Centre for Architecture, Montréal
    Don d’Álvaro Siza/
    Gift of Álvaro Siza

    Folder Number:

    178-116-12

  • Actions:
    See more Close
    • Reference Number: AP178.S1.1991.PR01.015.1
    • Title: Plans and details, Vitra International, Weil am Rhein, Germany (folder 1 of 3)
    • Dates of creation: 1991
    • Form: drawings
    • Catalogued items within this file 0

    People:

    • Álvaro Siza (archive creator)

    Description:

    Original file title: Vitra drawings GPFI

    This file includes drawings and documentation for the dock doors.

    Quantity / Object type:

    1 File

    Extent and Medium:

    • 6 reprographic copies on paper, other materials

    Dimensions:

    Sheet: 21 x 30 cm

    Credit line:

    Álvaro Siza fonds
    Collection Centre Canadien d'Architecture/
    Canadian Centre for Architecture, Montréal
    Don d’Álvaro Siza/
    Gift of Álvaro Siza

    Folder Number:

    178-116-13

  • Actions:
    See more Close
    • Reference Number: AP178.S1.1991.PR01.015.2
    • Title: Plans and details, Vitra International, Weil am Rhein, Germany (folder 2 of 3)
    • Dates of creation: 1991
    • Form: drawings
    • Catalogued items within this file 0

    People:

    • Álvaro Siza (archive creator)

    Description:

    Original file title: Vitra drawings GPFI

    Quantity / Object type:

    1 File

    Extent and Medium:

    • 4 reprographic copies on paper

    Dimensions:

    Sheet: 21 x 30 cm

    Credit line:

    Álvaro Siza fonds
    Collection Centre Canadien d'Architecture/
    Canadian Centre for Architecture, Montréal
    Don d’Álvaro Siza/
    Gift of Álvaro Siza

    Folder Number:

    178-116-14

  • Actions:
    See more Close
    • Reference Number: AP178.S1.1991.PR01.015.3
    • Title: Plans and details, Vitra International, Weil am Rhein, Germany (folder 3 of 3)
    • Dates of creation: 1991
    • Form: drawings
    • Catalogued items within this file 0

    People:

    • Álvaro Siza (archive creator)

    Description:

    Original file title: Vitra drawings GPFI

    Quantity / Object type:

    1 File

    Extent and Medium:

    • 4 reprographic copies on paper

    Dimensions:

    Sheet: 21 x 30 cm

    Credit line:

    Álvaro Siza fonds
    Collection Centre Canadien d'Architecture/
    Canadian Centre for Architecture, Montréal
    Don d’Álvaro Siza/
    Gift of Álvaro Siza

    Folder Number:

    178-116-15

  • Actions:
    See more Close
    • Reference Number: AP178.S1.1991.PR01.016.1
    • Title: Plans and details, Vitra International, Weil am Rhein, Germany (folder 1 of 2)
    • Dates of creation: 1992
    • Form: drawings
    • Catalogued items within this file 0

    People:

    • Álvaro Siza (archive creator)

    Description:

    Original file title: Vitra

    Quantity / Object type:

    1 File

    Extent and Medium:

    • 5 reprographic copies on paper

    Dimensions:

    Sheet: 21 x 30 cm

    Credit line:

    Álvaro Siza fonds
    Collection Centre Canadien d'Architecture/
    Canadian Centre for Architecture, Montréal
    Don d’Álvaro Siza/
    Gift of Álvaro Siza

    Folder Number:

    178-115-13

  • Actions:
    See more Close
    • Reference Number: AP178.S1.1991.PR01.016.2
    • Title: Plans and details, Vitra International, Weil am Rhein, Germany (folder 2 of 2)
    • Dates of creation: 1992
    • Form: drawings
    • Catalogued items within this file 0

    People:

    • Álvaro Siza (archive creator)

    Description:

    Original file title: Vitra

    This file also includes sketches. Reprographic copies feature annotations.

    Quantity / Object type:

    1 File

    Extent and Medium:

    • 14 reprographic copies on paper, other materials

    Dimensions:

    Sheet: 21 x 30 cm

    Credit line:

    Álvaro Siza fonds
    Collection Centre Canadien d'Architecture/
    Canadian Centre for Architecture, Montréal
    Don d’Álvaro Siza/
    Gift of Álvaro Siza

    Folder Number:

    178-115-14

  • Actions:
    See more Close
    • Reference Number: AP178.S1.1991.PR01.017
    • Title: Plans and details, Vitra International, Weil am Rhein, Germany
    • Dates of creation: 1993
    • Form: drawings
    • Catalogued items within this file 0

    People:

    • Álvaro Siza (archive creator)

    Description:

    Original file title: Vitra

    Quantity / Object type:

    1 File

    Extent and Medium:

    • 19 reprographic copies on paper

    Dimensions:

    Sheet: 21 x 30 cm

    Credit line:

    Álvaro Siza fonds
    Collection Centre Canadien d'Architecture/
    Canadian Centre for Architecture, Montréal
    Don d’Álvaro Siza/
    Gift of Álvaro Siza

    Folder Number:

    178-115-15

  • Actions:
    See more Close
    • Reference Number: AP178.S1.1991.PR01.018.1
    • Title: Details for the doors, Vitra International, Weil am Rhein, Germany (folder 1 of 3)
    • Dates of creation: 2000
    • Form: drawings
    • Catalogued items within this file 0

    People:

    • Álvaro Siza (archive creator)

    Description:

    Original file title: Vitra Portas Novas

    Quantity / Object type:

    1 File

    Extent and Medium:

    • 18 reprographic copies on paper

    Dimensions:

    Sheet: 21 x 30 cm

    Credit line:

    Álvaro Siza fonds
    Collection Centre Canadien d'Architecture/
    Canadian Centre for Architecture, Montréal
    Don d’Álvaro Siza/
    Gift of Álvaro Siza

    Folder Number:

    178-116-01

  • Actions:
    See more Close
    • Reference Number: AP178.S1.1991.PR01.018.2
    • Title: Details for the doors, Vitra International, Weil am Rhein, Germany (folder 2 of 3)
    • Dates of creation: 2000
    • Form: drawings
    • Catalogued items within this file 0

    People:

    • Álvaro Siza (archive creator)

    Description:

    Original file title: Vitra Portas Novas

    Quantity / Object type:

    1 File

    Extent and Medium:

    • 13 reprographic copies on paper

    Dimensions:

    Sheet: 21 x 30 cm

    Credit line:

    Álvaro Siza fonds
    Collection Centre Canadien d'Architecture/
    Canadian Centre for Architecture, Montréal
    Don d’Álvaro Siza/
    Gift of Álvaro Siza

    Folder Number:

    178-116-02

  • Actions:
    See more Close
    • Reference Number: AP178.S1.1991.PR01.018.3
    • Title: Details for the doors, Vitra International, Weil am Rhein, Germany (folder 3 of 3)
    • Dates of creation: 2000
    • Form: drawings
    • Catalogued items within this file 0

    People:

    • Álvaro Siza (archive creator)

    Description:

    Original file title: Vitra Portas Novas

    Quantity / Object type:

    1 File

    Extent and Medium:

    • 11 reprographic copies on paper

    Dimensions:

    Sheet: 21 x 30 cm

    Credit line:

    Álvaro Siza fonds
    Collection Centre Canadien d'Architecture/
    Canadian Centre for Architecture, Montréal
    Don d’Álvaro Siza/
    Gift of Álvaro Siza

    Folder Number:

    178-116-03

  • Actions:
    See more Close
    • Reference Number: AP178.S1.1991.PR01.019
    • Title: Photographs and negatives of models, Vitra International, Weil am Rhein, Germany
    • Dates of creation: April 2012
    • Form: photographs
    • Catalogued items within this file 1

    People:

    • Álvaro Siza (archive creator)

    Description:

    Original file title: Vitra international Weil Am Rhein © Teresa Siza

    Siza's office numbered photographs in this file VIFME001-VIFME014

    Quantity / Object type:

    1 File

    Extent and Medium:

    • 7 photographs, 7 35mm negative strips

    Credit line:

    Álvaro Siza fonds
    Collection Centre Canadien d'Architecture/
    Canadian Centre for Architecture, Montréal
    Don d’Álvaro Siza/
    Gift of Álvaro Siza

    Folder Number:

    178-607-04

    Objects that have been catalogued:

  • Actions:
    See more Close
    • Reference Number: AP178.S1.1991.PR01.020
    • Title: Photographs and negatives of models, Vitra International, Weil am Rhein, Germany
    • Dates of creation: April 2012
    • Form: photographs
    • Catalogued items within this file 0

    People:

    • Álvaro Siza (archive creator)

    Description:

    Original file title: Vitra international Weil Am Rhein © Teresa Siza

    Nota: 1 As provas estavam no escritorio. 2- Os negativos foram entregen em April 2012

    Siza's office numbered photographs in this file VIFME021-VIFME034

    Quantity / Object type:

    1 File

    Extent and Medium:

    • 35 photographs, 12 35mm negative strips

    Credit line:

    Álvaro Siza fonds
    Collection Centre Canadien d'Architecture/
    Canadian Centre for Architecture, Montréal
    Don d’Álvaro Siza/
    Gift of Álvaro Siza

    Folder Number:

    178-607-05

  • Actions:
    See more Close
    • Reference Number: AP178.S1.1991.PR01.021
    • Title: Photographs of models, Vitra International, Weil am Rhein, Germany
    • Dates of creation: 1991-1994
    • Form: photographs
    • Catalogued items within this file 0

    People:

    • Álvaro Siza (archive creator)

    Description:

    Original file title: Vitra international - Vitra

    Siza's office numbered photographs in this file VIFME035-VIFME036

    Quantity / Object type:

    1 File

    Extent and Medium:

    • 2 photographs

    Credit line:

    Álvaro Siza fonds
    Collection Centre Canadien d'Architecture/
    Canadian Centre for Architecture, Montréal
    Don d’Álvaro Siza/
    Gift of Álvaro Siza

    Folder Number:

    178-607-06

  • Actions:
    See more Close
    • Reference Number: AP178.S1.1991.PR01.022
    • Title: Photographs of models, Vitra International, Weil am Rhein, Germany
    • Dates of creation: 1991-1994
    • Form: photographs
    • Catalogued items within this file 0

    People:

    • Álvaro Siza (archive creator)

    Description:

    Original file title: Vitra international - Vitra

    Siza's office numbered photographs in this file VIFME035-VIFME036

    Quantity / Object type:

    1 File

    Extent and Medium:

    • 2 photographs

    Credit line:

    Álvaro Siza fonds
    Collection Centre Canadien d'Architecture/
    Canadian Centre for Architecture, Montréal
    Don d’Álvaro Siza/
    Gift of Álvaro Siza

    Folder Number:

    178-607-07

  • Actions:
    See more Close
    • Reference Number: AP178.S1.1991.PR01.023
    • Title: Negatives of models and a photograph of a drawing, Vitra International, Weil am Rhein, Germany
    • Dates of creation: 1991-1994
    • Form: photographs
    • Catalogued items within this file 0

    People:

    • Álvaro Siza (archive creator)

    Description:

    Original file title: Vitra international - Vitra

    Nota: ver slides

    Siza's office numbered negatives in this file VIFME037-VIFME038

    Quantity / Object type:

    1 File

    Extent and Medium:

    • 2 negatives, 1 photograph

    Credit line:

    Álvaro Siza fonds
    Collection Centre Canadien d'Architecture/
    Canadian Centre for Architecture, Montréal
    Don d’Álvaro Siza/
    Gift of Álvaro Siza

    Folder Number:

    178-608-01

  • Actions:
    See more Close
    • Reference Number: AP178.S1.1991.PR01.024
    • Title: Negatives of models, Vitra International, Weil am Rhein, Germany
    • Dates of creation: April 2012
    • Form: photographs
    • Catalogued items within this file 1

    People:

    • Álvaro Siza (archive creator)

    Description:

    Original file title: Vitra international Weil Am Rhein © Teresa Siza - April 2012

    Siza's office numbered negatives in this file VIFME063-VIFME076

    Quantity / Object type:

    1 File

    Extent and Medium:

    • 9 35mm negative strips

    Credit line:

    Álvaro Siza fonds
    Collection Centre Canadien d'Architecture/
    Canadian Centre for Architecture, Montréal
    Don d’Álvaro Siza/
    Gift of Álvaro Siza

    Folder Number:

    178-608-02

    Objects that have been catalogued:

  • Actions:
    See more Close
    • Reference Number: AP178.S1.1991.PR01.025
    • Title: Photographs of construction work, Vitra International, Weil am Rhein, Germany
    • Dates of creation: 1991-1994
    • Form: photographs
    • Catalogued items within this file 0

    People:

    • Álvaro Siza (archive creator)

    Description:

    Original file title: Vitra international - Vitra

    Nota: ver slides

    Siza's office numbered negatives in this file VIFME084-VIFME114

    Quantity / Object type:

    1 File

    Extent and Medium:

    • 37 photographs

    Credit line:

    Álvaro Siza fonds
    Collection Centre Canadien d'Architecture/
    Canadian Centre for Architecture, Montréal
    Don d’Álvaro Siza/
    Gift of Álvaro Siza

    Folder Number:

    178-608-03

  • Actions:
    See more Close
    • Reference Number: AP178.S1.1991.PR01.026
    • Title: Photographs of construction work, Vitra International, Weil am Rhein, Germany
    • Dates of creation: 1991-1994
    • Form: photographs
    • Catalogued items within this file 0

    People:

    • Álvaro Siza (archive creator)

    Description:

    Original file title: Vitra international - Vitra

    Nota: ver slides

    Siza's office numbered negatives in this file VIFME115-VIFME120

    Quantity / Object type:

    1 File

    Extent and Medium:

    • 6 photographs

    Credit line:

    Álvaro Siza fonds
    Collection Centre Canadien d'Architecture/
    Canadian Centre for Architecture, Montréal
    Don d’Álvaro Siza/
    Gift of Álvaro Siza

    Folder Number:

    178-608-04

  • Actions:
    See more Close
    • Reference Number: AP178.S1.1991.PR01.027
    • Title: Negatives of built project and an article from Cultura, Vitra International, Weil am Rhein, Germany
    • Dates of creation: 1991-1994
    • Form: photographs
    • Catalogued items within this file 5

    People:

    • Álvaro Siza (archive creator)

    Description:

    Original file title: Vitra international - Vitra © Richard Bryant - Tambem Copias em slides

    Siza's office numbered negatives in this file VIFME156-VIFME163

    This file includes an articles about the project in the Cultura magazine.

    Siza's office numbered negatives in this file R-VIFME007-R-VIFME163

    Quantity / Object type:

    1 File

    Extent and Medium:

    • 8 negatives

    Credit line:

    Álvaro Siza fonds
    Collection Centre Canadien d'Architecture/
    Canadian Centre for Architecture, Montréal
    Don d’Álvaro Siza/
    Gift of Álvaro Siza

    Folder Number:

    178-608-05

    Objects that have been catalogued:

  • Actions:
    See more Close
    • Reference Number: AP178.S1.1991.PR01.028.1
    • Title: Slides of models and built project, Vitra International, Weil am Rhein, Germany (folder 1 of 2)
    • Dates of creation: 1992-2012
    • Form: photographs
    • Catalogued items within this file 0

    People:

    • Álvaro Siza (archive creator)

    Description:

    Original file title: Vitra international fabrica de Moveis e Escritorios

    Quantity / Object type:

    1 File

    Extent and Medium:

    • 258 slides

    Credit line:

    Álvaro Siza fonds
    Collection Centre Canadien d'Architecture/
    Canadian Centre for Architecture, Montréal
    Don d’Álvaro Siza/
    Gift of Álvaro Siza

    Folder Number:

    178-609-01

  • Actions:
    See more Close
    • Reference Number: AP178.S1.1991.PR01.028.2
    • Title: Slides of models and built project, Vitra International, Weil am Rhein, Germany (folder 2 of 2)
    • Dates of creation: 1992-2012
    • Form: photographs
    • Catalogued items within this file 0

    People:

    • Álvaro Siza (archive creator)

    Description:

    Original file title: Vitra international fabrica de Moveis e Escritorios

    Quantity / Object type:

    1 File

    Extent and Medium:

    • 153 slides

    Credit line:

    Álvaro Siza fonds
    Collection Centre Canadien d'Architecture/
    Canadian Centre for Architecture, Montréal
    Don d’Álvaro Siza/
    Gift of Álvaro Siza

    Folder Number:

    178-610-01

  • Actions:
    See more Close
    • Reference Number: AP178.S1.1991.PR01.029.1
    • Title: Photographs of built project and correspondence, Vitra International, Weil am Rhein, Germany (folder 1 of 2)
    • Dates of creation: 2000-2002
    • Form: drawings, textual records, photographs
    • Catalogued items within this file 0

    People:

    • Álvaro Siza (archive creator)

    Description:

    Original file title: Vitra alterajôes

    This file also includes plans and a design development drawing.

    Quantity / Object type:

    1 File

    Extent and Medium:

    • 32 photographs, 6 35 mm negative strips, 6 reprographic copies on paper, 1 pencil drawing on paper, other materials

    Dimensions:

    Sheet: 21 x 30 cm

    Credit line:

    Álvaro Siza fonds
    Collection Centre Canadien d'Architecture/
    Canadian Centre for Architecture, Montréal
    Don d’Álvaro Siza/
    Gift of Álvaro Siza

    Folder Number:

    178-116-04

  • Actions:
    See more Close
    • Reference Number: AP178.S1.1991.PR01.029.2
    • Title: Photographs of built project and correspondence, Vitra International, Weil am Rhein, Germany (folder 2 of 2)
    • Dates of creation: 2000-2002
    • Form: textual records, photographs
    • Catalogued items within this file 0

    People:

    • Álvaro Siza (archive creator)

    Description:

    Original file title: Vitra alterajôes

    Quantity / Object type:

    1 File

    Extent and Medium:

    • 24 photographs, other materials

    Dimensions:

    Sheet: 21 x 30 cm

    Credit line:

    Álvaro Siza fonds
    Collection Centre Canadien d'Architecture/
    Canadian Centre for Architecture, Montréal
    Don d’Álvaro Siza/
    Gift of Álvaro Siza

    Folder Number:

    178-116-05

  • Actions:
    See more Close
    • Reference Number: AP178.S1.1991.PR01.030.1
    • Title: Correspondence and project documentation, Vitra International, Weil am Rhein, Germany (folder 1 of 3)
    • Dates of creation: 1991-1994
    • Form: textual records
    • Catalogued items within this file 0

    People:

    • Álvaro Siza (archive creator)

    Description:

    Original file title: Vitra. Vitra (International AG, Hen (1).

    Quantity / Object type:

    1 File

    Extent and Medium:

    • 0.01 l.m. of textual documents

    Credit line:

    Álvaro Siza fonds
    Collection Centre Canadien d'Architecture/
    Canadian Centre for Architecture, Montréal
    Don d’Álvaro Siza/
    Gift of Álvaro Siza

    Folder Number:

    178-115-02

  • Actions:
    See more Close
    • Reference Number: AP178.S1.1991.PR01.030.2
    • Title: Correspondence and project documentation, Vitra International, Weil am Rhein, Germany (folder 2 of 3)
    • Dates of creation: 1991-1994
    • Form: textual records
    • Catalogued items within this file 0

    People:

    • Álvaro Siza (archive creator)

    Description:

    Original file title: Vitra. Vitra (International AG, Hen (1).

    Quantity / Object type:

    1 File

    Extent and Medium:

    • 0.01 l.m. of textual documents

    Credit line:

    Álvaro Siza fonds
    Collection Centre Canadien d'Architecture/
    Canadian Centre for Architecture, Montréal
    Don d’Álvaro Siza/
    Gift of Álvaro Siza

    Folder Number:

    178-115-03

  • Actions:
    See more Close
    • Reference Number: AP178.S1.1991.PR01.030.3
    • Title: Correspondence and project documentation, Vitra International, Weil am Rhein, Germany (folder 3 of 3)
    • Dates of creation: 1991-1994
    • Form: textual records
    • Catalogued items within this file 0

    People:

    • Álvaro Siza (archive creator)

    Description:

    Original file title: Vitra. Vitra (International AG, Hen (1).

    Quantity / Object type:

    1 File

    Extent and Medium:

    • 0.01 l.m. of textual documents

    Credit line:

    Álvaro Siza fonds
    Collection Centre Canadien d'Architecture/
    Canadian Centre for Architecture, Montréal
    Don d’Álvaro Siza/
    Gift of Álvaro Siza

    Folder Number:

    178-115-04

  • Actions:
    See more Close
    • Reference Number: AP178.S1.1991.PR01.031.1
    • Title: Correspondence and project documentation, Vitra International, Weil am Rhein, Germany (folder 1 of 3)
    • Dates of creation: 1991-1992
    • Form: textual records
    • Catalogued items within this file 0

    People:

    • Álvaro Siza (archive creator)

    Description:

    Original file title: Vitra 2

    This file includes contracts and bills.

    Quantity / Object type:

    1 File

    Extent and Medium:

    • 0.01 l.m. of textual documents

    Credit line:

    Álvaro Siza fonds
    Collection Centre Canadien d'Architecture/
    Canadian Centre for Architecture, Montréal
    Don d’Álvaro Siza/
    Gift of Álvaro Siza

    Folder Number:

    178-115-05

  • Actions:
    See more Close
    • Reference Number: AP178.S1.1991.PR01.031.2
    • Title: Correspondence and project documentation, Vitra International, Weil am Rhein, Germany (folder 2 of 3)
    • Dates of creation: 1991-1992
    • Form: textual records
    • Catalogued items within this file 0

    People:

    • Álvaro Siza (archive creator)

    Description:

    Original file title: Vitra 2

    This file includes correspondence with GPF and suppliers catalogs.

    Quantity / Object type:

    1 File

    Extent and Medium:

    • 0.01 l.m. of textual documents

    Credit line:

    Álvaro Siza fonds
    Collection Centre Canadien d'Architecture/
    Canadian Centre for Architecture, Montréal
    Don d’Álvaro Siza/
    Gift of Álvaro Siza

    Folder Number:

    178-115-06

  • Actions:
    See more Close
    • Reference Number: AP178.S1.1991.PR01.031.3
    • Title: Correspondence and project documentation, Vitra International, Weil am Rhein, Germany (folder 3 of 3)
    • Dates of creation: 1991-1992
    • Form: textual records
    • Catalogued items within this file 0

    People:

    • Álvaro Siza (archive creator)

    Description:

    Original file title: Vitra 2

    This file includes correspondence with GPf.

    Quantity / Object type:

    1 File

    Extent and Medium:

    • 0.01 l.m. of textual documents

    Credit line:

    Álvaro Siza fonds
    Collection Centre Canadien d'Architecture/
    Canadian Centre for Architecture, Montréal
    Don d’Álvaro Siza/
    Gift of Álvaro Siza

    Folder Number:

    178-115-07

  • Actions:
    See more Close
    • Reference Number: AP178.S1.1991.PR01.032.1
    • Title: Correspondence and project documentation, Vitra International, Weil am Rhein, Germany (folder 1 of 3)
    • Dates of creation: 1992-1993
    • Form: textual records
    • Catalogued items within this file 0

    People:

    • Álvaro Siza (archive creator)

    Description:

    Original file title: Vitra. Vitra (International AG, Hen (3)

    Quantity / Object type:

    1 File

    Extent and Medium:

    • 0.01 l.m. of textual documents

    Credit line:

    Álvaro Siza fonds
    Collection Centre Canadien d'Architecture/
    Canadian Centre for Architecture, Montréal
    Don d’Álvaro Siza/
    Gift of Álvaro Siza

    Folder Number:

    178-115-08

  • Actions:
    See more Close
    • Reference Number: AP178.S1.1991.PR01.032.2
    • Title: Correspondence and project documentation, Vitra International, Weil am Rhein, Germany (folder 2 of 3)
    • Dates of creation: 1992-1993
    • Form: textual records
    • Catalogued items within this file 0

    People:

    • Álvaro Siza (archive creator)

    Description:

    Original file title: Vitra. Vitra (International AG, Hen (3)

    Quantity / Object type:

    1 File

    Extent and Medium:

    • 0.01 l.m. of textual documents

    Credit line:

    Álvaro Siza fonds
    Collection Centre Canadien d'Architecture/
    Canadian Centre for Architecture, Montréal
    Don d’Álvaro Siza/
    Gift of Álvaro Siza

    Folder Number:

    178-115-09

  • Actions:
    See more Close
    • Reference Number: AP178.S1.1991.PR01.032.3
    • Title: Correspondence and project documentation, Vitra International, Weil am Rhein, Germany (folder 3 of 3)
    • Dates of creation: 1992-1993
    • Form: textual records
    • Catalogued items within this file 0

    People:

    • Álvaro Siza (archive creator)

    Description:

    Original file title: Vitra. Vitra (International AG, Hen (3)

    Quantity / Object type:

    1 File

    Extent and Medium:

    • 0.01 l.m. of textual documents

    Credit line:

    Álvaro Siza fonds
    Collection Centre Canadien d'Architecture/
    Canadian Centre for Architecture, Montréal
    Don d’Álvaro Siza/
    Gift of Álvaro Siza

    Folder Number:

    178-115-10

  • Actions:
    See more Close
    • Reference Number: AP178.S1.1991.PR01.033.1
    • Title: Correspondence, photographs of project site and construction work, Vitra International, Weil am Rhein, Germany (folder 1 of 2)
    • Dates of creation: 1993
    • Form: drawings, photographs
    • Catalogued items within this file 0

    People:

    • Álvaro Siza (archive creator)

    Description:

    Original file title: Vitra. Vitra (International AG, Hen (3)

    This file also includes sketches.

    Quantity / Object type:

    1 File

    Extent and Medium:

    • Approximately 168 photographs, 9 reprographic copies on paper, 5 ink and pencil drawings on paper

    Dimensions:

    Sheet: 21 x 30 cm

    Credit line:

    Álvaro Siza fonds
    Collection Centre Canadien d'Architecture/
    Canadian Centre for Architecture, Montréal
    Don d’Álvaro Siza/
    Gift of Álvaro Siza

    Folder Number:

    178-115-11

  • Actions:
    See more Close
    • Reference Number: AP178.S1.1991.PR01.033.2
    • Title: Correspondence, photographs of project site and construction work, Vitra International, Weil am Rhein, Germany (folder 2 of 2)
    • Dates of creation: 1993
    • Form: textual records
    • Catalogued items within this file 0

    People:

    • Álvaro Siza (archive creator)

    Description:

    Original file title: Vitra. Vitra (International AG, Hen (3)

    Quantity / Object type:

    1 File

    Extent and Medium:

    • 0.01 l.m. of textual documents

    Credit line:

    Álvaro Siza fonds
    Collection Centre Canadien d'Architecture/
    Canadian Centre for Architecture, Montréal
    Don d’Álvaro Siza/
    Gift of Álvaro Siza

    Folder Number:

    178-115-12

  • Actions:
    See more Close
    • Reference Number: AP178.S1.1991.PR01.034.1
    • Title: Correspondence, plans, photographs, and sketches, Vitra International, Weil am Rhein, Germany (folder 1 of 3)
    • Dates of creation: 1995
    • Form: drawings, textual records
    • Catalogued items within this file 0

    People:

    • Álvaro Siza (archive creator)

    Description:

    Original file title: Vitra

    Quantity / Object type:

    1 File

    Extent and Medium:

    • 11 reprographic copies on paper, other materials

    Dimensions:

    Sheet: 21 x 30 cm

    Credit line:

    Álvaro Siza fonds
    Collection Centre Canadien d'Architecture/
    Canadian Centre for Architecture, Montréal
    Don d’Álvaro Siza/
    Gift of Álvaro Siza

    Folder Number:

    178-116-06

  • Actions:
    See more Close
    • Reference Number: AP178.S1.1991.PR01.034.2
    • Title: Correspondence, plans, photographs, and sketches, Vitra International, Weil am Rhein, Germany (folder 2 of 3)
    • Dates of creation: 1995
    • Form: drawings, textual records, photographs
    • Catalogued items within this file 0

    People:

    • Álvaro Siza (archive creator)

    Description:

    Original file title: Vitra

    This file also includes sketches and photographs of built project.

    Quantity / Object type:

    1 File

    Extent and Medium:

    • 5 reprographic copies on paper, 5 photographs, 3 pencil drawings on paper, other materials

    Dimensions:

    Sheet: 21 x 30 cm

    Credit line:

    Álvaro Siza fonds
    Collection Centre Canadien d'Architecture/
    Canadian Centre for Architecture, Montréal
    Don d’Álvaro Siza/
    Gift of Álvaro Siza

    Folder Number:

    178-116-07

  • Actions:
    See more Close
    • Reference Number: AP178.S1.1991.PR01.034.3
    • Title: Correspondence, plans, photographs, and sketches, Vitra International, Weil am Rhein, Germany (folder 3 of 3)
    • Dates of creation: 1995
    • Form: drawings, textual records, photographs
    • Catalogued items within this file 0

    People:

    • Álvaro Siza (archive creator)

    Description:

    Original file title: Vitra

    This file also includes sketches and photographs of built project.

    Quantity / Object type:

    1 File

    Extent and Medium:

    • 7 reprographic copies on paper, 12 photographs, 6 pencil drawings on paper, other materials

    Dimensions:

    Sheet: 21 x 30 cm

    Credit line:

    Álvaro Siza fonds
    Collection Centre Canadien d'Architecture/
    Canadian Centre for Architecture, Montréal
    Don d’Álvaro Siza/
    Gift of Álvaro Siza

    Folder Number:

    178-116-08

  • Actions:
    See more Close
    • Reference Number: AP178.S1.1991.PR01.035
    • Title: Documentation and photographs for the dock doors, Vitra International, Weil am Rhein, Germany
    • Dates of creation: circa 1994
    • Form: drawings, textual records
    • Catalogued items within this file 0

    People:

    • Álvaro Siza (archive creator)

    Description:

    Original file title: Vitra portas hovas TORF

    Quantity / Object type:

    1 File

    Extent and Medium:

    • 6 photographs, 1 reprographic copy, other materials

    Dimensions:

    Sheet: 21 x 30 cm

    Credit line:

    Álvaro Siza fonds
    Collection Centre Canadien d'Architecture/
    Canadian Centre for Architecture, Montréal
    Don d’Álvaro Siza/
    Gift of Álvaro Siza

    Folder Number:

    178-116-09

  • Actions:
    See more Close
    • Reference Number: AP178.S1.1991.PR01.036.1
    • Title: Documentation, Vitra International, Weil am Rhein, Germany (folder 1 of 3)
    • Dates of creation: 1992-1995
    • Form: textual records
    • Catalogued items within this file 0

    People:

    • Álvaro Siza (archive creator)

    Description:

    Original file title: Vitra diversos

    This file includes correspondence about the Fehlbaum familly tomb and a notebook.

    Quantity / Object type:

    1 File

    Extent and Medium:

    • 1 notebook, other materials

    Credit line:

    Álvaro Siza fonds
    Collection Centre Canadien d'Architecture/
    Canadian Centre for Architecture, Montréal
    Don d’Álvaro Siza/
    Gift of Álvaro Siza

    Folder Number:

    178-118-04

  • Actions:
    See more Close
    • Reference Number: AP178.S1.1991.PR01.036.2
    • Title: Documentation, Vitra International, Weil am Rhein, Germany (folder 2 of 3)
    • Dates of creation: 1992-1995
    • Form: textual records
    • Catalogued items within this file 0

    People:

    • Álvaro Siza (archive creator)

    Description:

    Original file title: Vitra diversos

    Quantity / Object type:

    1 File

    Extent and Medium:

    • 0.01 l.m. of textual documents

    Credit line:

    Álvaro Siza fonds
    Collection Centre Canadien d'Architecture/
    Canadian Centre for Architecture, Montréal
    Don d’Álvaro Siza/
    Gift of Álvaro Siza

    Folder Number:

    178-118-05

  • Actions:
    See more Close
    • Reference Number: AP178.S1.1991.PR01.036.3
    • Title: Documentation, Vitra International, Weil am Rhein, Germany (folder 3 of 3)
    • Dates of creation: 1992-1995
    • Form: textual records
    • Catalogued items within this file 0

    People:

    • Álvaro Siza (archive creator)

    Description:

    Original file title: Vitra diversos

    This file includes articles about Vitra.

    Quantity / Object type:

    1 File

    Extent and Medium:

    • 0.01 l.m. of textual documents

    Credit line:

    Álvaro Siza fonds
    Collection Centre Canadien d'Architecture/
    Canadian Centre for Architecture, Montréal
    Don d’Álvaro Siza/
    Gift of Álvaro Siza

    Folder Number:

    178-118-06

  • Actions:
    See more Close
    • Reference Number: AP178.S1.1991.PR01.037
    • Title: General study model, Vitra International, Weil am Rhein, Germany
    • Dates of creation: 1991
    • Form: models
    • Catalogued items within this file 1

    People:

    • Álvaro Siza (archive creator)

    Quantity / Object type:

    1 File

    Extent and Medium:

    • 1 model in card

    Dimensions:

    Model: 55 x 100 x 20.5 cm

    Credit line:

    Álvaro Siza fonds
    Collection Centre Canadien d'Architecture/
    Canadian Centre for Architecture, Montréal
    Don d’Álvaro Siza/
    Gift of Álvaro Siza

    Objects that have been catalogued:

1
1

Sign up to get news from us

Email address
First name
Last name
By signing up you agree to receive our newsletter and communications about CCA activities. You can unsubscribe at any time. For more information, consult our privacy policy or contact us.

Thank you for signing up. You'll begin to receive emails from us shortly.

We’re not able to update your preferences at the moment. Please try again later.

You’ve already subscribed with this email address. If you’d like to subscribe with another, please try again.

This email was permanently deleted from our database. If you’d like to resubscribe with this email, please contact us

Please complete the form below to buy:
[Title of the book, authors]
ISBN: [ISBN of the book]
Price [Price of book]

First name
Last name
Address (line 1)
Address (line 2) (optional)
Postal code
City
Country
Province/state
Email address
Phone (day) (optional)
Notes

Thank you for placing an order. We will contact you shortly.

We’re not able to process your request at the moment. Please try again later.

Folder ()

Your folder is empty.

Email:
Subject:
Notes:
Please complete this form to make a request for consultation. A copy of this list will also be forwarded to you.

Your contact information
First name:
Last name:
Email:
Phone number:
Notes (optional):
We will contact you to set up an appointment. Please keep in mind that your consultation date will be based on the type of material you wish to study. To prepare your visit, we'll need:
  • — At least 2 weeks for primary sources (prints and drawings, photographs, archival documents, etc.)
  • — At least 48 hours for secondary sources (books, periodicals, vertical files, etc.)
...