De La Migration

Les contributions réunies dans cette publication explorent les histoires de l’architecture sous l’angle des pratiques féministes de création du savoir. Les histoires architecturales féministes de migration à travers les territoires et les cadres temporels sont un moyen de contrer le discours de fixité si souvent véhiculé dans le récit sur l’environnement bâti. Cette collection de textes, dessins, et films est dirigé par Anooradha Iyer Siddiqi et Rachel Lee.

Article 2 de 11

Architectures des soins

Huda Tayob dessine l'espace de la marge

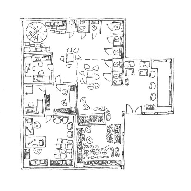
Bellstat Junction, un centre commercial somalien au Cap, en Afrique du Sud. Dessin de Huda Tayob, 2014-2015. ©Huda Tayob

Le dessin est un procédé essentiel pour les architectes. Ceux qui sont montrés ici suivent les conventions architecturales afin de rendre explicites des espaces subalternes – une pratique de soins. Les divers marchés et kiosques individuels sont situés à Bellstat Junction, un « centre commercial somalien » dirigé par des réfugiées au Cap, en Afrique du Sud. Bien que les questions concernant les réfugiés et les migrations se traitent souvent à l’échelle de l’État-nation, l’attention se déplace, par ces dessins, vers les espaces du travail, du domicile et de l’abri où se déroule la vie quotidienne.

Boutique d’Hanaan, Bellstat Junction, Le Cap. Dessin de Huda Tayob, 2014-2015. ©Huda Tayob

Ces dessins et retraçages cartographient ma rencontre de ces marchés1. Ils ont été réalisés sur un an, suite à des conversations sur place. Le fait de dessiner à même ces marchés a ainsi donné lieu à de nombreuses discussions et questions à propos de ma recherche avec les propriétaires résidentes et est devenu un moyen de communiquer activement les unes avec les autres2. Mon adoption des conventions architecturales du plan et de la coupe découle de ma formation d’architecte. Les dessins, plutôt que des mesures précises avec valeur légale, sont basés sur des estimations et des approximations afin de créer des archives contingentes de ces intérieurs. Le détail correspond à des visites répétées et à une lente reconnaissance de ce qui importe à celles et ceux qui vivent dans ces espaces intérieurs et qui les créent. Les dessins illustrent donc la densité d’occupation, de même que les produits vendus, le mobilier et la vaisselle – en d’autres mots, des objets du quotidien qui ne figurent pas toujours dans les dessins d’architecture, mais qui sont rendus selon les conventions de représentation qui négligeraient autrement de tels espaces, les traitant comme s’ils étaient invisibles. Le fait de dessiner ces marchés nous demande de considérer ceux-ci comme des espaces dignes d’être reproduits. Contrairement à l’accent souvent mis sur la nature improvisée des espaces réservés au commerce informel, ces formes de représentation mettent en évidence l’existence très réelle de formes physiques construites, ainsi que les possibilités spatiales et matérielles concrètes de ce qui pourrait être considéré comme ad hoc. Ces illustrations expriment dans les détails du quotidien la façon dont les gens déplacés de force créent de nouveaux nœuds spatiaux afin de surmonter l’exclusion formelle.


  1. John Berger, Bento’s Sketchbook, Londres, Verso, 2015; Le cahier de Bento, Paris, Éditions de l’Olivier, 2012.  

  2. Gayatri Spivak, « Can the subaltern speak? », Marxism and the Interpretation of Culture, Cary Nelson et Lawrence Grossberg (dir.), Urbana, University of Illinois Press, 1988, p. 271-313. 

Ces dessins sont essentiels à la lecture des architectures complexes des soins. Ils constituent une manifestation de ce qui n’est pas réductible ou évacué par les mécanismes de contrôle1, proposant des archives marginales ou contraires à des sites affectifs, mais négligés. Comme le note Stuart Hall, la constitution d’archives représente un moment qui nécessite une réflexion approfondie. Par nature, l‘archivage comprend un positionnement conscient afin de construire un ensemble de catégories et de cadres conceptuels2. Écrire sur ces centres commerciaux somaliens en tant qu’architectures et les dessiner devient un moyen de reconnaître les façons dont les gens rendent leur vie vivable. À leur tour, les dessins sont des traces de ces vies, et une reconnaissance des pratiques quotidiennes de refus du statu quo et de construction d’espaces intimes. Ces sites fonctionnent donc sur le lieu instable de la précarité et de la possibilité, offrant tant un registre du passé qu’un cheminement pour l’avenir.


  1. bell hooks, « Choosing the Margin as a Space of Radical Openness », Yearning : Race, Gender, and Cultural Politics, Boston, South End Press, 1990, p. 145–153. 

  2. Stuart Hall, « Constituting an Archive », Third Text, vol. 15, no 54 (mars 2001), p. 89–92. 

Boutique d’Haseena, Bellstat Junction, Le Cap. Dessin de Huda Tayob, 2014-2015. ©Huda Tayob

Huda Tayob a présenté sa recherche sur architectures transnationales des soins dans le cadre d’Outils d’aujourd’hui : Sur le terrain planétaire en 2020. Sa recherche est publié ici dans le cadre de notre dossier De la migration.

1
1

Inscrivez-vous pour recevoir de nos nouvelles

Courriel
Prénom
Nom
En vous abonnant, vous acceptez de recevoir notre infolettre et communications au sujet des activités du CCA. Vous pouvez vous désabonner en tout temps. Pour plus d’information, consultez notre politique de confidentialité ou contactez-nous.

Merci. Vous êtes maintenant abonné. Vous recevrez bientôt nos courriels.

Pour le moment, notre système n’est pas capable de mettre à jour vos préférences. Veuillez réessayer plus tard.

Vous êtes déjà inscrit avec cette adresse électronique. Si vous souhaitez vous inscrire avec une autre adresse, merci de réessayer.

Cete adresse courriel a été définitivement supprimée de notre base de données. Si vous souhaitez vous réabonner avec cette adresse courriel, veuillez contactez-nous

Veuillez, s'il vous plaît, remplir le formulaire ci-dessous pour acheter:
[Title of the book, authors]
ISBN: [ISBN of the book]
Prix [Price of book]

Prénom
Nom de famille
Adresse (ligne 1)
Adresse (ligne 2) (optionnel)
Code postal
Ville
Pays
Province / État
Courriel
Téléphone (jour) (optionnel)
Notes

Merci d'avoir passé une commande. Nous vous contacterons sous peu.

Nous ne sommes pas en mesure de traiter votre demande pour le moment. Veuillez réessayer plus tard.

Classeur ()

Votre classeur est vide.

Adresse électronique:
Sujet:
Notes:
Veuillez remplir ce formulaire pour faire une demande de consultation. Une copie de cette liste vous sera également transmise.

Vos informations
Prénom:
Nom de famille:
Adresse électronique:
Numéro de téléphone:
Notes (optionnel):
Nous vous contacterons pour convenir d’un rendez-vous. Veuillez noter que des délais pour les rendez-vous sont à prévoir selon le type de matériel que vous souhaitez consulter, soit :"
  • — au moins 2 semaines pour les sources primaires (dessins et estampes, photographies, documents d’archives, etc.)
  • — au moins 48 heures pour les sources secondaires (livres, périodiques, dossiers documentaires, etc.)
...