1
1

Caixa Geral de Depósitos [Caixa Geral de Depósitos bank], Matosinhos, Portugal (1979)

Caixa Geral de Depósitos [Caixa Geral de Depósitos bank], Matosinhos, Portugal (1979)

Inclus dans

Personnes et institutions

  • Álvaro Siza (archive creator)
  • Álvaro Siza (architect)

Titre

Caixa Geral de Depósitos [Caixa Geral de Depósitos bank], Matosinhos, Portugal (1979)

Dates de création

1976-2012

Niveau de description archivistique

Project

Collation

  • 229 drawings (including 90 reprographic copies)
  • 60 photographic materials
  • 0.04 linear metres of textual documentation

Présentation du contenu

This project series documents the Caixa Geral de Depósitos in Matosinhos, Portugal. While the records were held in the office’s archives this project was assigned the number 47/70. The office assigned the date 1979 to this project.

The Caixa Geral de Depósitos bank was a building divided for three purposes: the Serviços da Caixa Economica, the Casa de Crédito Popular, and dwellings. The Serviços da Caixa Economica included a public service area, archive vaults, manager's office, writing room, bank vaults, dressing rooms and bathrooms. The Casa de Crédito popular includes a public service area, warehouse, dressing rooms and bathrooms. The rest of the space was supposed to be used for apartments.

Documenting this project are sketches, studies and working drawings. Textual materials include project documentation and correspondence. Photographs document the project site.

Numéro de réference

AP178.S1.1979.PR01

Mode de classement

Materials in this project series were compiled from multiple accessions. Materials within each accession weree arranged by Álvaro Siza’s office and have been kept in this order.

Localisation

Matosinhos Portugal

Mention de crédit

When citing the collection as a whole, use the citation: Álvaro Siza fonds, Collection Centre Canadien d’Architecture/Canadian Centre for Architecture, Montréal. When citing specific collection material, please refer to the object’s specific credit line.

Inventaire

Trier par: 

  • Voir plus Fermer
    • Numéro de réference: AP178.S1.1979.PR01.001
    • Titre: Sketches and studies, Caixa Geral de Depósitos, Matosinhos
    • Dates de création: 1979
    • Classification: dessins
    • Objets catalogués : 3

    Personnes et institutions:

    • Álvaro Siza (archive creator)

    Description:

    Original file title :Caixa Geral de Deposito - Matosinhos

    Nota : Lembrar - 3 esquicos com Moldura

    Quantité / Type d’objet:

    1 File

    Collation:

    • 7 ink and pencil drawings on paper
    • 6 reprographic copies on paper

    Dimensions:

    Sheet: 21 x 30 cm

    Mention de crédit:

    Álvaro Siza fonds
    Collection Centre Canadien d'Architecture/
    Canadian Centre for Architecture, Montréal
    Don d’Álvaro Siza/
    Gift of Álvaro Siza

    Numéro de chemise:

    178-400-01

    Objets catalogués:

  • Voir plus Fermer
    • Numéro de réference: AP178.S1.1979.PR01.002.1
    • Titre: Studies and working drawings, Caixa Geral de Depósitos, Matosinhos (folder 1 of 4)
    • Dates de création: 1979-1982
    • Classification: dessins
    • Objets catalogués : 3

    Personnes et institutions:

    • Álvaro Siza (archive creator)

    Description:

    Original file title : Caixa Geral de deposito
    - Des. A. Ricuoroso - ver tambem mesa n.4
    - ''arq. Siza
    - Matriz

    Quantité / Type d’objet:

    1 File

    Collation:

    • 24 pencil drawings on translucent paper

    Dimensions:

    Sheet (largest): 38 x 50 cm|Sheet (smallest): 21 x 30 cm

    Mention de crédit:

    Álvaro Siza fonds
    Collection Centre Canadien d'Architecture/
    Canadian Centre for Architecture, Montréal
    Don d’Álvaro Siza/
    Gift of Álvaro Siza

    Sources complémentaires:

    • This file is housed in four separate folders. The second, third, and fourth portions of this file is housed in folders AP178.S1.1979.PR01.002.2, AP178.S1.1979.PR01.002.3, and AP178.S1.1979.PR01.002.4

    Numéro de chemise:

    178-351-07

    Objets catalogués:

  • Voir plus Fermer
    • Numéro de réference: AP178.S1.1979.PR01.002.2
    • Titre: Studies and working drawings, Caixa Geral de Depósitos, Matosinhos (folder 2 of 4)
    • Dates de création: 1979-1982
    • Classification: dessins
    • Objets catalogués : 12

    Personnes et institutions:

    • Álvaro Siza (archive creator)

    Description:

    Original file title : Caixa Geral de deposito
    - Des. A. Ricuoroso - ver tambem mesa n.4
    - ''arq. Siza
    - Matriz

    This file includes a list of drawings.

    Quantité / Type d’objet:

    1 File

    Collation:

    • 29 ink and pencil drawings on translucent paper
    • 23 reprographic copies

    Dimensions:

    Sheet (largest): 30 x 45 cm|Sheet (smallest): 21 x 30 cm

    Mention de crédit:

    Álvaro Siza fonds
    Collection Centre Canadien d'Architecture/
    Canadian Centre for Architecture, Montréal
    Don d’Álvaro Siza/
    Gift of Álvaro Siza

    Sources complémentaires:

    • This file is housed in four separate folders. The first, third, and fourth portions of this file is housed in folders AP178.S1.1979.PR01.002.1, AP178.S1.1979.PR01.002.3 and AP178.S1.1979.PR01.002.4

    Numéro de chemise:

    178-351-08

    Objets catalogués:

  • Voir plus Fermer
    • Numéro de réference: AP178.S1.1979.PR01.002.3
    • Titre: Studies and working drawings, Caixa Geral de Depósitos, Matosinhos (folder 3 of 4)
    • Dates de création: 1979-1982
    • Classification: dessins
    • Objets catalogués : 0

    Personnes et institutions:

    • Álvaro Siza (archive creator)

    Description:

    Original file title : Caixa Geral de deposito
    - Des. A. Ricuoroso - ver tambem mesa n.4
    - ''arq. Siza
    - Matriz

    Quantité / Type d’objet:

    1 File

    Collation:

    • 59 drawings

    Dimensions:

    Sheet (largest): 45 x 75 cm|Sheet (smallest): 40 x 56 cm

    Mention de crédit:

    Álvaro Siza fonds
    Collection Centre Canadien d'Architecture/
    Canadian Centre for Architecture, Montréal
    Don d’Álvaro Siza/
    Gift of Álvaro Siza

    Sources complémentaires:

    • This file is housed in four separate folders. The first, second, and fourth portions of this file is housed in folders AP178.S1.1979.PR01.002.1 AP178.S1.1979.PR01.002.2, and AP178.S1.1979.PR01.002.4

    Numéro de chemise:

    178-364-01

  • Voir plus Fermer
    • Numéro de réference: AP178.S1.1979.PR01.002.4
    • Titre: Studies and working drawings, Caixa Geral de Depósitos, Matosinhos (folder 4 of 4)
    • Dates de création: 1979-1982
    • Classification: dessins
    • Objets catalogués : 0

    Personnes et institutions:

    • Álvaro Siza (archive creator)

    Description:

    Original file title : Caixa Geral de deposito
    - Des. A. Ricuoroso - ver tambem mesa n.4
    - ''arq. Siza
    - Matriz

    Quantité / Type d’objet:

    1 File

    Collation:

    • 7 ink and pencil drawings on translucent paper
    • 2 reprographic copies

    Dimensions:

    Sheet (largest): 68 x 94 cm|Sheet (smallest): 40 x 78 cm

    Mention de crédit:

    Álvaro Siza fonds
    Collection Centre Canadien d'Architecture/
    Canadian Centre for Architecture, Montréal
    Don d’Álvaro Siza/
    Gift of Álvaro Siza

    Sources complémentaires:

    • This file is housed in four separate folders. The first, second, and third portions of this file is housed in folders AP178.S1.1979.PR01.002.1, AP178.S1.1979.PR01.002.2 and AP178.S1.1979.PR01.003.3

    Numéro de chemise:

    178-388-02

  • Voir plus Fermer
    • Numéro de réference: AP178.S1.1979.PR01.003
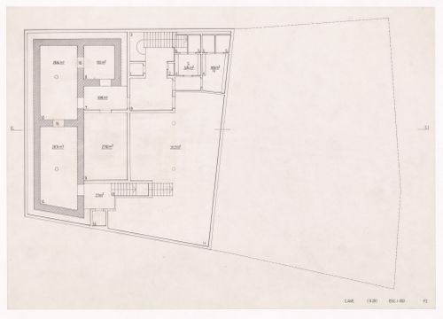
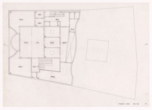
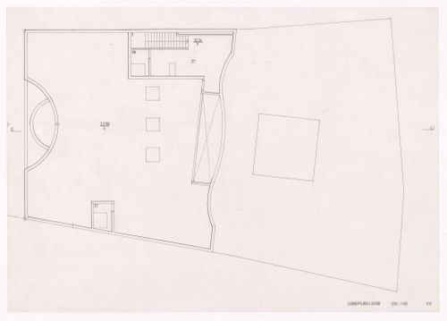
    • Titre: Elevations, sections, and floor plans, Caixa Geral de Depósitos, Matosinhos
    • Dates de création: 1979-1980
    • Classification: dessins
    • Objets catalogués : 0

    Personnes et institutions:

    • Álvaro Siza (archive creator)

    Description:

    Original file title: Caixa Geral de Despositos - 2 desenhos

    Quantité / Type d’objet:

    1 File

    Collation:

    • 2 ink drawings on translucent paper

    Dimensions:

    Sheet (largest): 92 x 135 cm|Sheet (smallest): 98 x 98 cm

    Mention de crédit:

    Álvaro Siza fonds
    Collection Centre Canadien d'Architecture/
    Canadian Centre for Architecture, Montréal
    Don d’Álvaro Siza/
    Gift of Álvaro Siza

    Numéro de chemise:

    178-2017-420 XL

  • Voir plus Fermer
    • Numéro de réference: AP178.S1.1979.PR01.004
    • Titre: Photographs of the area, Caixa Geral de Depósitos, Matosinhos
    • Dates de création: 1976-1990
    • Classification: photographies
    • Objets catalogués : 3

    Personnes et institutions:

    • Álvaro Siza (archive creator)

    Description:

    Original file title : Caixa Geral de desposito - Matosinhos

    Nota : CGDM 004 (Casa dos pais?)

    Siza's office numbered photographs in this file CGDM001to CGDM012

    Quantité / Type d’objet:

    1 File

    Collation:

    • 35 photographs

    Mention de crédit:

    Álvaro Siza fonds
    Collection Centre Canadien d'Architecture/
    Canadian Centre for Architecture, Montréal
    Don d’Álvaro Siza/
    Gift of Álvaro Siza

    Numéro de chemise:

    178-392-09

    Objets catalogués:

  • Voir plus Fermer
    • Numéro de réference: AP178.S1.1979.PR01.005
    • Titre: Slides of model, Caixa Geral de Depósitos, Matosinhos
    • Dates de création: 1976-1990
    • Classification: photographies
    • Objets catalogués : 0

    Personnes et institutions:

    • Álvaro Siza (archive creator)

    Description:

    Original file title : Caixa Geral de desposito

    Siza's office numbered photographs in this file CGDM013 to CGDM017

    Quantité / Type d’objet:

    1 File

    Collation:

    • 6 slides

    Mention de crédit:

    Álvaro Siza fonds
    Collection Centre Canadien d'Architecture/
    Canadian Centre for Architecture, Montréal
    Don d’Álvaro Siza/
    Gift of Álvaro Siza

    Numéro de chemise:

    178-333-14

  • Voir plus Fermer
    • Numéro de réference: AP178.S1.1979.PR01.006.1
    • Titre: Technical documentation, documentation for the bank vault, and working drawings, Caixa Geral de Depósitos, Matosinhos (folder 1 of 2)
    • Dates de création: 1987
    • Classification: dessins, documents textuels
    • Objets catalogués : 0

    Personnes et institutions:

    • Álvaro Siza (archive creator)

    Description:

    Original file title: Material Caixa Geral de posito normas

    Quantité / Type d’objet:

    1 File

    Collation:

    • 7 reprographic copies on paper
    • other materials

    Dimensions:

    Sheet: 21 x 30 cm

    Caractéristiques matérielles et contraintes techniques:

    Includes folded reprographic copies.

    Mention de crédit:

    Álvaro Siza fonds
    Collection Centre Canadien d'Architecture/
    Canadian Centre for Architecture, Montréal
    Don d’Álvaro Siza/
    Gift of Álvaro Siza

    Sources complémentaires:

    • This file is housed in two separate folders. The second portion of this file is found in folder AP178.S1.1979.PR01.006.2

    Numéro de chemise:

    178-082-011

  • Voir plus Fermer
    • Numéro de réference: AP178.S1.1979.PR01.006.2
    • Titre: Technical documentation, documentation for the bank vault, and working drawings, Caixa Geral de Depósitos, Matosinhos (folder 2 of 2)
    • Dates de création: 1987
    • Classification: dessins, documents textuels
    • Objets catalogués : 0

    Personnes et institutions:

    • Álvaro Siza (archive creator)

    Description:

    Original file title : Material Caixa Geral de posito normas

    Quantité / Type d’objet:

    1 File

    Collation:

    • 15 reprographic copies on paper
    • 1 pencil drawing on paper
    • other materials

    Dimensions:

    Sheet: 21 x 30 cm

    Caractéristiques matérielles et contraintes techniques:

    Includes folded reprographic copies.

    Mention de crédit:

    Álvaro Siza fonds
    Collection Centre Canadien d'Architecture/
    Canadian Centre for Architecture, Montréal
    Don d’Álvaro Siza/
    Gift of Álvaro Siza

    Sources complémentaires:

    • This file is housed in two separate folders. The second portion of this file is found in folder AP178.S1.1979.PR01.006.1

    Numéro de chemise:

    178-082-012

  • Voir plus Fermer
    • Numéro de réference: AP178.S1.1979.PR01.007.1
    • Titre: Correspondence, project documentation, and studies, Caixa Geral de Depósitos, Matosinhos (folder 1 of 2)
    • Dates de création: 1976-1990
    • Classification: dessins, documents textuels
    • Objets catalogués : 0

    Personnes et institutions:

    • Álvaro Siza (archive creator)

    Description:

    Original file title : Caixa Geral de desposito Matosinhos

    This file includes a building program and contracts.

    Quantité / Type d’objet:

    1 File

    Collation:

    • 9 reprographic copies on paper
    • other materials

    Dimensions:

    Sheet: 21 x 30 cm

    Mention de crédit:

    Álvaro Siza fonds
    Collection Centre Canadien d'Architecture/
    Canadian Centre for Architecture, Montréal
    Don d’Álvaro Siza/
    Gift of Álvaro Siza

    Sources complémentaires:

    • This file is housed in two separate folders. The second portion of this file is found in folder AP178.S1.1979.PR01.007.2

    Numéro de chemise:

    178-082-013

  • Voir plus Fermer
    • Numéro de réference: AP178.S1.1979.PR01.007.2
    • Titre: Correspondence, project documentation, and studies, Caixa Geral de Depósitos, Matosinhos (folder 2 of 2)
    • Dates de création: 1976-1990
    • Classification: dessins, documents textuels
    • Objets catalogués : 0

    Personnes et institutions:

    • Álvaro Siza (archive creator)

    Description:

    Original file title : Caixa Geral de desposito Matosinhos

    Quantité / Type d’objet:

    1 File

    Collation:

    • 28 reprographic copies on paper
    • 10 pencil drawings on paper
    • other materials

    Dimensions:

    Sheet: 21 x 30 cm

    Caractéristiques matérielles et contraintes techniques:

    Includes folded reprographic copies.

    Mention de crédit:

    Álvaro Siza fonds
    Collection Centre Canadien d'Architecture/
    Canadian Centre for Architecture, Montréal
    Don d’Álvaro Siza/
    Gift of Álvaro Siza

    Sources complémentaires:

    • This file is housed in two separate folders. The second portion of this file is found in folder AP178.S1.1979.PR01.007.1

    Numéro de chemise:

    178-83-01

  • Voir plus Fermer
    • Numéro de réference: AP178.S1.1979.PR01.008
    • Titre: Slides showing the model, Caixa Geral de Depósitos, Matosinhos
    • Dates de création: april 2012
    • Classification: photographies
    • Objets catalogués : 1

    Personnes et institutions:

    • Álvaro Siza (archive creator)
    • Teresa Siza (copyright)

    Description:

    Original file title: Caixa Geral de Depósitos

    Siza's office numbered these slides CGDM018 to CGDM023. These materials are © Teresa Siza.

    Quantité / Type d’objet:

    1 File

    Collation:

    • 13 slides

    Mention de crédit:

    Álvaro Siza fonds
    Collection Centre Canadien d'Architecture/
    Canadian Centre for Architecture, Montréal
    Don d’Álvaro Siza/
    Gift of Álvaro Siza

    Numéro de chemise:

    178-642-006

    Objets catalogués:

  • Voir plus Fermer
    • Numéro de réference: AP178.S1.1979.PR01.009
    • Titre: Slides showing sketch axonometric drawings, Caixa Geral de Depósitos, Matosinhos
    • Dates de création: circa 1979
    • Classification: photographies
    • Objets catalogués : 0

    Personnes et institutions:

    • Álvaro Siza (archive creator)

    Description:

    Original file title: Caixa Geral de Depósitos, Matosinhos (Projecto)

    Quantité / Type d’objet:

    1 File

    Collation:

    • 6 slides

    Mention de crédit:

    Álvaro Siza fonds
    Collection Centre Canadien d'Architecture/
    Canadian Centre for Architecture, Montréal
    Don d’Álvaro Siza/
    Gift of Álvaro Siza

    Numéro de chemise:

    178-645-004

1
1

Inscrivez-vous pour recevoir de nos nouvelles

Courriel
Prénom
Nom
En vous abonnant, vous acceptez de recevoir notre infolettre et communications au sujet des activités du CCA. Vous pouvez vous désabonner en tout temps. Pour plus d’information, consultez notre politique de confidentialité ou contactez-nous.

Merci. Vous êtes maintenant abonné. Vous recevrez bientôt nos courriels.

Pour le moment, notre système n’est pas capable de mettre à jour vos préférences. Veuillez réessayer plus tard.

Vous êtes déjà inscrit avec cette adresse électronique. Si vous souhaitez vous inscrire avec une autre adresse, merci de réessayer.

Cete adresse courriel a été définitivement supprimée de notre base de données. Si vous souhaitez vous réabonner avec cette adresse courriel, veuillez contactez-nous

Veuillez, s'il vous plaît, remplir le formulaire ci-dessous pour acheter:
[Title of the book, authors]
ISBN: [ISBN of the book]
Prix [Price of book]

Prénom
Nom de famille
Adresse (ligne 1)
Adresse (ligne 2) (optionnel)
Code postal
Ville
Pays
Province / État
Courriel
Téléphone (jour) (optionnel)
Notes

Merci d'avoir passé une commande. Nous vous contacterons sous peu.

Nous ne sommes pas en mesure de traiter votre demande pour le moment. Veuillez réessayer plus tard.

Classeur ()

Votre classeur est vide.

Adresse électronique:
Sujet:
Notes:
Veuillez remplir ce formulaire pour faire une demande de consultation. Une copie de cette liste vous sera également transmise.

Vos informations
Prénom:
Nom de famille:
Adresse électronique:
Numéro de téléphone:
Notes (optionnel):
Nous vous contacterons pour convenir d’un rendez-vous. Veuillez noter que des délais pour les rendez-vous sont à prévoir selon le type de matériel que vous souhaitez consulter, soit :"
  • — au moins 2 semaines pour les sources primaires (dessins et estampes, photographies, documents d’archives, etc.)
  • — au moins 48 heures pour les sources secondaires (livres, périodiques, dossiers documentaires, etc.)
...