1
1

History Faculty Building, University of Cambridge, Competition and Construction, Cambridge, England, United Kingdom

History Faculty Building, University of Cambridge, Competition and Construction, Cambridge, England, United Kingdom

Part of

People

  • James Stirling (Firm) (creator)
  • James Stirling (Firm) (architectural firm)
  • James Frazer Stirling (archive creator)

Title

History Faculty Building, University of Cambridge, Competition and Construction, Cambridge, England, United Kingdom

Dates of creation

1962-[2000], predominant 1963-1968

Level of archival description

File 26

Extent and Medium

  • 0.41 l.m. of textual records
  • approximately 1552 photographic materials
  • approximately 123 drawings (including approximately 90 reprographic copies)
  • 19 rolls of drawings
  • 1 model
  • 1 artefact

Scope and Content

File documents a successful competition entry and an executed project for a library for the University of Cambridge, Cambridge, England, United Kingdom. Material in this file was produced between 1962 and 2000.

File contains publication drawings and several working drawings. Photographic materials include views of drawings, of models, including by John Donat Photography and by photographer Richard Einzing of Brecht-Einzig studio, an aerial view of the site, views of the building site, of the completed building and of James Stirling, including by photographers Ian Nairn, Norman R.C. McGrath, James Stirling, Ezra Stoller, Alessandro Vasella and Colin Westwood. Photographs of building defects and remedial work are also present in the file. File also contains textual records, presentation models and a printing plate.

Reference Number

AP140.S2.SS1.D26

Arrangement

Material in this project series was likely kept in its original order when it was first processed upon its arrival at CCA.

Location

Cambridge Cambridgeshire England United Kingdom

Language of material

Documents are in English, German, Italian, and Spanish.

Related units of description

  • Textual records AP140.S2.SS1.D36.P1 and slides AP140.S2.SS7.D2.P8 also include information on file AP140.S2.SS1.D26.

Inventory

Sort by: 

  • Actions:
    See more Close
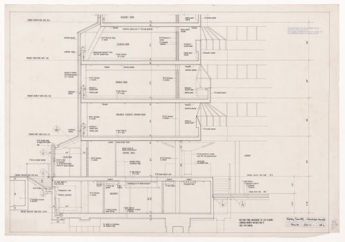
    • Reference Number: AP140.S2.SS1.D26.P1
    • Title: Sections and a plan
    • Dates of creation: 1964
    • Form: drawings
    • Catalogued items within this file 4

    People:

    • James Frazer Stirling (archive creator)

    Quantity / Object type:

    4 working drawing(s)

    Stage and Purpose:

    • working drawings

    Extent and Medium:

    • 4 drawings

    Technique and media:

    Graphite, ink, and grey adhesive film on translucent paper

    Dimensions:

    sheets: 70 x 102 cm

    Credit line:

    James Stirling/Michael Wilford fonds
    Collection Centre Canadien d'Architecture/
    Canadian Centre for Architecture, Montréal

    Folder Number:

    140-0589

    Objects that have been catalogued:

  • Actions:
    See more Close
    • Reference Number: AP140.S2.SS1.D26.P2
    • Title: Elevations, cross sections, and a diagrammatic section for the library reading room's heating and ventilation
    • Form: drawings
    • Catalogued items within this file 6

    People:

    • James Frazer Stirling (archive creator)

    Quantity / Object type:

    6 publication drawing(s)

    Stage and Purpose:

    • publication

    Extent and Medium:

    • 6 drawings

    Technique and media:

    Graphite and ink on translucent paper

    Dimensions:

    sheet (smallest): 26 x 34 cm sheet (largest): 26 x 47 cm

    Physical Description:

    - Each drawing was in a mat stamped "History Building. Cambridge University. 1964-68".

    Credit line:

    James Stirling/Michael Wilford fonds
    Collection Centre Canadien d'Architecture/
    Canadian Centre for Architecture, Montréal

    Folder Number:

    140-0590

    Objects that have been catalogued:

  • Actions:
    See more Close
    • Reference Number: AP140.S2.SS1.D26.P3
    • Title: Axonometrics of the building and of the north entrance ramp and twin canopy
    • Form: drawings
    • Catalogued items within this file 4

    People:

    • Michael Wilford (draughtsman)
    • James Frazer Stirling (archive creator)

    Description:

    axonometrics of the building and of the north entrance ramp and twin canopy, and plan obliques of the library reading room

    Quantity / Object type:

    4 publication drawing(s)

    Stage and Purpose:

    • publication

    Extent and Medium:

    • 4 drawings

    Technique and media:

    Graphite and ink on translucent paper

    Dimensions:

    sheet (smallest): 26 x 26 cm sheet (largest): 29 x 38 cm

    Physical Description:

    - Each drawing was in a mat stamped "History Building. Cambridge University. 1964-68".

    Credit line:

    James Stirling/Michael Wilford fonds
    Collection Centre Canadien d'Architecture/
    Canadian Centre for Architecture, Montréal

    Folder Number:

    140-0591

    Objects that have been catalogued:

  • Actions:
    See more Close
    • Reference Number: AP140.S2.SS1.D26.P4
    • Title: Plans of the ground and first floors
    • Form: drawings
    • Catalogued items within this file 3

    People:

    • James Frazer Stirling (archive creator)

    Quantity / Object type:

    3 publication drawing(s)

    Stage and Purpose:

    • publication

    Extent and Medium:

    • 3 drawings

    Technique and media:

    Graphite and ink on translucent paper

    Dimensions:

    sheet (smallest): 24 x 27 cm sheet (largest): 39 x 45 cm

    Physical Description:

    - Each drawing was in a mat stamped "History Building. Cambridge University. 1964-68".

    Credit line:

    James Stirling/Michael Wilford fonds
    Collection Centre Canadien d'Architecture/
    Canadian Centre for Architecture, Montréal

    Folder Number:

    140-0592

    Objects that have been catalogued:

  • Actions:
    See more Close
    • Reference Number: AP140.S2.SS1.D26.P5
    • Title: Site plan, sections, a partial section, a sectional oblique for part of the roof structure
    • Form: drawings
    • Catalogued items within this file 16

    People:

    • Mary Banham (draughtsman)
    • James Frazer Stirling (archive creator)

    Description:

    site plan, sections, a partial section, a sectional oblique for part of the roof structure, floor plans, a sectional axonometric for the terraces overlooking the entrances, and an axonometric of the north entrance ramp and twin canopy

    Quantity / Object type:

    16 publication drawing(s)

    Stage and Purpose:

    • publication

    Extent and Medium:

    • 16 drawings

    Technique and media:

    Graphite, coloured pencil, and ink on translucent paper

    Dimensions:

    sheet (smallest): 27 x 37 cm sheet (largest): 71 x 76 cm

    Credit line:

    James Stirling/Michael Wilford fonds
    Collection Centre Canadien d'Architecture/
    Canadian Centre for Architecture, Montréal

    Folder Number:

    140-0589

    Objects that have been catalogued:

  • Actions:
    See more Close
    • Reference Number: AP140.S2.SS1.D26.P6
    • Title: Views of working and publication drawings, as well as views of drawings not otherwise present in the project documents
    • Form: photographs
    • Catalogued items within this file 0

    People:

    • James Frazer Stirling (archive creator)

    Description:

    views of working and publication drawings, as well as views of drawings not otherwise present in the project documents, including views of a composite drawing consisting of a mirror image of an east-west cross section, of a caricature of the History Faculty Building by Pedro Gueddes, and of a site plan (that was probably part of the competition entry) showing the library roof oriented towards the south-west, rather than towards the south-east, as in the executed design; includes views of an article by Hugh Brogan in 'The Cambridge Review', 11 October 1968

    Quantity / Object type:

    1 photograph(s)

    Extent and Medium:

    • approximately 50 reprographic copies

    Technique and media:

    Gelatin silver prints

    Credit line:

    James Stirling/Michael Wilford fonds
    Collection Centre Canadien d'Architecture/
    Canadian Centre for Architecture, Montréal

    Folder Number:

    140-0593

  • Actions:
    See more Close
    • Reference Number: AP140.S2.SS1.D26.P7
    • Title: Views of publication drawings including a ground-floor plan
    • Form: photographs
    • Catalogued items within this file 0

    People:

    • James Frazer Stirling (archive creator)

    Description:

    views of publication drawings including a ground-floor plan (not otherwise present in the project documents) showing the circulation patterns of students and "senior members" at the north and south entrances

    Quantity / Object type:

    1 photograph(s)

    Extent and Medium:

    • approximately 40 reprographic copies

    Technique and media:

    Gelatin silver prints

    Credit line:

    James Stirling/Michael Wilford fonds
    Collection Centre Canadien d'Architecture/
    Canadian Centre for Architecture, Montréal

    Folder Number:

    140-0594

  • Actions:
    See more Close
    • Reference Number: AP140.S2.SS1.D26.P8
    • Title: Views of two presentation models
    • Form: photographs
    • Catalogued items within this file 1

    People:

    • Richard Einzig (photographer)
    • John Donat (photographer)
    • Brecht-Einzig (photographic studio)
    • James Frazer Stirling (archive creator)

    Quantity / Object type:

    1 photograph(s)

    Extent and Medium:

    • approximately 80 photographs

    Technique and media:

    Gelatin silver prints

    Credit line:

    James Stirling/Michael Wilford fonds
    Collection Centre Canadien d'Architecture/
    Canadian Centre for Architecture, Montréal

    Folder Number:

    140-0603

    Objects that have been catalogued:

  • Actions:
    See more Close
    • Reference Number: AP140.S2.SS1.D26.P9
    • Title: Views of the building site and of the exterior and interior of the completed building
    • Form: photographs
    • Catalogued items within this file 1

    People:

    • Richard Einzig (photographer)
    • John Donat (photographer)
    • James Frazer Stirling (photographer)
    • Norman R.C. McGrath (photographer)
    • Colin Westwood (photographer)
    • Ezra Stoller (photographer)
    • Ian Nairn (photographer)
    • Brecht-Einzig (photographic studio)
    • James Frazer Stirling (archive creator)

    Description:

    views of the building site and of the exterior and interior of the completed building, including details; includes an aerial view of the site before construction

    Quantity / Object type:

    1 photograph(s)

    Extent and Medium:

    • approximately 100 photographs

    Technique and media:

    Gelatin silver prints and one chromogenic colour print

    Credit line:

    James Stirling/Michael Wilford fonds
    Collection Centre Canadien d'Architecture/
    Canadian Centre for Architecture, Montréal

    Folder Number:

    140-0604

    Objects that have been catalogued:

  • Actions:
    See more Close
    • Reference Number: AP140.S2.SS1.D26.P10
    • Title: Views of the exterior and interior of the completed building
    • Form: photographs
    • Catalogued items within this file 3

    People:

    • Richard Einzig (photographer)
    • John Donat (photographer)
    • James Frazer Stirling (photographer)
    • Norman R.C. McGrath (photographer)
    • Colin Westwood (photographer)
    • Brecht-Einzig (photographic studio)
    • James Frazer Stirling (archive creator)

    Description:

    views of the exterior and interior of the completed building, including details; includes one view of a presentation model and views of James Stirling in the building

    Quantity / Object type:

    1 photograph(s)

    Extent and Medium:

    • approximately 80 photographs

    Technique and media:

    Gelatin silver prints

    Credit line:

    James Stirling/Michael Wilford fonds
    Collection Centre Canadien d'Architecture/
    Canadian Centre for Architecture, Montréal

    Folder Number:

    140-0605

    Objects that have been catalogued:

  • Actions:
    See more Close
    • Reference Number: AP140.S2.SS1.D26.P11
    • Title: Portraits of James Stirling at the building site
    • Form: photographs
    • Catalogued items within this file 1

    People:

    • James Frazer Stirling (archive creator)

    Quantity / Object type:

    24 photograph(s)

    Extent and Medium:

    • 24 photographs

    Technique and media:

    Gelatin silver prints

    Dimensions:

    sheets: 21 x 17 cm

    Credit line:

    James Stirling/Michael Wilford fonds
    Collection Centre Canadien d'Architecture/
    Canadian Centre for Architecture, Montréal

    Folder Number:

    140-0595

    Objects that have been catalogued:

  • Actions:
    See more Close
    • Reference Number: AP140.S2.SS1.D26.P12
    • Title: Portraits of James Stirling at the building site
    • Form: photographs
    • Catalogued items within this file 0

    People:

    • James Frazer Stirling (archive creator)

    Quantity / Object type:

    2 photograph(s)

    Extent and Medium:

    • 2 photographs

    Technique and media:

    Gelatin silver prints

    Dimensions:

    sheets: 33 x 25 cm

    Credit line:

    James Stirling/Michael Wilford fonds
    Collection Centre Canadien d'Architecture/
    Canadian Centre for Architecture, Montréal

    Folder Number:

    140-0596

  • Actions:
    See more Close
    • Reference Number: AP140.S2.SS1.D26.P13
    • Title: Views of the building site and of the exterior and interior of the completed building, including details
    • Form: photographs
    • Catalogued items within this file 5

    People:

    • Richard Einzig (photographer)
    • John Donat (photographer)
    • James Frazer Stirling (photographer)
    • Norman R.C. McGrath (photographer)
    • Brecht-Einzig (photographic studio)
    • James Frazer Stirling (archive creator)

    Description:

    views of the building site and of the exterior and interior of the completed building, including details; includes a view of an article by Hugh Brogan in 'The Cambridge Review', 11 October 1968, and a postcard of a Ben Johnson screen print depicting the building

    Quantity / Object type:

    1 photograph(s)

    Extent and Medium:

    • approximately 80 photographs

    Technique and media:

    Gelatin silver prints

    Credit line:

    James Stirling/Michael Wilford fonds
    Collection Centre Canadien d'Architecture/
    Canadian Centre for Architecture, Montréal

    Folder Number:

    140-0606

    Objects that have been catalogued:

  • Actions:
    See more Close
    • Reference Number: AP140.S2.SS1.D26.P14
    • Title: Views of the exterior and interior of the completed building
    • Form: photographs
    • Catalogued items within this file 4

    People:

    • Richard Einzig (photographer)
    • John Donat (photographer)
    • James Frazer Stirling (photographer)
    • Norman R.C. McGrath (photographer)
    • Colin Westwood (photographer)
    • Brecht-Einzig (photographic studio)
    • James Frazer Stirling (archive creator)

    Description:

    views of the exterior and interior of the completed building, including details. Includes views of James Stirling in the building

    Quantity / Object type:

    1 photograph(s)

    Extent and Medium:

    • approximately 100 photographs

    Technique and media:

    Gelatin silver prints

    Physical Description:

    - One photograph is mounted on cardboard.

    Credit line:

    James Stirling/Michael Wilford fonds
    Collection Centre Canadien d'Architecture/
    Canadian Centre for Architecture, Montréal

    Folder Number:

    140-0607

    Objects that have been catalogued:

  • Actions:
    See more Close
    • Reference Number: AP140.S2.SS1.D26.P15
    • Title: Views of the exterior and interior of the completed building
    • Form: photographs
    • Catalogued items within this file 0

    People:

    • Norman R.C. McGrath (photographer)
    • James Frazer Stirling (archive creator)

    Quantity / Object type:

    1 photograph(s)

    Extent and Medium:

    • approximately 80 photographs

    Technique and media:

    Gelatin silver prints

    Credit line:

    James Stirling/Michael Wilford fonds
    Collection Centre Canadien d'Architecture/
    Canadian Centre for Architecture, Montréal

    Folder Number:

    140-0608

  • Actions:
    See more Close
    • Reference Number: AP140.S2.SS1.D26.P16
    • Title: Views of the exterior and interior of the completed building
    • Form: photographs
    • Catalogued items within this file 6

    People:

    • Richard Einzig (photographer)
    • Ezra Stoller (photographer)
    • Brecht-Einzig (photographic studio)
    • James Frazer Stirling (archive creator)

    Quantity / Object type:

    1 photograph(s)

    Extent and Medium:

    • Approximately 6 photographs

    Technique and media:

    Gelatin silver prints

    Dimensions:

    photographic materials: 0.01 l.m.

    Credit line:

    James Stirling/Michael Wilford fonds
    Collection Centre Canadien d'Architecture/
    Canadian Centre for Architecture, Montréal

    Folder Number:

    140-0597

    Objects that have been catalogued:

  • Actions:
    See more Close
    • Reference Number: AP140.S2.SS1.D26.P17
    • Title: Interior view of the roof of the completed library reading room
    • Form: photographs
    • Catalogued items within this file 0

    People:

    • Brecht-Einzig (photographic studio)
    • James Frazer Stirling (archive creator)

    Quantity / Object type:

    1 photograph(s)

    Extent and Medium:

    • 1 photograph

    Technique and media:

    Gelatin silver print

    Dimensions:

    sheet: 113 x 92 x 3 cm

    Physical Description:

    - Photograph is mounted on hardboard attached to a wooden cradle.

    Credit line:

    James Stirling/Michael Wilford fonds
    Collection Centre Canadien d'Architecture/
    Canadian Centre for Architecture, Montréal

    Folder Number:

    140-0611

  • Actions:
    See more Close
    • Reference Number: AP140.S2.SS1.D26.P18
    • Title: Interior view of the roof of the library reading room, History Faculty Building, University of Cambridge, Cambridge, England
    • Dates of creation: 1968?
    • Form: photographs
    • Catalogued items within this file 1

    People:

    • Richard Einzig (photographer)
    • James Stirling (Firm) (architectural firm)
    • James Frazer Stirling (archive creator)

    Description:

    interior view of the roof of the completed library reading room

    Quantity / Object type:

    1 photograph(s)

    Extent and Medium:

    • 1 photograph

    Dimensions:

    sheet: 39 x 29 cm

    Credit line:

    James Stirling/Michael Wilford fonds
    Collection Centre Canadien d'Architecture/
    Canadian Centre for Architecture, Montréal

    Copyright:

    © Richard Einzig/Arcaid

    Folder Number:

    140-0612

    Objects that have been catalogued:

  • Actions:
    See more Close
    • Reference Number: AP140.S2.SS1.D26.P19
    • Title: Views of the exterior and interior of the completed building; includes one view of James Stirling in the building
    • Form: photographs
    • Catalogued items within this file 0

    People:

    • Richard Einzig (photographer)
    • James Frazer Stirling (archive creator)

    Quantity / Object type:

    11 photograph(s)

    Extent and Medium:

    • 11 photographs

    Technique and media:

    Chromogenic colour prints

    Dimensions:

    sheets: 12 x 10 cm

    Credit line:

    James Stirling/Michael Wilford fonds
    Collection Centre Canadien d'Architecture/
    Canadian Centre for Architecture, Montréal

    Folder Number:

    140-0609

  • Actions:
    See more Close
    • Reference Number: AP140.S2.SS1.D26.P20
    • Title: Views of damage and repair work on the brick end walls
    • Dates of creation: 1984
    • Form: photographs
    • Catalogued items within this file 0

    People:

    • Richard Einzig (photographer)
    • John Donat (photographer)
    • James Frazer Stirling (photographer)
    • Norman R.C. McGrath (photographer)
    • Brecht-Einzig (photographic studio)
    • James Frazer Stirling (archive creator)

    Quantity / Object type:

    1 photograph(s)

    Extent and Medium:

    • approximately 20 photographic materials

    Technique and media:

    Chromogenic colour prints

    Credit line:

    James Stirling/Michael Wilford fonds
    Collection Centre Canadien d'Architecture/
    Canadian Centre for Architecture, Montréal

    Folder Number:

    140-0610

  • Actions:
    See more Close
    • Reference Number: AP140.S2.SS1.D26.P21
    • Title: Views of a presentation model and of the exterior and interior of the completed building
    • Dates of creation: 1980
    • Form: photographs
    • Catalogued items within this file 0

    People:

    • Richard Einzig (photographer)
    • John Donat (photographer)
    • James Frazer Stirling (photographer)
    • James Frazer Stirling (archive creator)

    Description:

    views of a presentation model and of the exterior and interior of the completed building, portraits of James Stirling at the building site and views of building defects and remedial work

    Quantity / Object type:

    1 photographic material(s)

    Extent and Medium:

    • approximately 50 photographic materials

    Technique and media:

    Colour slides, colour transparencies, colour negatives, and black-and-white negatives

    Credit line:

    James Stirling/Michael Wilford fonds
    Collection Centre Canadien d'Architecture/
    Canadian Centre for Architecture, Montréal

    Folder Number:

    140-0598

  • Actions:
    See more Close
    • Reference Number: AP140.S2.SS1.D26.P22
    • Title: Views of building defects and remedial work
    • Dates of creation: between 1967 and 1972
    • Form: photographs
    • Catalogued items within this file 0

    People:

    • Edward Leigh (photographer)
    • James Frazer Stirling (archive creator)

    Quantity / Object type:

    1 photographic material(s)

    Extent and Medium:

    • approximately 50 photographic materials

    Technique and media:

    Gelatin silver prints, colour slides, and negatives

    Physical Description:

    Most of the prints have punched holes through which they are loosely bound by short lengths of string.

    Credit line:

    James Stirling/Michael Wilford fonds
    Collection Centre Canadien d'Architecture/
    Canadian Centre for Architecture, Montréal

    Folder Number:

    140-0599

  • Actions:
    See more Close
    • Reference Number: AP140.S2.SS1.D26.P23
    • Title: Views of building defects and remedial work, including many details
    • Form: photographs
    • Catalogued items within this file 0

    People:

    • James Frazer Stirling (archive creator)

    Quantity / Object type:

    1 photographic material(s)

    Extent and Medium:

    • Approximately 9 photographic material

    Technique and media:

    Gelatin silver prints and negatives

    Dimensions:

    photographic materials: 0.03 l.m.

    Credit line:

    James Stirling/Michael Wilford fonds
    Collection Centre Canadien d'Architecture/
    Canadian Centre for Architecture, Montréal

    Folder Number:

    140-0600

  • Actions:
    See more Close
    • Reference Number: AP140.S2.SS1.D26.P24
    • Title: Views of a presentation model and of working and publication drawings, as well as views of drawings not otherwise present in the project documents
    • Form: photographs
    • Catalogued items within this file 0

    People:

    • James Frazer Stirling (archive creator)

    Description:

    views of a presentation model and of working and publication drawings, as well as views of drawings not otherwise present in the project documents, including views of an incomplete set of numbered and revised working drawings, of a ground-floor plan showing the circulation patterns of students and "senior members" at the north and south entrances, of a composite drawing consisting of a mirror image of an east-west cross section, and of a site plan (that was probably part of the competition entry) showing the library roof oriented towards the south-west, rather than towards the south-east, as in the executed design. Includes views of an article by Hugh Brogan in 'The Cambridge Review', 11 October 1968; also one portrait of a woman

    Quantity / Object type:

    1 negative(s)

    Extent and Medium:

    • approximately 50 photographic materials

    Credit line:

    James Stirling/Michael Wilford fonds
    Collection Centre Canadien d'Architecture/
    Canadian Centre for Architecture, Montréal

    Folder Number:

    140-0601

  • Actions:
    See more Close
    • Reference Number: AP140.S2.SS1.D26.P25
    • Title: Views of the exterior and interior of the completed building
    • Form: photographs
    • Catalogued items within this file 0

    People:

    • James Frazer Stirling (photographer)
    • James Frazer Stirling (archive creator)

    Description:

    views of the exterior and interior of the completed building, including details, as well as views of presentation models, including one view of a model of the roof structure which is not otherwise present in the project documents

    Quantity / Object type:

    1 negative(s)

    Extent and Medium:

    • approximately 80 photographic materials

    Credit line:

    James Stirling/Michael Wilford fonds
    Collection Centre Canadien d'Architecture/
    Canadian Centre for Architecture, Montréal

    Folder Number:

    140-0602

  • Actions:
    See more Close
    • Reference Number: AP140.S2.SS1.D26.P26
    • Title: Views of working and publication drawings
    • Form: photographs
    • Catalogued items within this file 9

    People:

    • James Frazer Stirling (archive creator)

    Description:

    views of working and publication drawings, several views of a caricature of the History Faculty Building by Pedro Gueddes

    Quantity / Object type:

    9 negative(s)

    Extent and Medium:

    • 9 negatives

    Technique and media:

    Glass negatives

    Dimensions:

    sheets (smallest): 12 x 17 cm sheets (largest): 17 x 22 cm

    Physical Description:

    Glass negatives. Some of the plates were treated by Conservation to remove tape. Manipulate with care.

    Credit line:

    James Stirling/Michael Wilford fonds
    Collection Centre Canadien d'Architecture/
    Canadian Centre for Architecture, Montréal

    Folder Number:

    140-0613

    Objects that have been catalogued:

  • Actions:
    See more Close
    • Reference Number: AP140.S2.SS1.D26.P27
    • Title: Architect's statement explaining the site and the features of the building
    • Form: textual records
    • Catalogued items within this file 0

    People:

    • James Frazer Stirling (archive creator)

    Description:

    7-page document including the architect's statement explaining the site and the features of the building, a statement from the structural engineer explaining the building's three interdependent structural elements, and a statement from the services engineers explaining the heating, ventilation and lighting installations of the building; document includes handwritten underlining, corrections and changes

    Quantity / Object type:

    1 architect's statement(s)

    Extent and Medium:

    • 0.01 l. m. of textual records

    Technique and media:

    Typescript and ink

    Dimensions:

    sheets: 33 x 21 cm

    Document Type:

    • architect's statement

    Physical Description:

    - The seven pages of the document are stapled together at one corner.

    Credit line:

    James Stirling/Michael Wilford fonds
    Collection Centre Canadien d'Architecture/
    Canadian Centre for Architecture, Montréal

    Folder Number:

    140-0614

  • Actions:
    See more Close
    • Reference Number: AP140.S2.SS1.D26.P28
    • Title: Administrative records, correspondence and notes relating to photographic services
    • Dates of creation: 1968
    • Form: textual records
    • Catalogued items within this file 0

    People:

    • James Frazer Stirling (archive creator)

    Description:

    administrative records, correspondence and notes relating to photographic services, a few clippings, and several photocopies of photographs of the History Faculty Building

    Quantity / Object type:

    25 textual record(s)

    Extent and Medium:

    • 0.02 l. m. of textual records

    Dimensions:

    sheets (smallest): 4 x 5 cm sheets (largest): 30 x 21 cm

    Document Type:

    • correspondence

    Physical Description:

    - Eight of the photocopies are stapled together at one corner.

    Credit line:

    James Stirling/Michael Wilford fonds
    Collection Centre Canadien d'Architecture/
    Canadian Centre for Architecture, Montréal

    Folder Number:

    140-0615

  • Actions:
    See more Close
    • Reference Number: AP140.S2.SS1.D26.P29
    • Title: Caricature of James Stirling with an umbrella in the History Faculty Building, University of Cambridge
    • Dates of creation: 1968
    • Form: drawings
    • Catalogued items within this file 1

    People:

    • Unknown (artist)
    • James Frazer Stirling (archive creator)

    Description:

    caricature of James Stirling with an umbrella in the History Faculty Building; the caricature is also included with material relating to the Leicester University Engineering Building (AP140.S2.SS1.D23.P21)

    Quantity / Object type:

    1 drawing(s)

    Extent and Medium:

    • 1 drawing

    Dimensions:

    comp.: 26 x 20 cm sheet: 26 x 39 cm

    Physical Description:

    The caricature is on one half of a folded sheet of construction paper.

    Credit line:

    James Stirling/Michael Wilford fonds
    Collection Centre Canadien d'Architecture/
    Canadian Centre for Architecture, Montréal

    Copyright:

    © RCM, 1968

    Folder Number:

    140-0552

    Objects that have been catalogued:

  • Actions:
    See more Close
    • Reference Number: AP140.S2.SS1.D26.P30
    • Title: Presentation model, History Faculty Building, University of Cambridge, Cambridge, England
    • Dates of creation: 1963
    • Form: models
    • Catalogued items within this file 1

    People:

    • James Stirling (Firm) (architectural firm)
    • Michael Wilford (associated architect)
    • James Frazer Stirling (archive creator)

    Description:

    model shows the site and immediate surroundings of the History Faculty Building, and interior elements including the library mezzanine and the galleries and escape stairs of the L-shaped block; the model was part of the 1963 competition entry, and shows the library roof oriented towards the south-west, rather than towards the south-east, as in the executed design; also shows a different design for the terrace to the north, and for the stairs flanking the brick end walls

    Quantity / Object type:

    1 presentation model(s)

    Stage and Purpose:

    • presentation model

    Extent and Medium:

    • 1 model

    Technique and media:

    Wood, plastic, graphite and metal

    Dimensions:

    model (largest): 57 x 67 x 15 cm

    Physical Description:

    - Base of the model is surrounded by a metallic frame

    Credit line:

    James Stirling/Michael Wilford fonds
    Collection Centre Canadien d'Architecture/
    Canadian Centre for Architecture, Montréal

    Copyright:

    © CCA

    Objects that have been catalogued:

  • Actions:
    See more Close
    • Reference Number: AP140.S2.SS1.D26.P31
    • Title: Presentation model for the History Faculty Building, University of Cambridge, displayed in the exhibition Architecture I (1977) at Leo Castelli Gallery
    • Dates of creation: 1963 - 1967
    • Form: models
    • Catalogued items within this file 1

    People:

    • Julian Harrap (model maker)
    • James Stirling (Firm) (architectural firm)
    • Michael Wilford (associated architect)
    • James Frazer Stirling (archive creator)

    Description:

    model shows the History Faculty Building, and interior elements including the library mezzanine and the galleries and escape stairs of the L-shaped block

    Quantity / Object type:

    1 presentation model(s)

    Stage and Purpose:

    • presentation model

    Extent and Medium:

    • 1 model

    Dimensions:

    model (largest): 51.4 x 100 x 79.8 cm

    Credit line:

    James Stirling/Michael Wilford fonds
    Collection Centre Canadien d'Architecture/
    Canadian Centre for Architecture, Montréal

    Copyright:

    © CCA

    Objects that have been catalogued:

      • AP140.S2.SS1.D26.P31.1
      • Presentation model for the History Faculty Building, University of Cambridge, displayed in the exhibition Architecture I (1977) at Leo Castelli Gallery
      • Form: models
      • Add to folder
  • Actions:
    See more Close
    • Reference Number: AP140.S2.SS1.D26.P32
    • Title: Origami model of the History Faculty Building, University of Cambridge, England
    • Dates of creation: 1981-2000
    • Form: models
    • Catalogued items within this file 1

    People:

    • Masahiro Chatani (model maker)
    • James Stirling (Firm) (architectural firm)
    • James Frazer Stirling (archive creator)

    Quantity / Object type:

    1 presentation model(s)

    Extent and Medium:

    • 1 model

    Dimensions:

    model (open): 10 x 15 x 10 cm model (closed): 10 x 15 cm

    Credit line:

    James Stirling/Michael Wilford fonds
    Collection Centre Canadien d'Architecture/
    Canadian Centre for Architecture, Montréal;
    Legs de la famille Stirling/
    Bequest of the Stirling family

    Folder Number:

    140-0616

    Objects that have been catalogued:

  • Actions:
    See more Close
    • Reference Number: AP140.S2.SS1.D26.P33
    • Title: Printing plate for a publication drawing
    • Catalogued items within this file 0

    People:

    • James Frazer Stirling (archive creator)

    Quantity / Object type:

    1 printing plate(s)

    Extent and Medium:

    • 1 artefact

    Technique and media:

    Metal

    Dimensions:

    plate (irreg.): 10 x 7 x 2 cm

    Credit line:

    James Stirling/Michael Wilford fonds
    Collection Centre Canadien d'Architecture/
    Canadian Centre for Architecture, Montréal;
    Legs de la famille Stirling/
    Bequest of the Stirling family

    Folder Number:

    140-0641

  • Actions:
    See more Close
    • Reference Number: AP140.S2.SS1.D26.P35
    • Title: Plans, sections and details
    • Form: drawings
    • Catalogued items within this file 0

    People:

    • James Frazer Stirling (archive creator)

    Quantity / Object type:

    1 roll(s)

    Stage and Purpose:

    • reference

    Extent and Medium:

    • 1 roll

    Technique and media:

    Reprographic copies with ink

    Physical Description:

    reprographic copies with ink

    Credit line:

    James Stirling/Michael Wilford fonds
    Collection Centre Canadien d'Architecture/
    Canadian Centre for Architecture, Montréal

  • Actions:
    See more Close
    • Reference Number: AP140.S2.SS1.D26.P36
    • Title: Details for glazing
    • Form: drawings
    • Catalogued items within this file 0

    People:

    • James Frazer Stirling (archive creator)

    Quantity / Object type:

    1 roll(s)

    Stage and Purpose:

    • reference

    Extent and Medium:

    • 1 roll

    Technique and media:

    Reprographic copies with ink

    Physical Description:

    reprographic copies with ink

    Credit line:

    James Stirling/Michael Wilford fonds
    Collection Centre Canadien d'Architecture/
    Canadian Centre for Architecture, Montréal

  • Actions:
    See more Close
    • Reference Number: AP140.S2.SS1.D26.P37
    • Title: Plans, sections and details for structure
    • Form: drawings
    • Catalogued items within this file 0

    People:

    • James Frazer Stirling (archive creator)

    Quantity / Object type:

    1 roll(s)

    Stage and Purpose:

    • reference

    Extent and Medium:

    • 1 roll

    Credit line:

    James Stirling/Michael Wilford fonds
    Collection Centre Canadien d'Architecture/
    Canadian Centre for Architecture, Montréal

  • Actions:
    See more Close
    • Reference Number: AP140.S2.SS1.D26.P38
    • Title: Plans and details for structure, including foundation and piling layouts, structural steelwork
    • Form: drawings
    • Catalogued items within this file 0

    People:

    • James Frazer Stirling (archive creator)

    Quantity / Object type:

    1 roll(s)

    Stage and Purpose:

    • reference

    Extent and Medium:

    • 1 roll

    Technique and media:

    Reprographic copies with graphite and ink

    Physical Description:

    reprographic copies with graphite and ink

    Credit line:

    James Stirling/Michael Wilford fonds
    Collection Centre Canadien d'Architecture/
    Canadian Centre for Architecture, Montréal

  • Actions:
    See more Close
    • Reference Number: AP140.S2.SS1.D26.P39
    • Title: Plans, interior elevations, sections, axonometrics and details, including for glazing, History Faculty Building, University of Cambridge, Competition and Construction, Cambridge, England, United Kingdom
    • Dates of creation: circa 1962-1968
    • Form: drawings
    • Catalogued items within this file 0

    People:

    • James Frazer Stirling (archive creator)

    Quantity / Object type:

    1 file

    Stage and Purpose:

    • reference

    Extent and Medium:

    • 1 roll of drawings

    Arrangement:

    This material was originally part of a bigger group that was separated for preservation reasons. See also AP140.S2.SS1.D26.P55 for the other part of the original group.

    Credit line:

    James Stirling/Michael Wilford fonds
    Collection Centre Canadien d'Architecture/
    Canadian Centre for Architecture, Montréal

  • Actions:
    See more Close
    • Reference Number: AP140.S2.SS1.D26.P40
    • Title: Plans, sections and details, including for travelling ladder for window cleaning
    • Form: drawings
    • Catalogued items within this file 0

    People:

    • James Frazer Stirling (archive creator)

    Quantity / Object type:

    1 roll(s)

    Stage and Purpose:

    • reference

    Extent and Medium:

    • 1 roll

    Technique and media:

    Reprographic copies with ink

    Physical Description:

    reprographic copies with ink

    Credit line:

    James Stirling/Michael Wilford fonds
    Collection Centre Canadien d'Architecture/
    Canadian Centre for Architecture, Montréal

  • Actions:
    See more Close
    • Reference Number: AP140.S2.SS1.D26.P41
    • Title: Floor plans, details and schedules
    • Form: drawings
    • Catalogued items within this file 0

    People:

    • James Frazer Stirling (archive creator)

    Quantity / Object type:

    1 roll(s)

    Stage and Purpose:

    • reference

    Extent and Medium:

    • 1 roll

    Technique and media:

    Reprographic copies with ink

    Credit line:

    James Stirling/Michael Wilford fonds
    Collection Centre Canadien d'Architecture/
    Canadian Centre for Architecture, Montréal

  • Actions:
    See more Close
    • Reference Number: AP140.S2.SS1.D26.P42
    • Title: Details, including for glazing
    • Form: drawings
    • Catalogued items within this file 0

    People:

    • James Frazer Stirling (archive creator)

    Quantity / Object type:

    1 roll(s)

    Stage and Purpose:

    • reference

    Extent and Medium:

    • 1 roll

    Technique and media:

    Working drawing(s) reprographic copies with ink and coloured pencil to be completed details, including for glazing

    Physical Description:

    reprographic copies with ink and coloured pencil

    Credit line:

    James Stirling/Michael Wilford fonds
    Collection Centre Canadien d'Architecture/
    Canadian Centre for Architecture, Montréal

  • Actions:
    See more Close
    • Reference Number: AP140.S2.SS1.D26.P43
    • Title: Site plan, plans, sections and details, including for built-in furniture, schedules
    • Form: drawings
    • Catalogued items within this file 0

    People:

    • James Frazer Stirling (archive creator)

    Quantity / Object type:

    1 roll(s)

    Stage and Purpose:

    • reference

    Extent and Medium:

    • 1 roll

    Technique and media:

    Reprographic copies with ink and coloured pencil

    Physical Description:

    reprographic copies with ink and coloured pencil

    Credit line:

    James Stirling/Michael Wilford fonds
    Collection Centre Canadien d'Architecture/
    Canadian Centre for Architecture, Montréal

  • Actions:
    See more Close
    • Reference Number: AP140.S2.SS1.D26.P44
    • Title: Plans and details for glazing
    • Form: drawings
    • Catalogued items within this file 0

    People:

    • James Frazer Stirling (archive creator)

    Quantity / Object type:

    1 roll(s)

    Stage and Purpose:

    • reference

    Extent and Medium:

    • 1 roll

    Technique and media:

    Reprographic copies with ink and coloured pencil

    Physical Description:

    reprographic copies with ink and coloured pencil

    Credit line:

    James Stirling/Michael Wilford fonds
    Collection Centre Canadien d'Architecture/
    Canadian Centre for Architecture, Montréal

  • Actions:
    See more Close
    • Reference Number: AP140.S2.SS1.D26.P45
    • Title: Plans, elevations, sections, details, some for glazing, progress schedules
    • Form: drawings
    • Catalogued items within this file 0

    People:

    • James Frazer Stirling (archive creator)

    Quantity / Object type:

    1 roll(s)

    Stage and Purpose:

    • reference

    Extent and Medium:

    • 1 roll

    Technique and media:

    Reprographic copies, some with ink

    Physical Description:

    reprographic copies, some with ink

    Credit line:

    James Stirling/Michael Wilford fonds
    Collection Centre Canadien d'Architecture/
    Canadian Centre for Architecture, Montréal

  • Actions:
    See more Close
    • Reference Number: AP140.S2.SS1.D26.P46
    • Title: Plans, sections and details, including for structural steelwork, glazed roof
    • Form: drawings
    • Catalogued items within this file 0

    People:

    • James Frazer Stirling (archive creator)

    Quantity / Object type:

    1 roll(s)

    Stage and Purpose:

    • reference

    Extent and Medium:

    • 1 roll

    Technique and media:

    Reprographic copies with ink

    Physical Description:

    reprographic copies with ink

    Credit line:

    James Stirling/Michael Wilford fonds
    Collection Centre Canadien d'Architecture/
    Canadian Centre for Architecture, Montréal

  • Actions:
    See more Close
    • Reference Number: AP140.S2.SS1.D26.P47
    • Title: Plans, sections and details, including for HVAC, fire protection systems
    • Form: drawings
    • Catalogued items within this file 0

    People:

    • James Frazer Stirling (archive creator)

    Quantity / Object type:

    1 roll(s)

    Stage and Purpose:

    • reference

    Extent and Medium:

    • 1 roll

    Technique and media:

    Reprographic copies with ink

    Physical Description:

    reprographic copies with ink

    Credit line:

    James Stirling/Michael Wilford fonds
    Collection Centre Canadien d'Architecture/
    Canadian Centre for Architecture, Montréal

  • Actions:
    See more Close
    • Reference Number: AP140.S2.SS1.D26.P48
    • Title: Plans and details, including for railings, lighting systems and doors, door schedules
    • Form: drawings
    • Catalogued items within this file 0

    People:

    • James Frazer Stirling (archive creator)

    Quantity / Object type:

    1 roll(s)

    Stage and Purpose:

    • reference

    Extent and Medium:

    • 1 roll

    Technique and media:

    Reprographic copies with ink and coloured pencil

    Physical Description:

    reprographic copies with ink and coloured pencil

    Credit line:

    James Stirling/Michael Wilford fonds
    Collection Centre Canadien d'Architecture/
    Canadian Centre for Architecture, Montréal

  • Actions:
    See more Close
    • Reference Number: AP140.S2.SS1.D26.P49
    • Title: Plans and details, including for reinforced concrete structure and gutters
    • Form: drawings
    • Catalogued items within this file 0

    People:

    • James Frazer Stirling (archive creator)

    Quantity / Object type:

    1 roll(s)

    Stage and Purpose:

    • reference

    Extent and Medium:

    • 1 roll

    Technique and media:

    Reprographic copies with ink

    Physical Description:

    reprographic copies with ink

    Credit line:

    James Stirling/Michael Wilford fonds
    Collection Centre Canadien d'Architecture/
    Canadian Centre for Architecture, Montréal

  • Actions:
    See more Close
    • Reference Number: AP140.S2.SS1.D26.P50
    • Title: Plans, sections for staircases, details
    • Form: drawings
    • Catalogued items within this file 0

    People:

    • James Frazer Stirling (archive creator)

    Quantity / Object type:

    1 roll(s)

    Stage and Purpose:

    • reference

    Extent and Medium:

    • 1 roll

    Technique and media:

    Reprographic copies, some with ink

    Physical Description:

    reprographic copies, some with ink

    Credit line:

    James Stirling/Michael Wilford fonds
    Collection Centre Canadien d'Architecture/
    Canadian Centre for Architecture, Montréal

  • Actions:
    See more Close
    • Reference Number: AP140.S2.SS1.D26.P51
    • Title: Details, including for built-in furniture
    • Form: drawings
    • Catalogued items within this file 0

    People:

    • James Frazer Stirling (archive creator)

    Quantity / Object type:

    1 roll(s)

    Stage and Purpose:

    • reference

    Extent and Medium:

    • 1 roll

    Technique and media:

    Reprographic copies with ink

    Physical Description:

    reprographic copies with ink

    Credit line:

    James Stirling/Michael Wilford fonds
    Collection Centre Canadien d'Architecture/
    Canadian Centre for Architecture, Montréal

  • Actions:
    See more Close
    • Reference Number: AP140.S2.SS1.D26.P52
    • Title: Plans, sections and details, including for reinforced concrete structure
    • Form: drawings
    • Catalogued items within this file 0

    People:

    • James Frazer Stirling (archive creator)

    Quantity / Object type:

    1 roll(s)

    Stage and Purpose:

    • reference

    Extent and Medium:

    • 1 roll

    Technique and media:

    Reprographic copies, some with ink and coloured pencil

    Physical Description:

    reprographic copies, some with ink and coloured pencil

    Credit line:

    James Stirling/Michael Wilford fonds
    Collection Centre Canadien d'Architecture/
    Canadian Centre for Architecture, Montréal

  • Actions:
    See more Close
    • Reference Number: AP140.S2.SS1.D26.P53
    • Title: Details, including for hardware, doors, lifts, shutters
    • Form: drawings
    • Catalogued items within this file 0

    People:

    • James Frazer Stirling (archive creator)

    Quantity / Object type:

    1 roll(s)

    Stage and Purpose:

    • reference

    Extent and Medium:

    • 1 roll

    Technique and media:

    Reprographic copies, some with ink

    Physical Description:

    reprographic copies, some with ink

    Credit line:

    James Stirling/Michael Wilford fonds
    Collection Centre Canadien d'Architecture/
    Canadian Centre for Architecture, Montréal

  • Actions:
    See more Close
    • Reference Number: AP140.S2.SS1.D26.P55
    • Title: Plans, interior elevations, sections, axonometrics and details, History Faculty Building, University of Cambridge, Competition and Construction, Cambridge, England, United Kingdom
    • Dates of creation: circa 1962-1968
    • Form: drawings
    • Catalogued items within this file 0

    People:

    • James Frazer Stirling (archive creator)

    Quantity / Object type:

    1 file

    Stage and Purpose:

    • reference

    Extent and Medium:

    • 1 roll of drawings

    Arrangement:

    This material was originally part of a bigger group that was separated for preservation reasons. See also AP140.S2.SS1.D26.P39 for the other part of the original group.

    Conditions governing access:

    • This material cannot the consulted for preservation reasons, conact ref@cca.qc.ca for more information.

    Credit line:

    James Stirling/Michael Wilford fonds
    Collection Centre Canadien d'Architecture/
    Canadian Centre for Architecture, Montréal

1
1

Sign up to get news from us

Email address
First name
Last name
By signing up you agree to receive our newsletter and communications about CCA activities. You can unsubscribe at any time. For more information, consult our privacy policy or contact us.

Thank you for signing up. You'll begin to receive emails from us shortly.

We’re not able to update your preferences at the moment. Please try again later.

You’ve already subscribed with this email address. If you’d like to subscribe with another, please try again.

This email was permanently deleted from our database. If you’d like to resubscribe with this email, please contact us

Please complete the form below to buy:
[Title of the book, authors]
ISBN: [ISBN of the book]
Price [Price of book]

First name
Last name
Address (line 1)
Address (line 2) (optional)
Postal code
City
Country
Province/state
Email address
Phone (day) (optional)
Notes

Thank you for placing an order. We will contact you shortly.

We’re not able to process your request at the moment. Please try again later.

Folder ()

Your folder is empty.

Email:
Subject:
Notes:
Please complete this form to make a request for consultation. A copy of this list will also be forwarded to you.

Your contact information
First name:
Last name:
Email:
Phone number:
Notes (optional):
We will contact you to set up an appointment. Please keep in mind that your consultation date will be based on the type of material you wish to study. To prepare your visit, we'll need:
  • — At least 2 weeks for primary sources (prints and drawings, photographs, archival documents, etc.)
  • — At least 48 hours for secondary sources (books, periodicals, vertical files, etc.)
...