1
1

Flats at Ham Common

Flats at Ham Common

Inclus dans

Personnes et institutions

  • Stirling and Gowan (creator)
  • Stirling and Gowan (architectural firm)
  • David Walsby (architect)
  • James Frazer Stirling (archive creator)

Titre

Flats at Ham Common

Dates de création

circa 1955-1959

Niveau de description archivistique

File 10

Collation

  • approximately 392 photographic materials
  • 13 drawings
  • 1 textual document

Présentation du contenu

File documents an executed project (1955-1958) for a private housing development in London, England, United Kingdom. File also documents an unexecuted project (1957) for an extension to the housing development. Material in this file was produced between 1955 and 1959, and probably after.

File contains a design drawing, presentation drawings, photographic materials, and textual records.

Numéro de réference

AP140.S2.SS1.D10

Mode de classement

Material in this project series was likely kept in its original order when it was first processed upon its arrival at CCA.

Localisation

Ham Richmond upon Thames Greater London Angleterre Royaume-Uni

Langue et écriture des documents

Documents are in English and German.

Sources complémentaires

  • Photographic materials AP140.S2.SS7.D2.P7, AP140.S2.SS7.D1.P4, and AP140.S2.SS7.D1.P15 also include information on file AP140.S2.SS1.D10.

Note générale

  • Several of the presentation and publication drawings for the project appeared in periodicals and books from the time of the flats at Langham House Close completion.

Inventaire

Trier par: 

  • Voir plus Fermer
    • Numéro de réference: AP140.S2.SS1.D10.P1
    • Titre: Site plan and elevation, Flats at Ham Common, London, England
    • Dates de création: 1955-1958
    • Classification: dessins
    • Objets catalogués : 1

    Personnes et institutions:

    • Stirling and Gowan (architectural firm)
    • James Frazer Stirling (archive creator)

    Description:

    schematic drawing showing an earlier proposal for the site plan and elevation

    Quantité / Type d’objet:

    1 File

    Étape et objectif:

    • design drawing

    Collation:

    • 1 drawing

    Dimensions:

    sheet (approx.): 38 x 83 cm

    Mention de crédit:

    James Stirling/Michael Wilford fonds
    Collection Centre Canadien d'Architecture/
    Canadian Centre for Architecture, Montréal

    Numéro de chemise:

    140-0468

    Objets catalogués:

  • Voir plus Fermer
    • Numéro de réference: AP140.S2.SS1.D10.P2
    • Titre: Plan oblique for the site
    • Dates de création: between 1955 and 1958
    • Classification: dessins
    • Objets catalogués : 6

    Personnes et institutions:

    • James Frazer Stirling (archive creator)

    Description:

    plan oblique for the site showing the three blocks of flats and the garages and the massing for Langham House, a hand-coloured west elevation for the three-storey block, a sectional oblique drawing for the three-storey block of flats showing the interior elevations for the living rooms, and plans for the three-storey and two-storey block of flats

    Quantité / Type d’objet:

    6 presentation drawing(s)

    Étape et objectif:

    • presentation drawings (proposals)

    Collation:

    • 6 drawings

    Technique et médium:

    Graphite, coloured pencil, and ink on translucent paper

    Caractéristiques matérielles et contraintes techniques:

    - The presentation drawing for the plan oblique for the site, the hand-coloured presentation drawing for the west elevation for the three-storey block and the presentation for the sectional oblique for the three-storey block of flats were originally in mats stamped "Ham Common. Housing. 1955-58".

    Mention de crédit:

    James Stirling/Michael Wilford fonds
    Collection Centre Canadien d'Architecture/
    Canadian Centre for Architecture, Montréal

    Objets catalogués:

  • Voir plus Fermer
    • Numéro de réference: AP140.S2.SS1.D10.P3
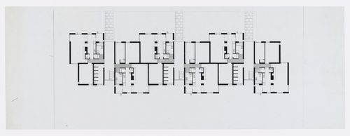
    • Titre: Working drawings, including plans for the three-storey block of flats
    • Dates de création: between 1955 and 1958
    • Classification: dessins
    • Objets catalogués : 4

    Personnes et institutions:

    • James Frazer Stirling (archive creator)

    Description:

    working drawings, including plans for the three-storey block of flats, and presentation and publication drawings, including bird's-eye sectional perspectives showing plans for the two-bedroom flats in the two-storey and three-storey block of flats

    Quantité / Type d’objet:

    4 presentation drawing(s)

    Étape et objectif:

    • presentation drawings (proposals)
    • reference

    Collation:

    • 4 drawings

    Dimensions:

    sheet (smallest): 18 x 26 cm sheet (largest): 20 x 34 cm

    Mention de crédit:

    James Stirling/Michael Wilford fonds
    Collection Centre Canadien d'Architecture/
    Canadian Centre for Architecture, Montréal

    Objets catalogués:

  • Voir plus Fermer
    • Numéro de réference: AP140.S2.SS1.D10.P4
    • Titre: Views by James Stirling, Michael Wickham, and Richard Einzig or the studio of Brecht-Einzig
    • Dates de création: 1955 or after
    • Classification: photographies
    • Objets catalogués : 23

    Personnes et institutions:

    • James Frazer Stirling (photographer)
    • Michael Wickham (photographer)
    • Richard Einzig (photographer)
    • Brecht-Einzig (photographic studio)
    • James Frazer Stirling (archive creator)

    Description:

    views by James Stirling, Michael Wickham, and Richard Einzig or the studio of Brecht-Einzig, showing the Langham House site before the construction of the blocks of flats, exterior and interior views and details of the completed blocks of flats, and the building site at various stages of progress; also includes views of presentation drawings and views of a sectional perspective drawing (not otherwise present in the project documents) showing a typical living room elevation for a two-bedroom flat in the three-storey block

    Quantité / Type d’objet:

    1 photograph(s)

    Collation:

    • approximately 23 photographs

    Technique et médium:

    Gelatin silver prints

    Caractéristiques matérielles et contraintes techniques:

    - Several photographs are mounted on cardboard.

    Mention de crédit:

    James Stirling/Michael Wilford fonds
    Collection Centre Canadien d'Architecture/
    Canadian Centre for Architecture, Montréal

    Numéro de chemise:

    140-0469

    Objets catalogués:

  • Voir plus Fermer
    • Numéro de réference: AP140.S2.SS1.D10.P5
    • Titre: Exterior views of the completed blocks of flats
    • Dates de création: 1958 or after
    • Classification: photographies
    • Objets catalogués : 3

    Personnes et institutions:

    • James Frazer Stirling (photographer)
    • Michael Wickham (photographer)
    • Richard Einzig (photographer)
    • Brecht-Einzig (photographic studio)
    • James Frazer Stirling (archive creator)

    Quantité / Type d’objet:

    3 photograph(s)

    Collation:

    • Approximately 3 photographs

    Technique et médium:

    Gelatin silver prints

    Dimensions:

    sheets: 31 x 31 cm

    Mention de crédit:

    James Stirling/Michael Wilford fonds
    Collection Centre Canadien d'Architecture/
    Canadian Centre for Architecture, Montréal

    Numéro de chemise:

    140-0409

    Objets catalogués:

  • Voir plus Fermer
    • Numéro de réference: AP140.S2.SS1.D10.P6
    • Titre: Views by James Stirling, Michael Wickham, and Richard Einzig or the studio of Brecht-Einzig
    • Dates de création: 1955 or after
    • Classification: photographies
    • Objets catalogués : 0

    Personnes et institutions:

    • James Frazer Stirling (photographer)
    • Michael Wickham (photographer)
    • Richard Einzig (photographer)
    • Brecht-Einzig (photographic studio)
    • James Frazer Stirling (archive creator)

    Description:

    views by James Stirling, Michael Wickham, and Richard Einzig or the studio of Brecht-Einzig, showing the Langham House site before the construction of the blocks of flats, exterior and interior views and details of the completed blocks of flats, and the building site at various stages of progress; also includes views of presentation drawings, and one negative shows part of a page of an article on the flats at Ham Common from an unidentified journal

    Quantité / Type d’objet:

    1 negative(s)

    Collation:

    • approximately 200 photographic materials

    Mention de crédit:

    James Stirling/Michael Wilford fonds
    Collection Centre Canadien d'Architecture/
    Canadian Centre for Architecture, Montréal

    Numéro de chemise:

    140-0469

  • Voir plus Fermer
    • Numéro de réference: AP140.S2.SS1.D10.P7
    • Titre: Exterior and interior views and details of the completed blocks of flats
    • Dates de création: 1958 or after
    • Classification: photographies
    • Objets catalogués : 0

    Personnes et institutions:

    • James Frazer Stirling (photographer)
    • Michael Wickham (photographer)
    • Richard Einzig (photographer)
    • Brecht-Einzig (photographic studio)
    • James Frazer Stirling (archive creator)

    Quantité / Type d’objet:

    17 negative(s)

    Collation:

    • Approximately 17 negatives

    Dimensions:

    negatives: 10 x 12 cm

    Mention de crédit:

    James Stirling/Michael Wilford fonds
    Collection Centre Canadien d'Architecture/
    Canadian Centre for Architecture, Montréal

  • Voir plus Fermer
    • Numéro de réference: AP140.S2.SS1.D10.P8
    • Titre: Exterior views of the completed blocks of flats
    • Dates de création: 1958 or after
    • Classification: photographies
    • Objets catalogués : 0

    Personnes et institutions:

    • James Frazer Stirling (photographer)
    • Michael Wickham (photographer)
    • Richard Einzig (photographer)
    • Brecht-Einzig (photographic studio)
    • James Frazer Stirling (archive creator)

    Quantité / Type d’objet:

    4 photograph(s)

    Collation:

    • Approximately 4 photographs

    Technique et médium:

    Chromogenic colour prints and colour transparency

    Dimensions:

    photographic materials (smallest): 8 x 7 cm photographic materials (largest): 21 x 26 cm

    Mention de crédit:

    James Stirling/Michael Wilford fonds
    Collection Centre Canadien d'Architecture/
    Canadian Centre for Architecture, Montréal

    Numéro de chemise:

    140-0469

  • Voir plus Fermer
    • Numéro de réference: AP140.S2.SS1.D10.P9
    • Titre: Views of presentation drawings and a view of a sectional perspective drawing
    • Dates de création: 1955 or after
    • Classification: photographies
    • Objets catalogués : 0

    Personnes et institutions:

    • James Frazer Stirling (photographer)
    • Michael Wickham (photographer)
    • Richard Einzig (photographer)
    • Brecht-Einzig (photographic studio)
    • James Frazer Stirling (archive creator)

    Description:

    views of presentation drawings and a view of a sectional perspective drawing (not otherwise present in the project documents) showing a typical living room elevation for a two-bedroom flat in the three-storey block

    Quantité / Type d’objet:

    6 negative(s)

    Collation:

    • Approximately 6 negatives

    Technique et médium:

    Glass negatives

    Dimensions:

    negatives: 17 x 22 cm

    Caractéristiques matérielles et contraintes techniques:

    Glass negatives. Manipulate with care.

    Mention de crédit:

    James Stirling/Michael Wilford fonds
    Collection Centre Canadien d'Architecture/
    Canadian Centre for Architecture, Montréal

    Numéro de chemise:

    140-0471

  • Voir plus Fermer
    • Numéro de réference: AP140.S2.SS1.D10.P10
    • Titre: Two-page technical feature on the flats at Ham Common
    • Dates de création: 7 January 1959
    • Classification: documents textuels
    • Objets catalogués : 0

    Personnes et institutions:

    • James Frazer Stirling (archive creator)

    Description:

    two-page technical feature on the flats at Ham Common, including detail drawings for the kitchen units, from the 'Architect and Building News'

    Quantité / Type d’objet:

    1 article(s)

    Collation:

    • 0.01 l. m. of textual records

    Dimensions:

    sheet: 30 x 22 cm

    Type de document:

    • article

    Mention de crédit:

    James Stirling/Michael Wilford fonds
    Collection Centre Canadien d'Architecture/
    Canadian Centre for Architecture, Montréal

  • Voir plus Fermer
    • Numéro de réference: AP140.S2.SS1.D10.P11
    • Titre: Plan and elevation, and a diagrammatic plan oblique
    • Dates de création: 1957
    • Classification: dessins
    • Objets catalogués : 0

    Personnes et institutions:

    • James Frazer Stirling (archive creator)

    Description:

    plan and elevation, and a diagrammatic plan oblique showing the staggered arrangement of the maisonettes for the addition to the Flats at Ham Common

    Quantité / Type d’objet:

    2 presentation drawing(s)

    Étape et objectif:

    • presentation drawings (proposals)

    Collation:

    • 2 drawings

    Technique et médium:

    Graphite, coloured pencil, and ink on translucent paper

    Dimensions:

    sheet (smallest): 32 x 21 cm sheet (largest; irreg.): 32 x 33 cm

    Caractéristiques matérielles et contraintes techniques:

    - The drawing for the elevation and the drawing for the plan are joined together with tape.

    Mention de crédit:

    James Stirling/Michael Wilford fonds
    Collection Centre Canadien d'Architecture/
    Canadian Centre for Architecture, Montréal

    Numéro de chemise:

    140-0473

  • Voir plus Fermer
    • Numéro de réference: AP140.S2.SS1.D10.P12
    • Titre: Views of the presentation drawings for the addition to the Flats at Ham Common
    • Dates de création: 1957 or after
    • Classification: photographies
    • Objets catalogués : 1

    Personnes et institutions:

    • James Frazer Stirling (photographer)
    • Michael Wickham (photographer)
    • Richard Einzig (photographer)
    • Brecht-Einzig (photographic studio)
    • James Frazer Stirling (archive creator)

    Quantité / Type d’objet:

    8 photograph(s)

    Collation:

    • 8 photographs

    Technique et médium:

    Gelatin silver prints

    Dimensions:

    sheets (smallest): 7 x 16 cm sheets (largest): 26 x 30 cm

    Caractéristiques matérielles et contraintes techniques:

    - Two of the photographs are joined together with tape.

    Mention de crédit:

    James Stirling/Michael Wilford fonds
    Collection Centre Canadien d'Architecture/
    Canadian Centre for Architecture, Montréal

    Numéro de chemise:

    140-0474

    Objets catalogués:

  • Voir plus Fermer
    • Numéro de réference: AP140.S2.SS1.D10.P13
    • Titre: View of the plan and elevation for the addition to the Flats at Ham Common
    • Dates de création: 1957 or after
    • Classification: photographies
    • Objets catalogués : 0

    Personnes et institutions:

    • James Frazer Stirling (photographer)
    • Michael Wickham (photographer)
    • Richard Einzig (photographer)
    • Brecht-Einzig (photographic studio)
    • James Frazer Stirling (archive creator)

    Quantité / Type d’objet:

    1 negative(s)

    Collation:

    • 1 negative

    Dimensions:

    sheet: 12 x 17 cm

    Mention de crédit:

    James Stirling/Michael Wilford fonds
    Collection Centre Canadien d'Architecture/
    Canadian Centre for Architecture, Montréal

    Numéro de chemise:

    140-0474

  • Voir plus Fermer
    • Numéro de réference: AP140.S2.SS1.D10.P14
    • Titre: One page text by Frank Newby describing the use of concrete in the Flats at Ham Common
    • Classification: documents textuels
    • Objets catalogués : 0

    Personnes et institutions:

    • Frank Newby (author)
    • James Frazer Stirling (archive creator)

    Quantité / Type d’objet:

    1 textual record(s)

    Collation:

    • 1 textual document

    Technique et médium:

    Signed typescript

    Dimensions:

    sheet: 26 x 21 cm

    Type de document:

    • text

    Mention de crédit:

    James Stirling/Michael Wilford fonds
    Collection Centre Canadien d'Architecture/
    Canadian Centre for Architecture, Montréal

    Numéro de chemise:

    140-0504

  • Voir plus Fermer
    • Numéro de réference: AP140.S2.SS1.D10.P15
    • Titre: View of completed sections and brickwork under construction
    • Classification: photographies
    • Objets catalogués : 0

    Personnes et institutions:

    • James Frazer Stirling (archive creator)

    Quantité / Type d’objet:

    1 transparency(ies)

    Collation:

    • approximately 30 photographic materials

    Technique et médium:

    Colour transparencies

    Mention de crédit:

    James Stirling/Michael Wilford fonds
    Collection Centre Canadien d'Architecture/
    Canadian Centre for Architecture, Montréal;
    Legs de la famille Stirling/
    Bequest of the Stirling family

1
1

Inscrivez-vous pour recevoir de nos nouvelles

Courriel
Prénom
Nom
En vous abonnant, vous acceptez de recevoir notre infolettre et communications au sujet des activités du CCA. Vous pouvez vous désabonner en tout temps. Pour plus d’information, consultez notre politique de confidentialité ou contactez-nous.

Merci. Vous êtes maintenant abonné. Vous recevrez bientôt nos courriels.

Pour le moment, notre système n’est pas capable de mettre à jour vos préférences. Veuillez réessayer plus tard.

Vous êtes déjà inscrit avec cette adresse électronique. Si vous souhaitez vous inscrire avec une autre adresse, merci de réessayer.

Cete adresse courriel a été définitivement supprimée de notre base de données. Si vous souhaitez vous réabonner avec cette adresse courriel, veuillez contactez-nous

Veuillez, s'il vous plaît, remplir le formulaire ci-dessous pour acheter:
[Title of the book, authors]
ISBN: [ISBN of the book]
Prix [Price of book]

Prénom
Nom de famille
Adresse (ligne 1)
Adresse (ligne 2) (optionnel)
Code postal
Ville
Pays
Province / État
Courriel
Téléphone (jour) (optionnel)
Notes

Merci d'avoir passé une commande. Nous vous contacterons sous peu.

Nous ne sommes pas en mesure de traiter votre demande pour le moment. Veuillez réessayer plus tard.

Classeur ()

Votre classeur est vide.

Adresse électronique:
Sujet:
Notes:
Veuillez remplir ce formulaire pour faire une demande de consultation. Une copie de cette liste vous sera également transmise.

Vos informations
Prénom:
Nom de famille:
Adresse électronique:
Numéro de téléphone:
Notes (optionnel):
Nous vous contacterons pour convenir d’un rendez-vous. Veuillez noter que des délais pour les rendez-vous sont à prévoir selon le type de matériel que vous souhaitez consulter, soit :"
  • — au moins 2 semaines pour les sources primaires (dessins et estampes, photographies, documents d’archives, etc.)
  • — au moins 48 heures pour les sources secondaires (livres, périodiques, dossiers documentaires, etc.)
...